Skip to content
Broadlands Drive
Lawrence Weston, Bristol, BS11

Offers in excess of

£250,000

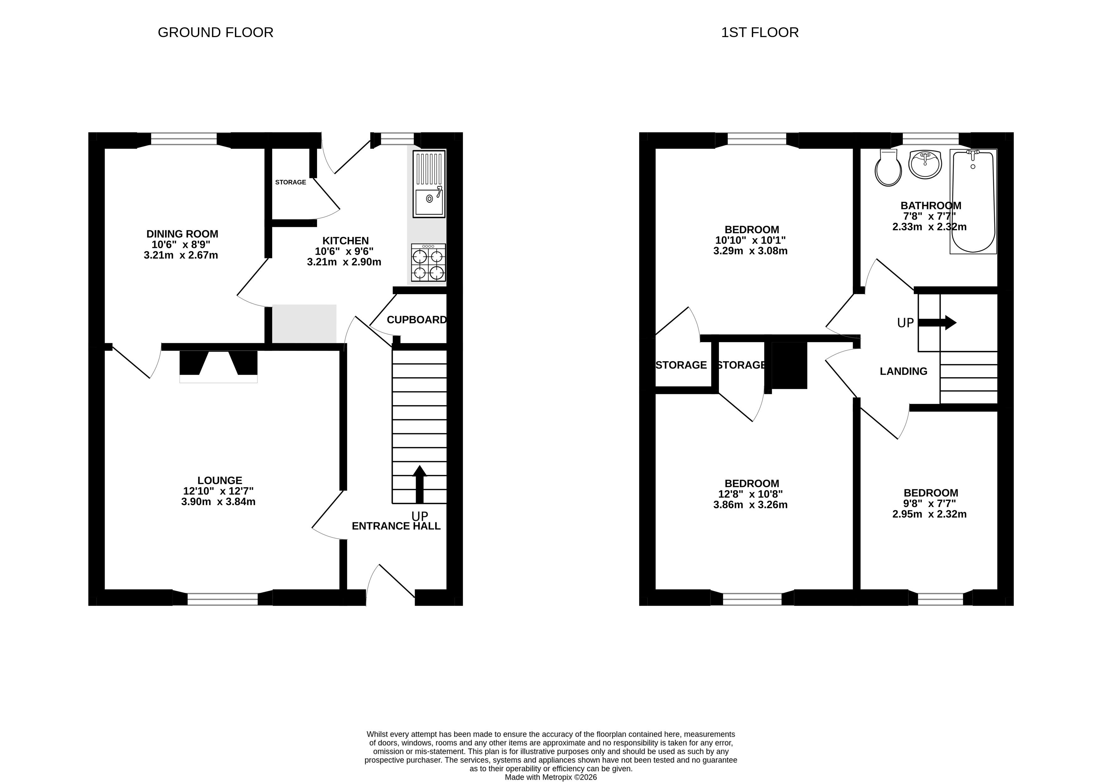
3 bed terraced house

Bedrooms

3

Living Rooms

2

Bathrooms

1

A 3 bedroom mid-terrace home on a level plot with off street parking and no chain.

Key features

  • No onward chain
  • 3 bedroom mid terrace home
  • Off street parking at the front
  • Enclosed rear garden
  • Some modernisation required
  • Close to local shops and ameneties

Detail

A sensibly priced family home that is being sold with no chain. There is plenty of space on both levels, as the ground floor has a good sized lounge at the front. The kitchen and dining room are at the back of the property and over look the rear garden. Upstairs, there are 3 bedrooms, all of which are a good size, and the family bathroom. Like many of the houses in the area, this is of Laing Easi-Form construction, so lending criteria should be checked.

Similar properties

Lawrence Weston

Area guide
Shirehampton Sales
14-16 High Street, Shirehampton, Bristol, BS11 0DP
We’re open...

Sunday

Monday

Tuesday

Wednesday

Thursday

Friday

Saturday

Closed

09:00 - 18.00

09:00 - 18.00

09:00 - 18.00

09:00 - 18.00

09:00 - 18.00

09.00 - 16.00