Skip to content
Aylminton Walk
Lawrence Weston, Bristol, BS11

Sold STC

£335,000

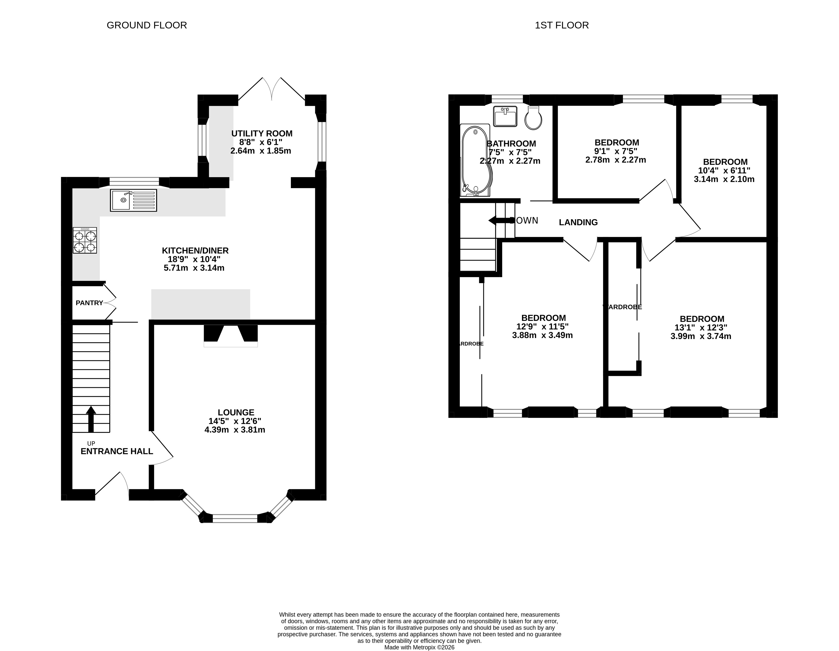
4 bed terraced house

Bedrooms

4

Living Rooms

1

Bathrooms

1

A 4 bedroom family home, nestled on a quiet street in Lawrence Weston within walking distance to Blaise Castle.

Key features

  • 4 Bedrooms
  • Modern kitchen/diner
  • Lounge with bay window
  • Off street parking/double garage at the rear
  • Sizeable family home
  • Utility room

Detail

The house features an open-plan living space on the ground floor which is perfect for families. As you enter front door there is spacious hallway providing access to the lounge and kitchen/diner. The lounge overlooks the front of the property and the baw window, not only adds additional space, it lets plenty of light in. The kitchen/diner spans the whole width...

Similar properties

Lawrence Weston

Area guide
Shirehampton Sales
14-16 High Street, Shirehampton, Bristol, BS11 0DP
We’re open...

Sunday

Monday

Tuesday

Wednesday

Thursday

Friday

Saturday

Closed

09:00 - 18.00

09:00 - 18.00

09:00 - 18.00

09:00 - 18.00

09:00 - 18.00

09.00 - 16.00