Skip to content
Turnbridge Road
Brentry, Bristol, BS10

£365,000

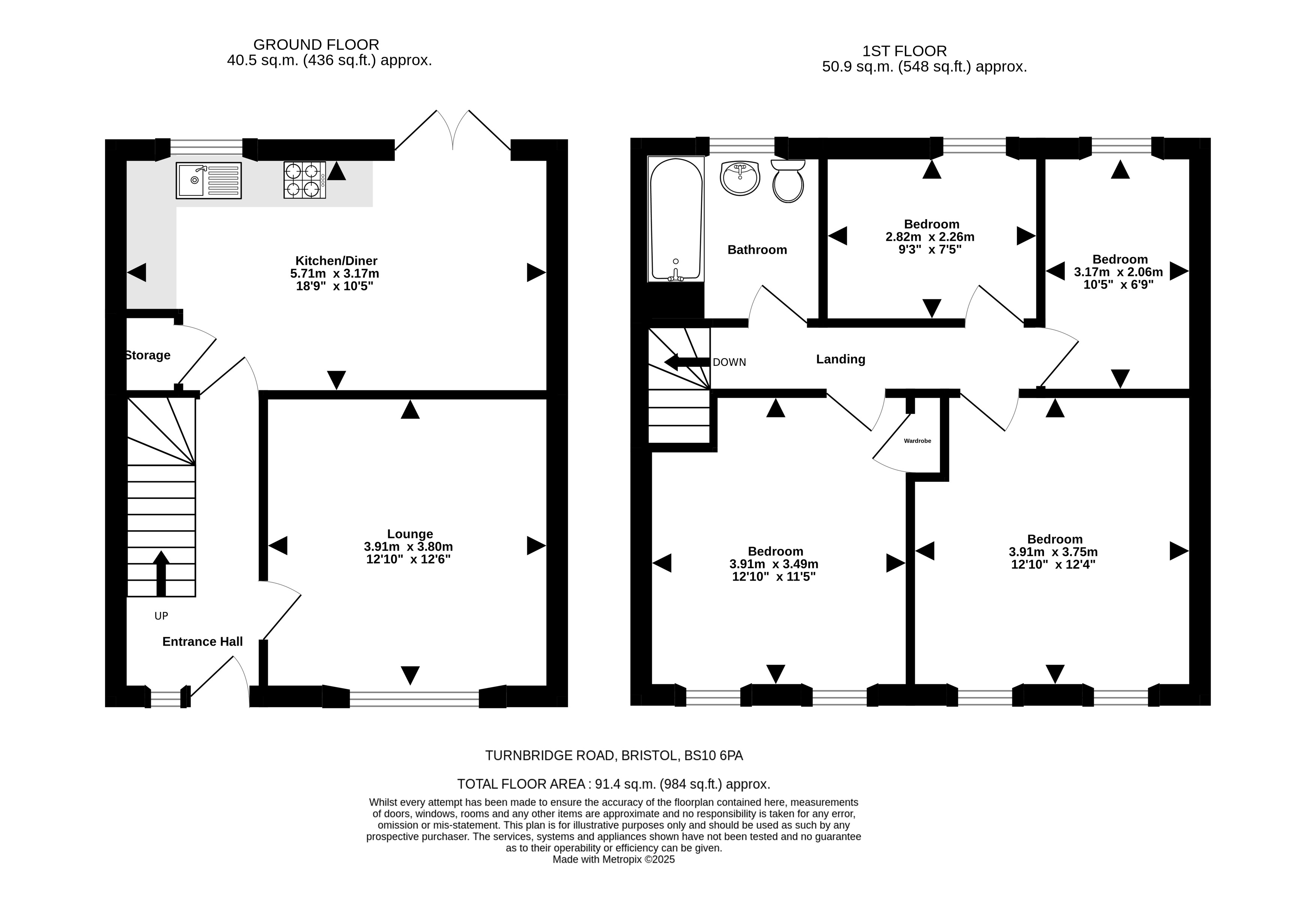
4 bed terraced house

Bedrooms

4

Living Rooms

1

Bathrooms

1

A rare opportunity to purchase an immaculate four-bedroom house, in a popular location, with no onward chain.

Key features

  • No chain
  • Four good sized bedrooms
  • Immaculately presented
  • Open plan kitchen/diner
  • Large family garden
  • Off-road parking

Detail

This modern and inviting home has a well-balanced layout that flows naturally from room to room, offering flexible and versatile living that is ready to enjoy from day one. Upon entering, you are welcomed into a bright and inviting entrance hall, setting the tone for quality and style throughout. The lounge at the front of the property is spacious and flooded with na...

Similar properties

Brentry

Area guide
Westbury-on-Trym Sales
73 Westbury Hill, Westbury-on-Trym, Bristol, BS9 3AD
We’re open...

Sunday

Monday

Tuesday

Wednesday

Thursday

Friday

Saturday

Closed

09:00 - 18.00

09:00 - 18.00

09:00 - 18.00

09:00 - 18.00

09:00 - 18.00

09.00 - 16.00