Skip to content
The Paddock
Portishead, BS20

Sold STC

£300,000

2 bed bungalow

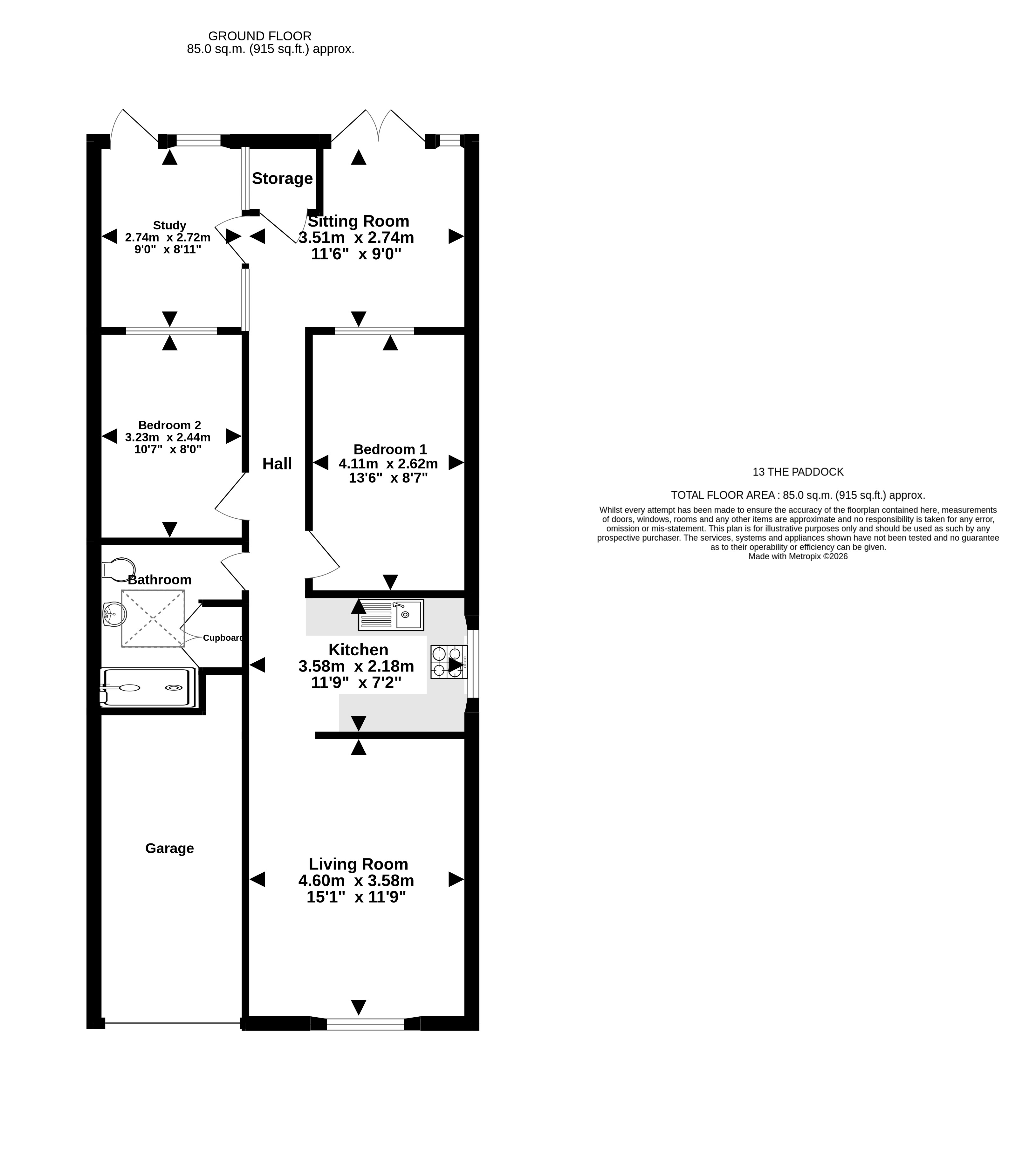
Bedrooms

2

Living Rooms

2

Bathrooms

1

A well-presented 2-bedroom bungalow located near the vibrant High Street offering spacious living accommodation on a level plot.

Key features

  • The Paddock
  • Portishead
  • 2 bedrooms
  • Modern kitchen
  • Tiled throughout
  • Enclosed rear garden
  • Driveway and parking
  • Freehold
  • EPC - TBC

Detail

Welcome to The Paddock in Portishead! As you enter the bungalow, you are greeted by a light-filled lounge and sleek tiles that you will find throughout. A modern kitchen provides ample storage to cook family meals. From the hallway, you will find two good-sized bedrooms and a family bathroom with a double shower and a skylight. Towards the rear of the property are two more rooms currently being used as a second sitting room and study. From these rooms, you can access the patioed garden. At the front of the property is a good-sized garage with space for a washing machine and tumble dryer.

Similar properties

Portishead

Area guide
Portishead Sales
43 High Street, Portishead, BS20 6AA
We’re open...

Sunday

Monday

Tuesday

Wednesday

Thursday

Friday

Saturday

Closed

09:00 - 18.00

09:00 - 18.00

09:00 - 18.00

09:00 - 18.00

09:00 - 18.00

09.00 - 16.00