Skip to content
Leigh View Road
Portishead, BS20

Sold STC

£395,000

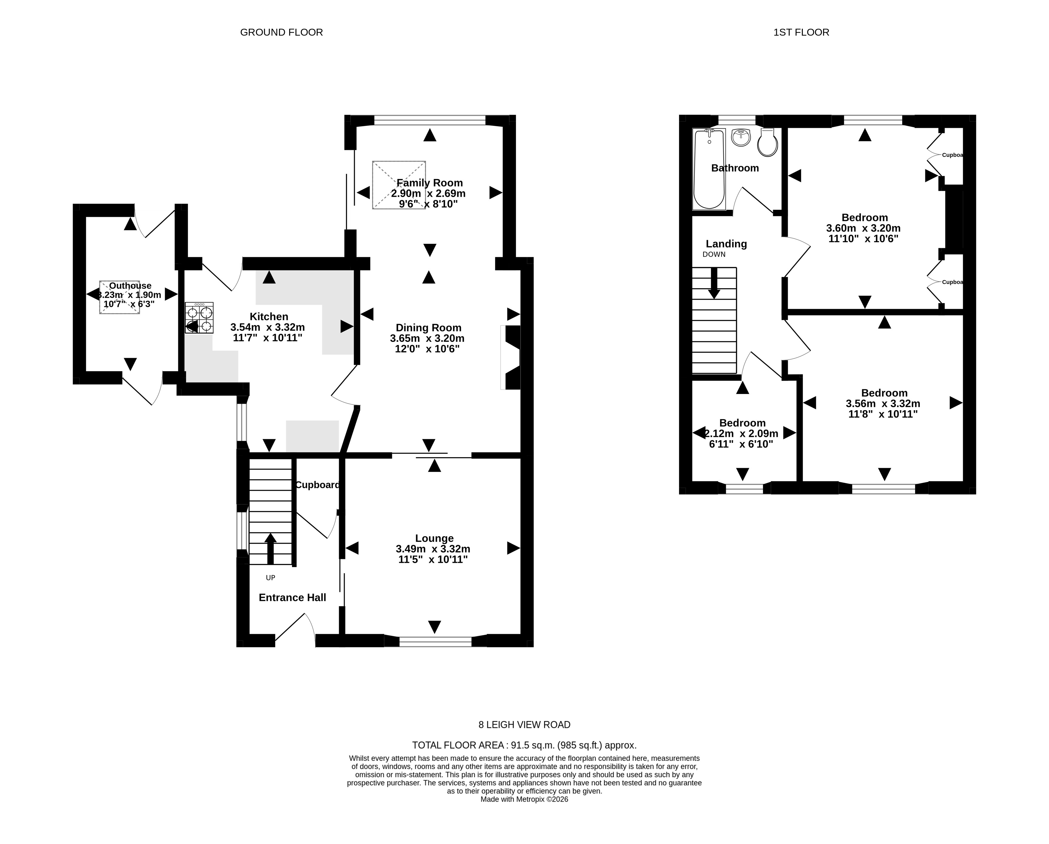
3 bed semi-detached house

Bedrooms

3

Living Rooms

3

Bathrooms

1

A beautifully presented and extended 3-bedroom semi-detached home on Leigh View Road. With picturesque views over Portishead, large rear garden and stunning garden room.

Key features

  • Leigh View Road
  • Portishead
  • Semi-detached home
  • 3 bedrooms
  • 3 Reception areas
  • Large rear garden
  • Parking
  • Freehold
  • EPC - C

Detail

Ground floor hosts a light and airy entrance hall with storage cupboard and stairs. The open plan living area flows perfectly downstairs, the lounge overlooks the front garden, and the dining area has a working log burner which is perfect for those cosy winter nights. In addition to these two rooms, is a stunning family/garden room which has an apex roof with skylight a...

Similar properties

Portishead

Area guide
Portishead Sales
43 High Street, Portishead, BS20 6AA
We’re open...

Sunday

Monday

Tuesday

Wednesday

Thursday

Friday

Saturday

Closed

09:00 - 18.00

09:00 - 18.00

09:00 - 18.00

09:00 - 18.00

09:00 - 18.00

09.00 - 16.00