Skip to content
Centrum
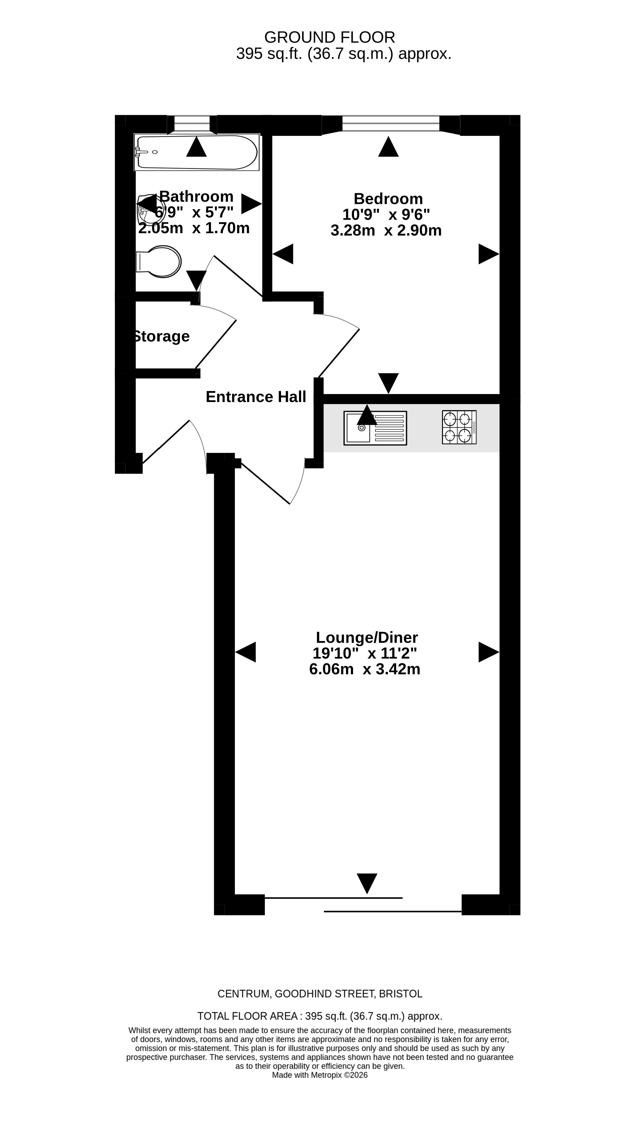
Central Bristol, BS5

Guide price

£170,000

1 bed apartment / flat

Bedrooms

1

Living Rooms

1

Bathrooms

1

A spacious one-bedroom ground-floor flat, perfect for first-time buyers and investors looking to buy in the area.

Key features

  • One-bedroom ground-floor flat
  • Open plan lounge/diner
  • Neutral decor
  • Allocated parking space
  • Small courtyard garden
  • Leasehold
  • Current energy efficiency rating - TBC (New EPC ordered)

Detail

This bright, well-laid-out flat has a fresh, modern feel throughout. The open-plan lounge and dining area is a great social space, with patio doors that bring in plenty of natural light and open straight onto the garden – ideal for relaxed evenings or having friends over. The double bedroom sits quietly to the rear, while a clean, contemporary three-piece bathroom keeps the look simple and cohesive. There’s also an allocated parking space to the front, adding everyday practicality to this easy-to-live-in home.

Similar properties

Bishopston Sales
201 Gloucester Rd, Bishopston, Bristol, BS7 8BG
We’re open...

Sunday

Monday

Tuesday

Wednesday

Thursday

Friday

Saturday

Closed

09:00 - 18.00

09:00 - 18.00

09:00 - 18.00

09:00 - 18.00

09:00 - 18.00

09.00 - 16.00