Skip to content
Badenham Grove
Lawrence Weston, Bristol, BS11

Sold STC

£260,000

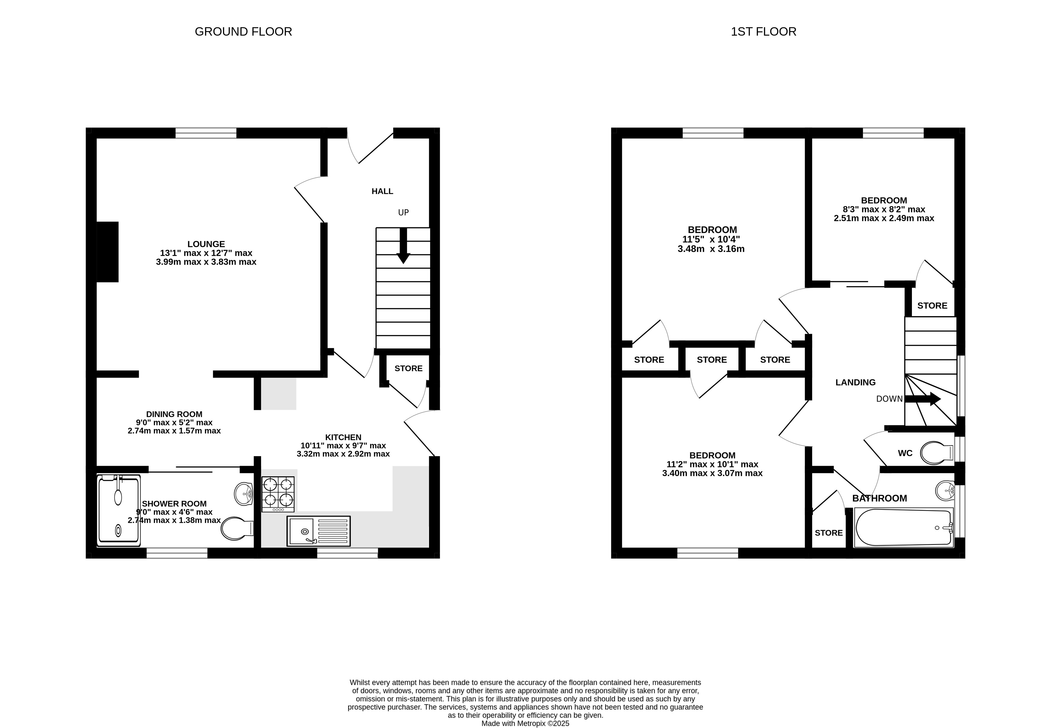
3 bed semi-detached house

Bedrooms

3

Living Rooms

2

Bathrooms

2

A semi-detached home that offers great potential - being sold with no chain

Key features

  • Semi detached
  • 3 bedrooms
  • 2 reception rooms
  • Downstairs shower room
  • Large garden
  • Gas central heating
  • Double glazing
  • No chain

Detail

A semi-detached home that offers great potential - being sold with no chain. This house has lots going for it - ample-sized rooms, a large garden, parking and the scope to extend (subject to necessary consents), as well as being sold with no chain. Although the house requires updating, it would make a great first home for those people looking to buy a house that they can make their own. The ground floor features a spacious entrance hall, two reception rooms, downstairs shower room and the kitchen. The first floor has a light and airy landing, three bedrooms and a bathroom and a separate toilet. Like many houses in the area, the property is of Laing-Easi construction, so please check with your mortgage lender before viewing.

Similar properties

Lawrence Weston

Area guide
Shirehampton Sales
14-16 High Street, Shirehampton, Bristol, BS11 0DP
We’re open...

Sunday

Monday

Tuesday

Wednesday

Thursday

Friday

Saturday

Closed

09:00 - 18.00

09:00 - 18.00

09:00 - 18.00

09:00 - 18.00

09:00 - 18.00

09.00 - 16.00