Skip to content
Highbury Road
Bedminster, Bristol, BS3

£465,000

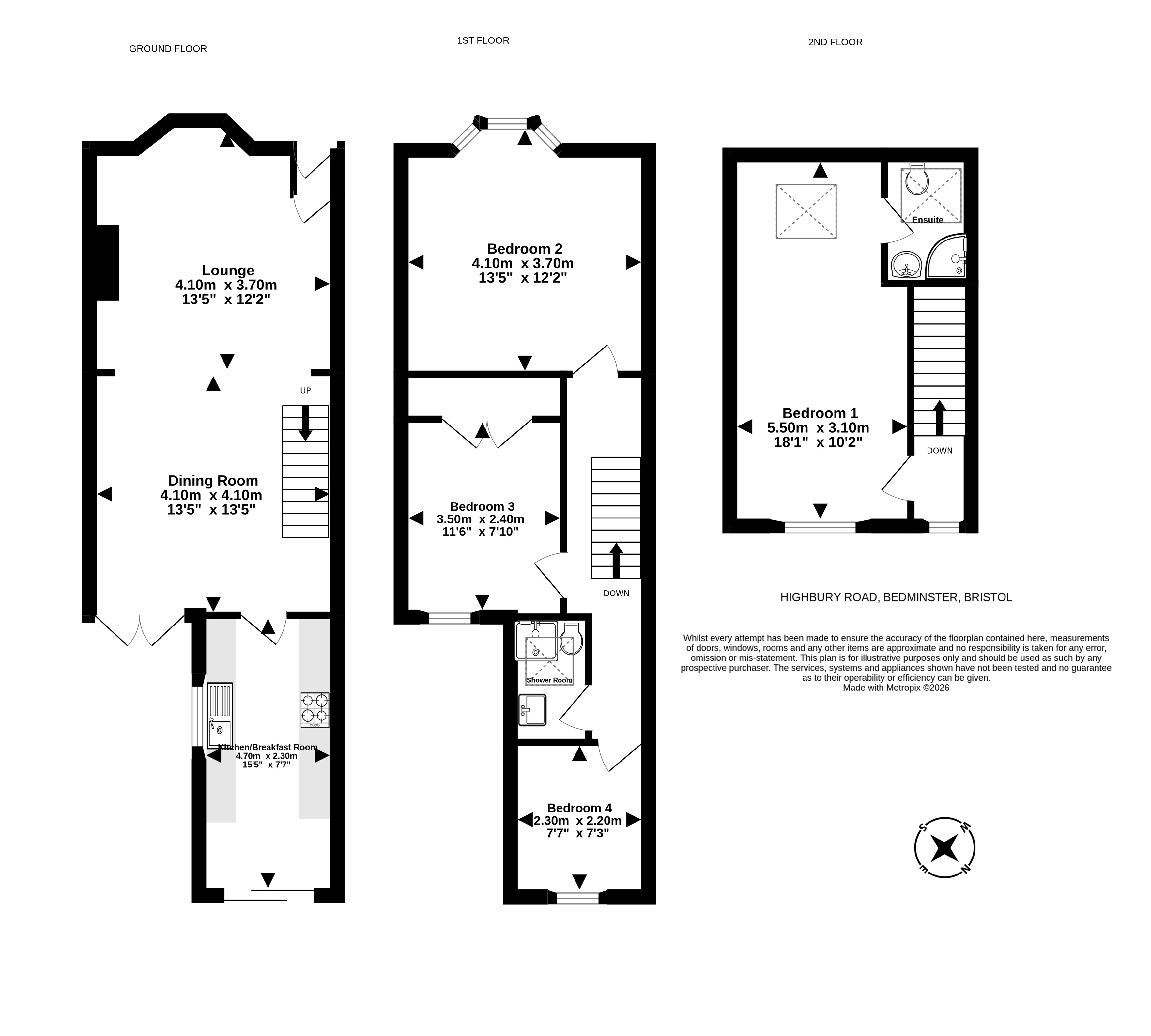
4 bed terraced house

Bedrooms

4

Living Rooms

1

Bathrooms

2

Welcome to this charming 4-bedroom terrace house on Highbury Road, Bedminster! A perfect blend of modern features and cosy comforts for £465,000.00.

Key features

  • - 4 Bedroom Terrace House
  • - Open Lounge/Dining Room
  • - Kitchen/Breakfast Room
  • - Shower Room
  • - Enclosed Rear Garden
  • - proximity to North St, Wapping Wharf, Harbourside on foot
  • -Finished to a high standard

Detail

Step into this inviting terrace home, featuring a spacious open-plan lounge and dining area complete with a cosy log burner—perfect for relaxing evenings. The stylish kitchen/breakfast room offers a modern touch and opens directly onto the garden, creating an ideal space for both everyday living and entertaining. Upstairs, the property boasts four generously sized bedrooms, including a master bedroom with its own en-suite, as well as a contemporary, recently renovated family shower room.

Similar properties

Bedminster

Area guide
Southville Sales
The Plaza, 275 North Street, Southville, Bristol, BS3 1JN
We’re open...

Sunday

Monday

Tuesday

Wednesday

Thursday

Friday

Saturday

Closed

09:00 - 18.00

09:00 - 18.00

09:00 - 18.00

09:00 - 18.00

09:00 - 18.00

09.00 - 16.00