Situated on the popular Ilchester Crescent in Bristol’s BS13 postcode, this beautifully presented four-bedroom terraced home immediately stands out from the street. The attractive frontage is enhanced by slate chippings and a mature Trachycarpus Fortunei, perfectly complemented by sleek deep grey windows and a matching front door, creating a stylish and contemporary fir...
Situated on the popular Ilchester Crescent in Bristol’s BS13 postcode, this beautifully presented four-bedroom terraced home immediately stands out from the street. The attractive frontage is enhanced by slate chippings and a mature Trachycarpus Fortunei, perfectly complemented by sleek deep grey windows and a matching front door, creating a stylish and contemporary first impression.
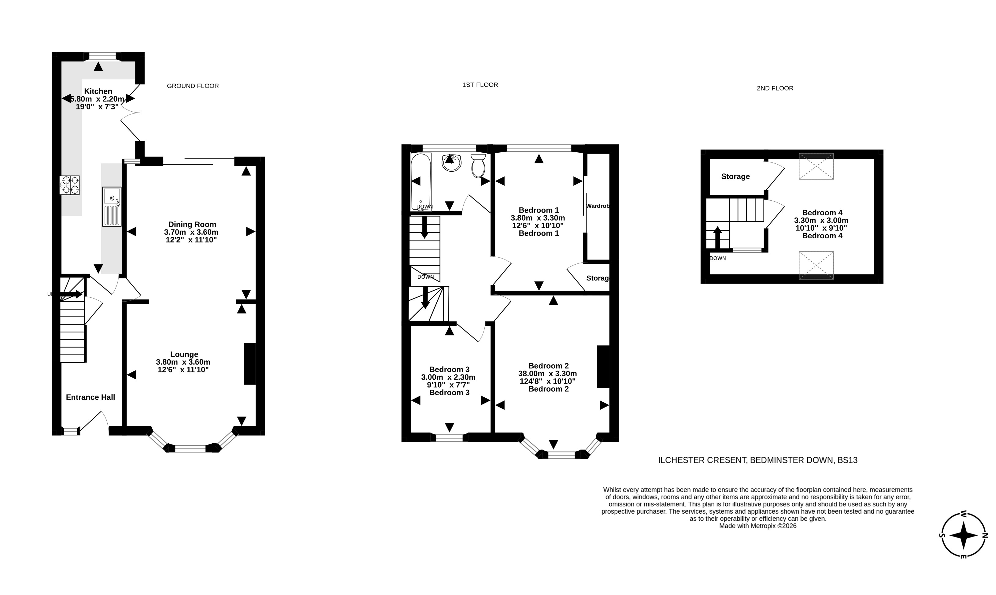
Upon entering, you are welcomed by a bright and airy entrance hall that immediately sets the tone for the calm and refined atmosphere found throughout the home. The property benefits from elegant oak hardwood internal doors, adding a sense of quality and cohesion to each room. Doors lead from the hallway into the lounge, dining room and kitchen, creating a well-balanced and practical ground floor layout.
The lounge enjoys a beautifully wide bay window, allowing natural light to flood the room and highlighting the generous proportions. Adjacent to this, the dining room features sliding patio doors overlooking the garden, creating a wonderful sense of connection to the outdoors. Together these two reception spaces form the natural heart of the home, offering an inviting environment perfectly suited to both everyday family life and entertaining guests.
To the rear of the property, the traditional galley kitchen has been thoughtfully extended to provide excellent preparation space alongside generous upper and lower storage. French doors open directly onto the garden, seamlessly blending indoor and outdoor living and enhancing the sense of space throughout the ground floor.
The first floor offers three well-proportioned bedrooms and a beautifully finished family bathroom. The front bedroom benefits from the property’s characterful bay window, enhancing the sense of light and space. To the rear, the current principal bedroom overlooks the garden and features built-in wardrobes, while a third bedroom provides the perfect space for a nursery, home office or study. The bathroom has been finished to an exceptional standard, showcasing striking marble-effect white tiling paired with grey cabinetry, and further benefits from luxurious underfloor heating, adding an extra layer of comfort.
Completing the accommodation is the loft conversion, forming the fourth bedroom. The room features a walk-in wardrobe, providing ample storage while adding a sense of luxury and practicality. Velux windows set into the eaves flood the space with natural light and perfectly frame the stunning views of the suspension bridge, creating a bright and captivating outlook.
Externally, the rear garden has been cleverly arranged across two levels. Immediately outside the house is a patio area that acts as a true sun trap, perfect for relaxing or dining during the warmer months. The second tier features low-maintenance artificial grass, creating a practical and versatile outdoor space. There is also an outbuilding with electricity, offering useful storage or potential for a garden workspace.
A rare and highly valuable feature for the area, the garden also provides off-street parking to the rear for approximately three vehicles.
Location
Ilchester Crescent is situated within the well-established BS13 area of south Bristol, a location that continues to grow in popularity with families and first-time buyers alike thanks to its balance of green space, amenities and connectivity.
The area is well served by local shops, supermarkets and everyday conveniences, while nearby retail hubs provide a wider range of options for shopping and dining. For those who enjoy the outdoors, the beautiful open green spaces of Ashton Court Estate and Dundry Hill are just a short distance away, offering scenic walking routes, cycling trails and panoramic views across the city.
The location is also well placed for commuters, with straightforward access into Bristol city centre as well as convenient road links towards Bristol Airport and the surrounding motorway network. A selection of local schools and community facilities further enhance the appeal, making this a practical and attractive setting for a range of buyers.
We think...
Beautifully presented four-bedroom family home in Bristol’s BS13, offering bright bay-fronted living spaces, a loft conversion, a landscaped low-maintenance garden, and the rare advantage of off-street parking for three cars
Material information (provided by owner)
SQM - TBC
EPC - TBC
Council Tax B £2110.64