Skip to content
Station Road
Kingswood, Bristol, BS15

Offers in excess of

£425,000

5 bed end terraced house

Bedrooms

5

Living Rooms

1

Bathrooms

1

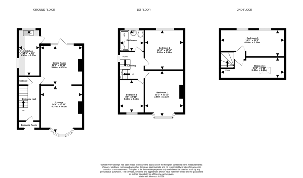
An extended 5 Bedroom Family Home located on Station Road, Kingswood, BS15.

Key features

  • 5 bedroom home set over 3 floors
  • Popular location
  • Garage with off street parking
  • EPC - D
  • Floor area - 111 Square metres

Detail

Situated on Station Road in Kingswood, this well-presented and extended family home offers generous living space across 3 floors, making it ideal for families. On entering, you are welcomed by a traditional entrance hall providing access to the entire ground floor. The property features a bright living room with a bay window, leading through to a dining room with French doors opening onto a well presented rear garden. To the rear of the home, you will also find a galley kitchen also providing direct garden access. The first floor comprises 2 double bedrooms, a single bedroom, and a family bathroom. The second floor adds further flexibility with 2 additional double bedrooms, ideal for larger families or home office use.

Similar properties

Downend Sales
11a Badminton Road, Downend, Bristol, BS16 6BD
We’re open...

Sunday

Monday

Tuesday

Wednesday

Thursday

Friday

Saturday

Closed

09:00 - 18.00

09:00 - 18.00

09:00 - 18.00

09:00 - 18.00

09:00 - 18.00

09.00 - 16.00