Skip to content
Mancroft Avenue
Lawrence Weston, Bristol, BS11

Sold STC

£290,000

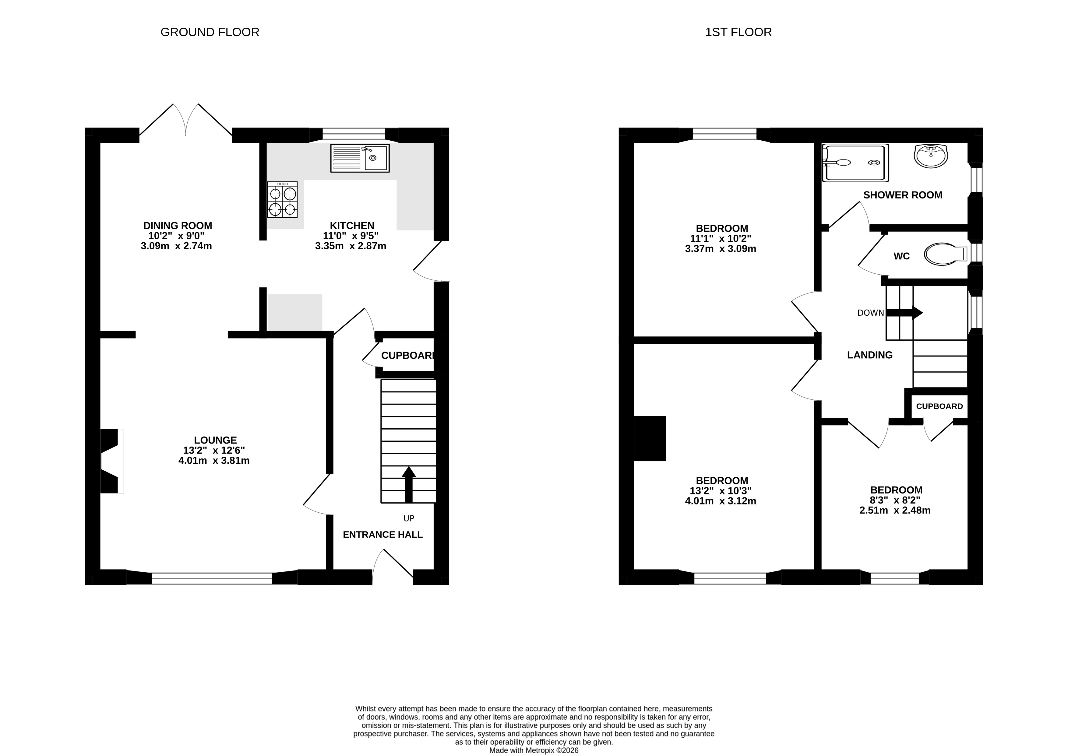
3 bed semi-detached house

Bedrooms

3

Living Rooms

2

Bathrooms

1

A 3 bedroom home offering ample space for growing families and a sizeable rear garden backing onto beautiful woodlands.

Key features

  • No ownard chain
  • EV charging point in place
  • Roof replaced in 2022
  • Backs directly onto Kings Weston Estate
  • Open plan lounge/diner
  • 3 sizeable bedrooms

Detail

The current owner has tastefully decorated the property and has created warm and welcoming home. The lounge and dining room have been knocked through to create a large open plan living space, the dual aspect of this room allows plenty of natural light to flood through the downstairs space. The kitchen is at the rear of the property overlooking the rear garden, it can be accessed from both an opening in the dining room and the hallway. Upstairs there are three sizeable bedrooms. Two of which are good size doubles. Also on this level there is a shower room and separate WC. This property is Laing-Easi Form construction and has a flat roof, therefore lending criteria must be checked before arranging a viewing.

Similar properties

Lawrence Weston

Area guide
Shirehampton Sales
14-16 High Street, Shirehampton, Bristol, BS11 0DP
We’re open...

Sunday

Monday

Tuesday

Wednesday

Thursday

Friday

Saturday

Closed

09:00 - 18.00

09:00 - 18.00

09:00 - 18.00

09:00 - 18.00

09:00 - 18.00

09.00 - 16.00