Skip to content
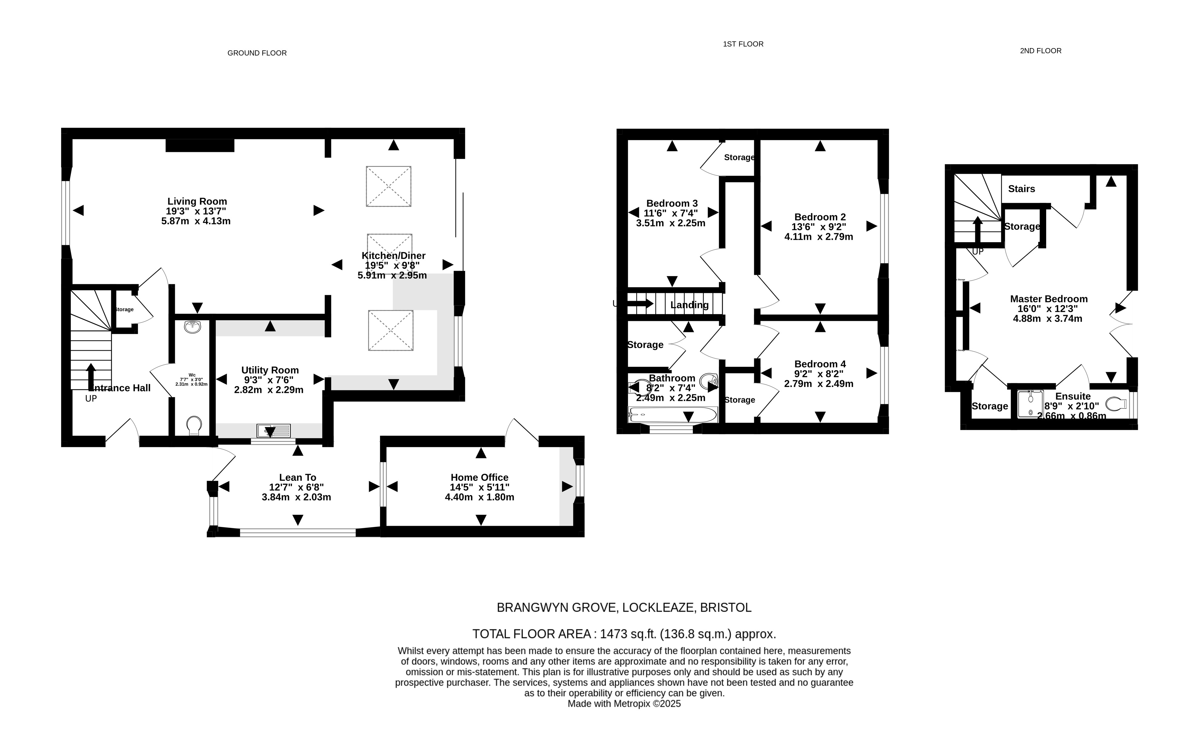
Brangwyn Grove
Lockleaze, Bristol, BS7

Guide price

£425,000

4 bed semi-detached house

Bedrooms

4

Bathrooms

2

Captivating and full of charm at every turn, this extended four-bedroom family home on Brangwyn Grove has been thoughtfully designed to combine period character with modern living. From its stylish interiors to its versatile layout, it offers everything a growing family could hope for.

Key features

  • Heavily extended semi-detached home
  • Four well-proportioned bedrooms
  • Loft conversion
  • Lower-level rear extension
  • Open plan kitchen/diner
  • Home office
  • Excellent transport links
  • Convenient for major employers & amenities
  • Enclosed rear garden
  • Close proximity to Fairfield High School and Trinity
  • Current Energy Efficiency Rating: C

Detail

From the moment you step inside, you’ll notice the perfect balance between original features and modern living. Lots of natural light, and a spacious layout create a warm, timeless atmosphere, while thoughtful updates bring a contemporary touch. The ground floor has been cleverly redesigned, offering a large open plan reception room and a convenient WC off the entrance...

Similar properties

Lockleaze

Area guide
Filton Sales Office
8 Gloucester Road North, Filton, Bristol, BS7 0SF
We’re open...

Sunday

Monday

Tuesday

Wednesday

Thursday

Friday

Saturday

Closed

09:00 - 18.00

09:00 - 18.00

09:00 - 18.00

09:00 - 18.00

09:00 - 18.00

09.00 - 16.00