Skip to content
Clifford Gardens
Shirehampton, Bristol, BS11

£420,000

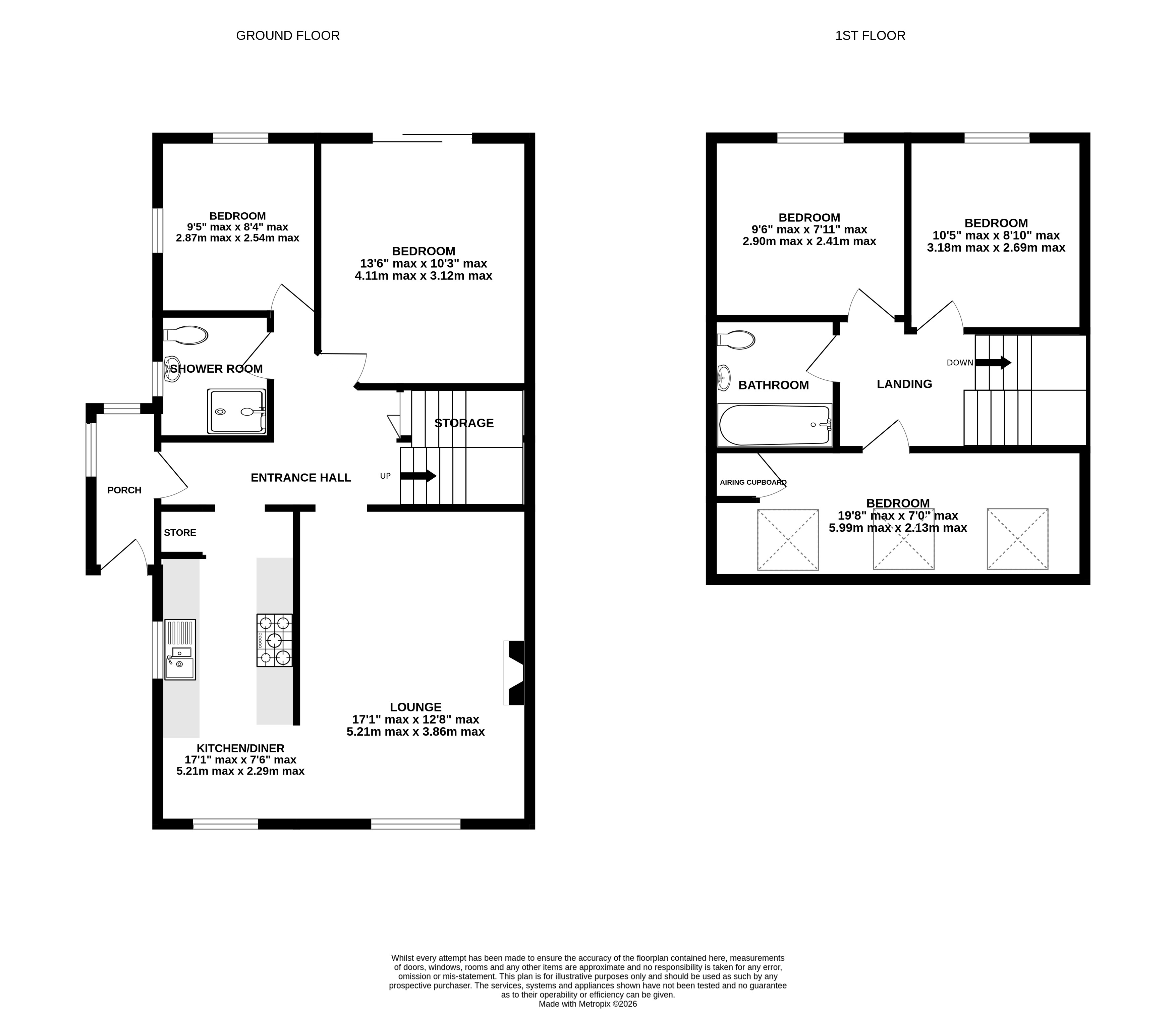
5 bed semi-detached house

Bedrooms

5

Living Rooms

1

Bathrooms

2

A very unique opportunity to purchase this sizeable Semi-Detached dormer bungalow in an elevated position sitting above the village of Shirehampton, boasting five bedrooms and stunning views. Sold with no onward chain.

Key features

  • No Onward Chain
  • Highly energy efficient home (EPC - B)
  • Modern Shower Room
  • Heat Pump
  • Solar Panels
  • Stunning Views
  • Cul-de-sac
  • Off Street Parking

Detail

The entrance porch leads to the entrance hall with stairs to the first floor. There is a spacious lounge, kitchen/breakfast room, modern shower room and two generous bedrooms. The first-floor landing has doors to the modern bathroom and three generous bedrooms. The property boasts a recently fitted heat pump heating system, solar panels, double glazing, no onward chain and extensive front, side and rear gardens.

Similar properties

Shirehampton

Area guide
Shirehampton Sales
14-16 High Street, Shirehampton, Bristol, BS11 0DP
We’re open...

Sunday

Monday

Tuesday

Wednesday

Thursday

Friday

Saturday

Closed

09:00 - 18.00

09:00 - 18.00

09:00 - 18.00

09:00 - 18.00

09:00 - 18.00

09.00 - 16.00