Skip to content
Walton Road
Shirehampton, Bristol, BS11

Sold STC

£275,000

3 bed terraced house

Bedrooms

3

Living Rooms

2

Bathrooms

1

A 3 bedroom period home that has a feeling of character throughout. Offered to the market with no onward chain.

Key features

  • No onward chain
  • 2 reception rooms
  • In need of modernisation
  • Close proximity to local shops
  • Characterful home
  • Private rear garden
  • Period home

Detail

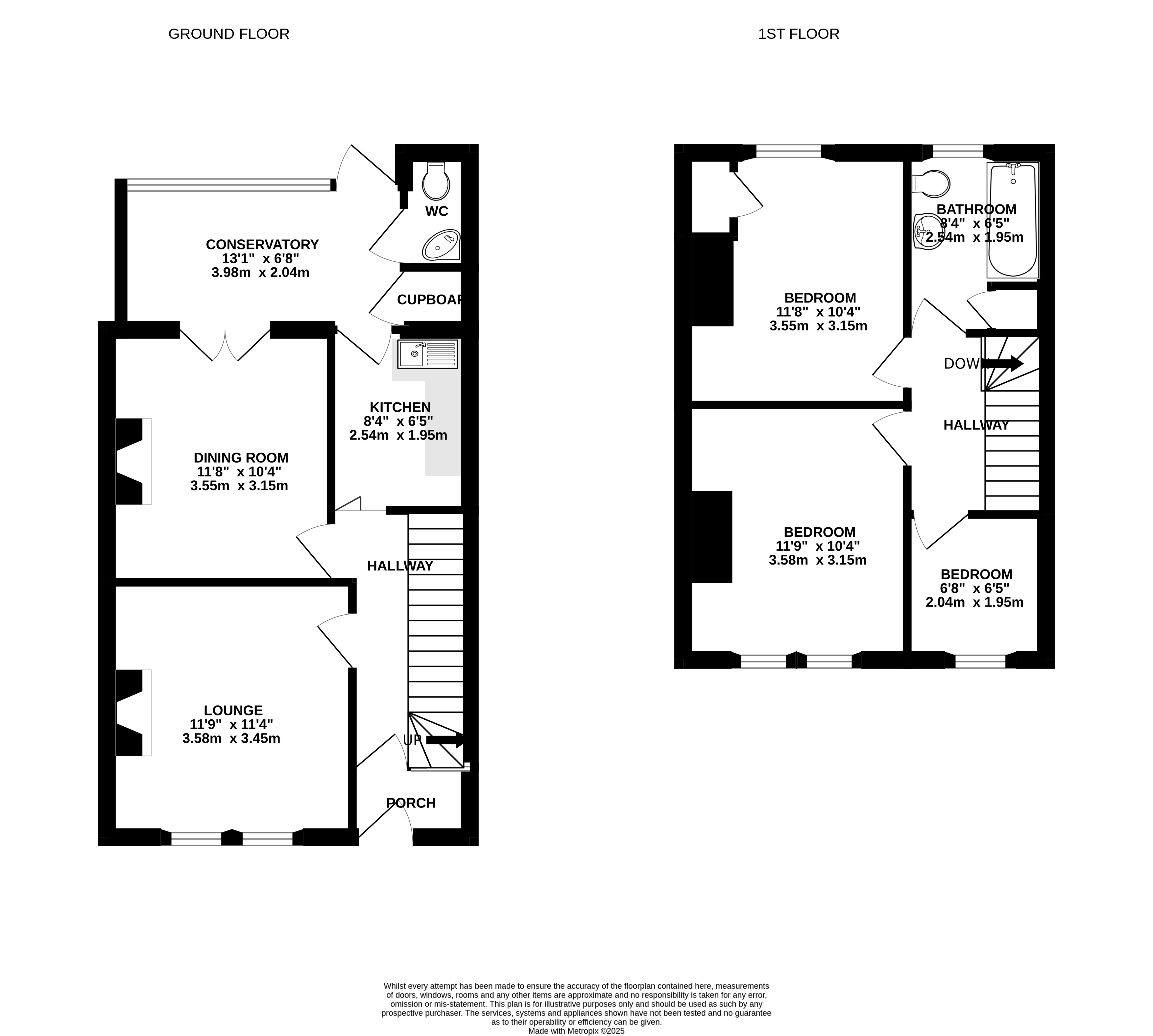
On the ground floor there are two spacious reception rooms, the lounge sits at the front of this home with the dining room positioned at the rear, many properties have knocked through to the separate kitchen to create a kitchen/diner/family space. There is a conservatory at the back of the house with a WC and storage cupboard, this provides access to the garden. Doors also lead into the kitchen and dining room. Upstairs there are three bedrooms, two of which are double rooms. The third bedroom is a great home office or single room. The bathroom is a good size and the airing cupboard in this room allows for ample storage.

Similar properties

Shirehampton

Area guide
Shirehampton Sales
14-16 High Street, Shirehampton, Bristol, BS11 0DP
We’re open...

Sunday

Monday

Tuesday

Wednesday

Thursday

Friday

Saturday

Closed

09:00 - 18.00

09:00 - 18.00

09:00 - 18.00

09:00 - 18.00

09:00 - 18.00

09.00 - 16.00