Skip to content
The Pippins
Portishead, BS20

Sold STC

£565,000

4 bed detached house

Bedrooms

4

Living Rooms

2

Bathrooms

2

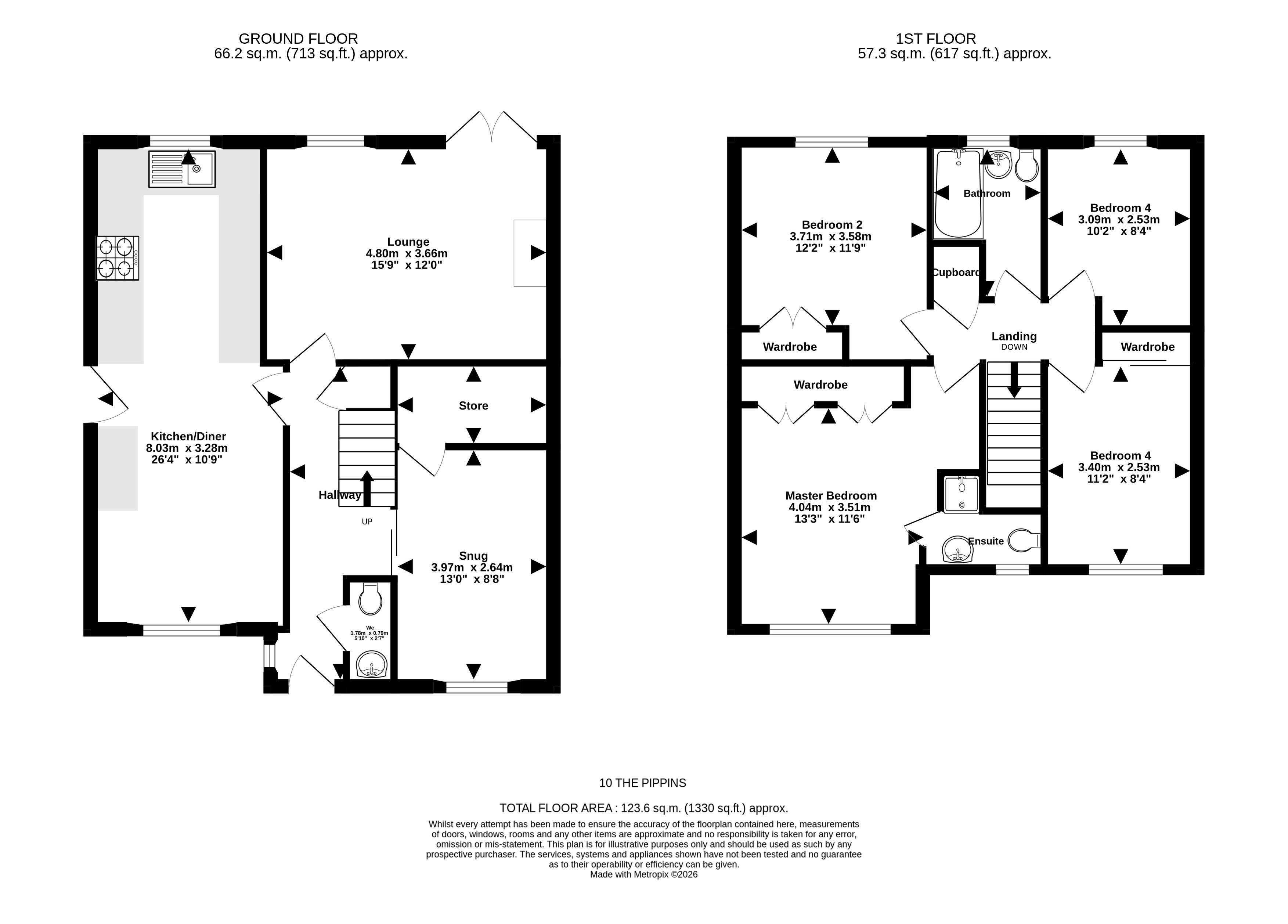
A well-presented 4-bedroom detached house situated in the popular development of "The Vale". This beautiful home offers an abundance of living accommodation and a generous-sized rear garden making it the perfect family home.

Key features

  • The Pippins
  • Portishead
  • Beautifully presented
  • 4 Bedrooms
  • Stunning Kitchen/Diner
  • Master bedroom with En-suite
  • Landscaped garden
  • Parking for 3 vehicles
  • Freehold
  • EPC - C

Detail

This home has been tastefully renovated and is situated in a wonderful position. Upon entering the home, you are greeted by a spacious entrance hall with w/c and storage cupboard underneath the stairs. There is a comfy snug room with a good-sized storage area behind. To the rear of the property, there is a lovely lounge with French doors out onto the patio. The hear...

Similar properties

Portishead

Area guide
Portishead Sales
43 High Street, Portishead, BS20 6AA
We’re open...

Sunday

Monday

Tuesday

Wednesday

Thursday

Friday

Saturday

Closed

09:00 - 18.00

09:00 - 18.00

09:00 - 18.00

09:00 - 18.00

09:00 - 18.00

09.00 - 16.00