Skip to content
Brynland Avenue
Bishopston, Bristol, BS7

Guide price

£595,000

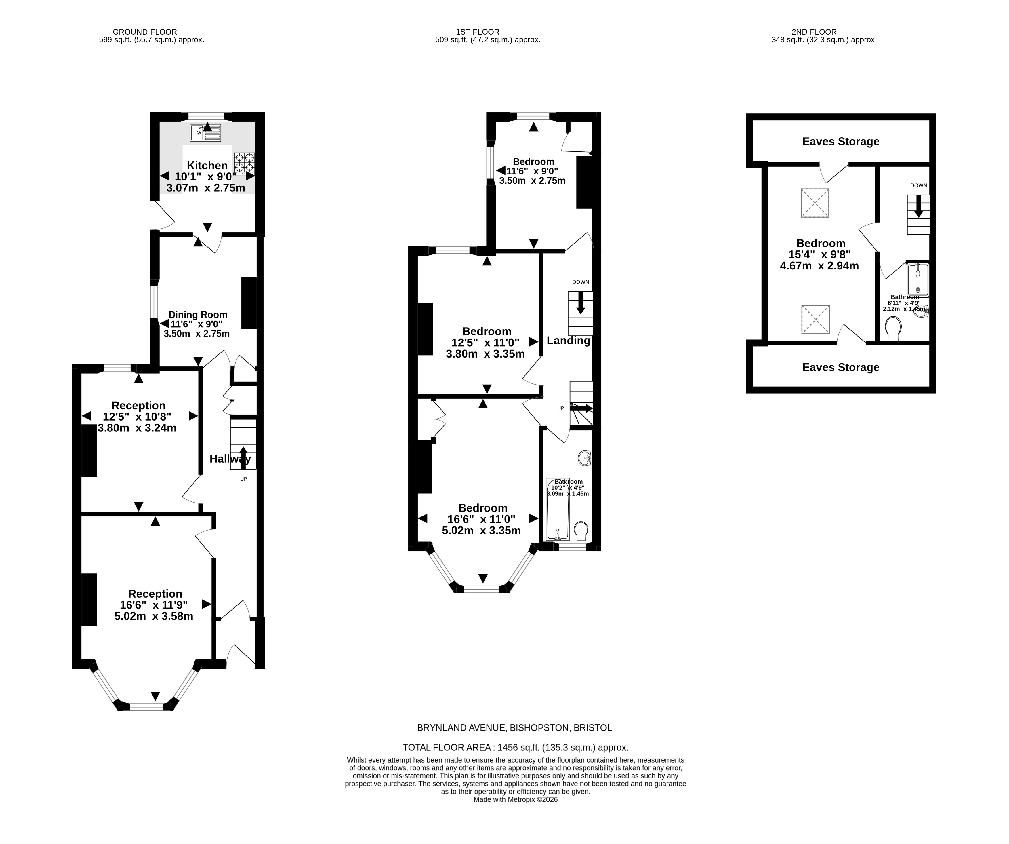
4 bed terraced house

Bedrooms

4

Living Rooms

2

Bathrooms

2

Tucked away on one of Bishopston’s most-loved streets, this beautiful four-bedroom Victorian terrace feels like a home you can truly grow into. Full of original charm and character, yet thoughtfully arranged for modern family life.

Key features

  • Four generous double bedrooms – ideal for growing families, guests or home working
  • Characterful Victorian features including high ceilings, bay windows and period detailing
  • Spacious living room with plenty of natural light
  • Private rear garden – perfect for children, entertaining and summer evenings
  • Located just moments from the vibrant independent shops, cafés and restaurants of Gloucester Road
  • Close to green open spaces including St Andrews Park and Horfield Common
  • Strong sense of community with regular markets and local events
  • Popular, family-friendly neighbourhood known for its character homes and welcoming atmosphere

Detail

The ground floor of this charming Victorian terrace is full of character and space for family life. There are two bright and generous reception rooms, perfect for curling up with a book, hosting friends, or giving the kids room to play. The dining room is just the right size for family meals or Sunday dinners, and the kitchen feels like the heart of the home, a place to...

Similar properties

Bishopston

Area guide
Bishopston Sales
201 Gloucester Rd, Bishopston, Bristol, BS7 8BG
We’re open...

Sunday

Monday

Tuesday

Wednesday

Thursday

Friday

Saturday

Closed

09:00 - 18.00

09:00 - 18.00

09:00 - 18.00

09:00 - 18.00

09:00 - 18.00

09.00 - 16.00