Skip to content
Portway
Sea Mills, Bristol, BS9

£399,995

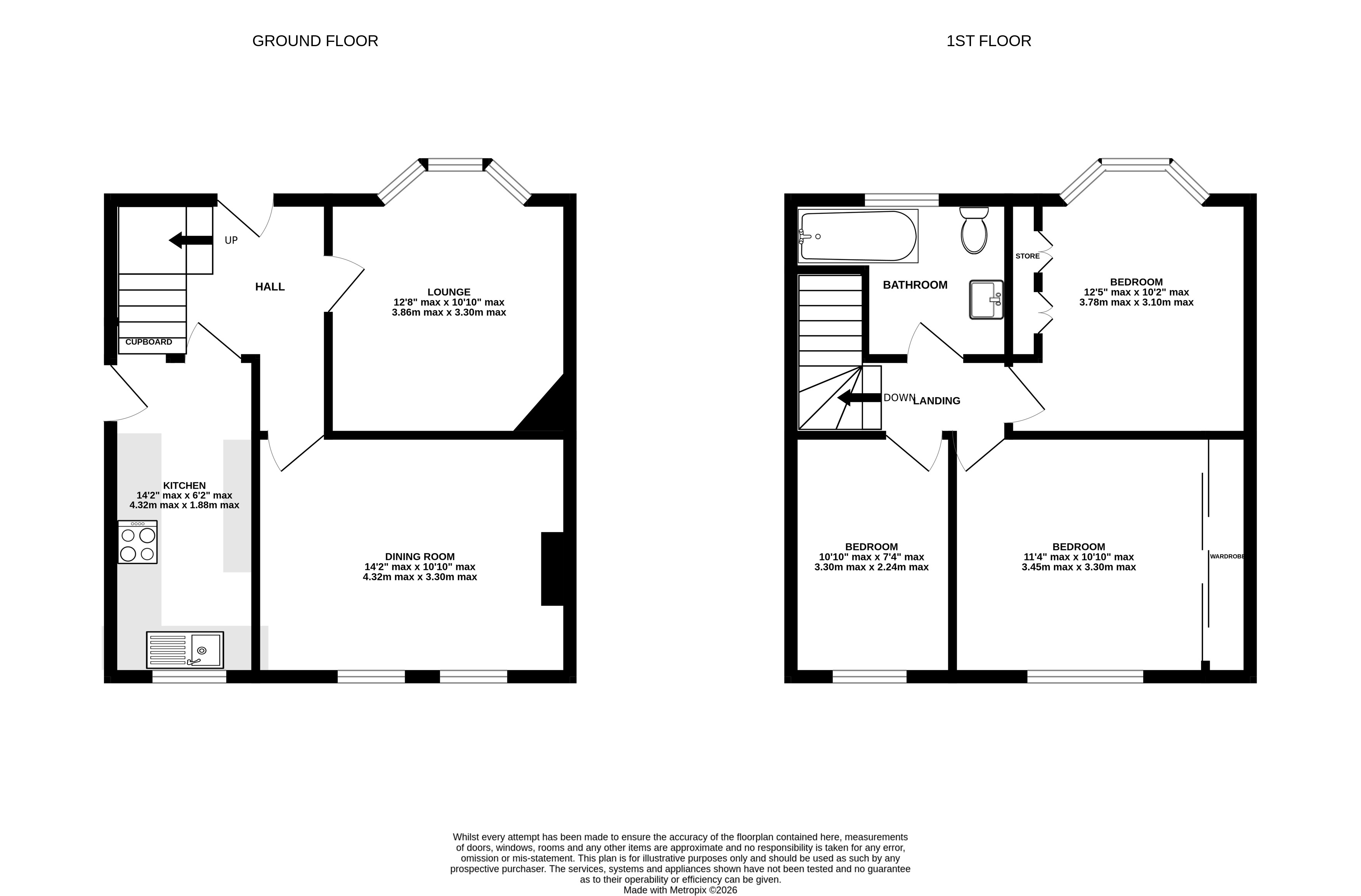
3 bed semi-detached house

Bedrooms

3

Living Rooms

2

Bathrooms

1

Ocean are pleased to offer this much-loved family home on The Portway overlooking The River Avon.

Key features

  • semi detached
  • 3 bedrooms
  • lounge
  • dining room
  • kitchen
  • first floor bathroom
  • double glazing
  • gas central heating
  • gardens
  • driveway
  • freehold
  • no chain

Detail

Ocean are pleased to offer this much-loved family home on The Portway overlooking The River Avon. Cared for by the current owners for over 37 years, this semi-detached home consists of an entrance hall, lounge, dining room, kitchen, landing, three bedrooms and first floor bathroom. It boasts gas central heating, double glazing, a driveway providing off-street parking and extensive gardens. The property is also conveniently positioned for the park and ride bus stop, train station, riverside walks and the shops/restaurants on the square in Sea Mills. A viewing is highly recommended to fully appreciate this lovely home.

Similar properties

Sea Mills

Area guide
Shirehampton Sales
14-16 High Street, Shirehampton, Bristol, BS11 0DP
We’re open...

Sunday

Monday

Tuesday

Wednesday

Thursday

Friday

Saturday

Closed

09:00 - 18.00

09:00 - 18.00

09:00 - 18.00

09:00 - 18.00

09:00 - 18.00

09.00 - 16.00