Skip to content
Station Court
St George, Bristol, BS5

Sold STC

£230,000

1 bed apartment / flat

Bedrooms

1

Living Rooms

1

Bathrooms

1

Ocean are pleased to offer to the market this charming one-bedroom flat in the incredibly popular area of St George.

Key features

  • Private entrance
  • Off road parking
  • A spacious attic
  • Outdoor seating and communal grass gardens
  • Large shower
  • A smart thermostat, called inspire operated on an app.
  • Extra high ceilings
  • Large radiators, Inset spotlights and long hanging lights
  • Plenty of storage cupboards
  • Communal Bin shed in car park
  • EPC - C
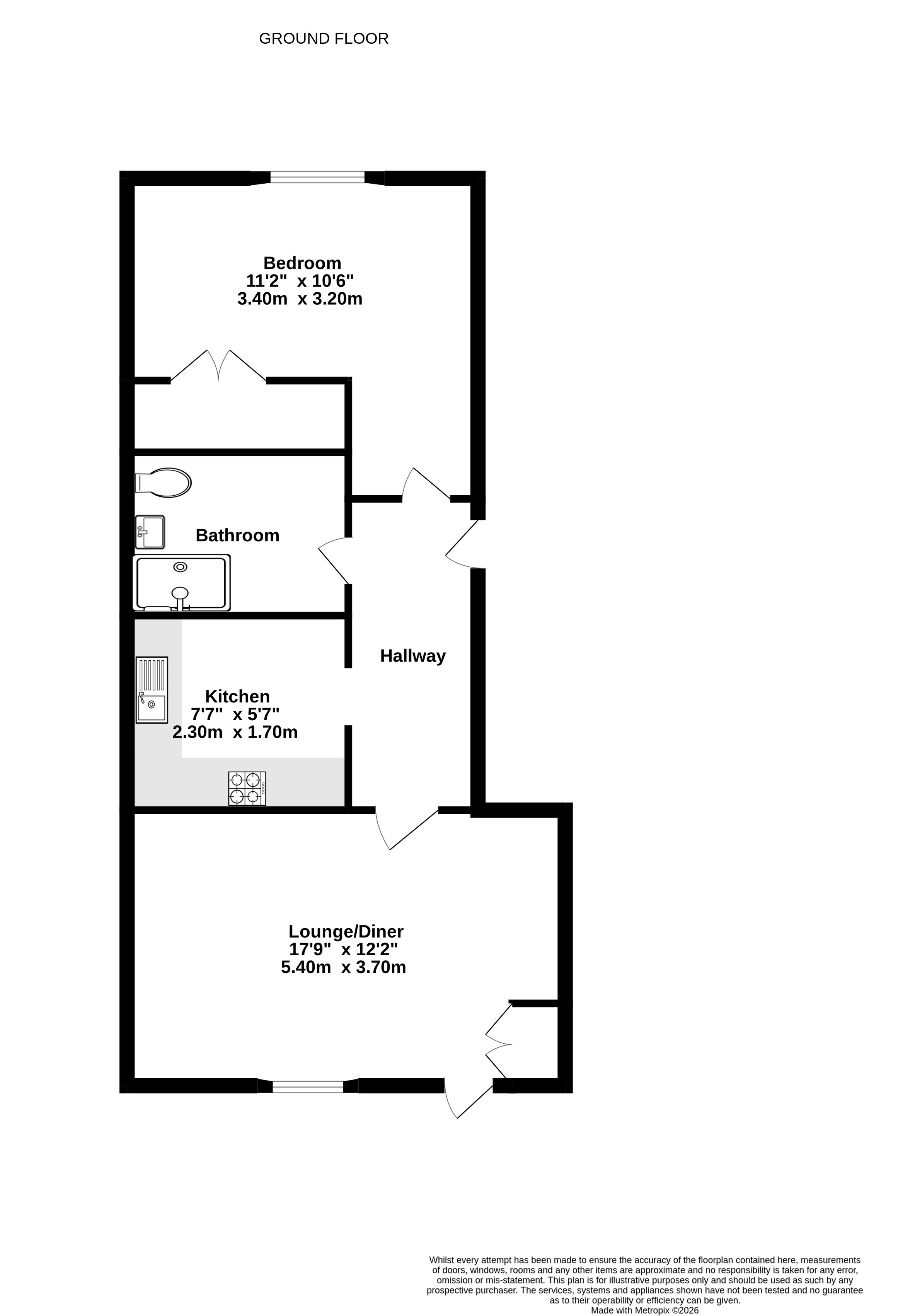
  • Floor Area - 48 Square Metres

Detail

Upon entering the property, you will first note the wonderful high ceilings which add character and helps show off the sense of space it has on offer. As you make your way through the property you will note the stylish decor and fabulous new kitchen installed by the current owners. There is a well-presented lounge/ dining room and an airy, good size bedroom all adding to this home’s appeal.

Similar properties

St George

Area guide
Downend Sales
11a Badminton Road, Downend, Bristol, BS16 6BD
We’re open...

Sunday

Monday

Tuesday

Wednesday

Thursday

Friday

Saturday

Closed

09:00 - 18.00

09:00 - 18.00

09:00 - 18.00

09:00 - 18.00

09:00 - 18.00

09.00 - 16.00