Skip to content
Avonmouth Road
Avonmouth, Bristol, BS11

Sold STC

£185,000

1 bed coach house

Bedrooms

1

Living Rooms

1

Bathrooms

1

Coach House with 1 Bedroom and a large Study.

Key features

  • Coach House
  • 1 Bedroom
  • Large Study
  • Lounge/Kitchen
  • Double Glazing
  • Gas Central Heating
  • Private Garden
  • No Chain

Detail

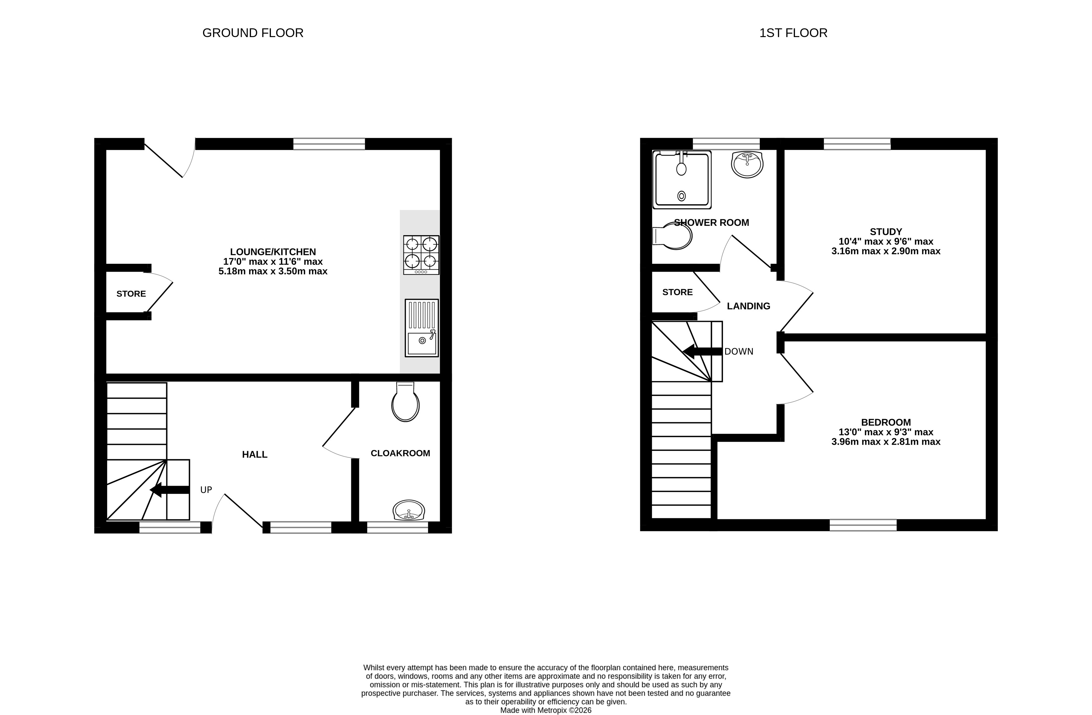
Coach House with 1 Bedroom and a large Study. The front door opens to the entrance hall with stairs to the first- floor, a door to the cloakroom and door to the open plan lounge/kitchen with a door to the private garden. The first -floor landing has a cupboard and doors to the bedroom, a large study and a shower room. The property has gas central heating, double glazing, a private garden and no chain.

Similar properties

Avonmouth

Area guide
Shirehampton Sales
14-16 High Street, Shirehampton, Bristol, BS11 0DP
We’re open...

Sunday

Monday

Tuesday

Wednesday

Thursday

Friday

Saturday

Closed

09:00 - 18.00

09:00 - 18.00

09:00 - 18.00

09:00 - 18.00

09:00 - 18.00

09.00 - 16.00