Skip to content
Brookside
Pill, Bristol, BS20

Sold STC

£360,000

3 bed detached bungalow

Bedrooms

3

Nestled on Brookside Road in Pill, this charming 3-bedroom detached bungalow features generous living spaces and is available for sale with no chain. With stunning views of the village from its elevated location, this property is a true hidden treasure with endless possibilities.

Key features

  • Brookside
  • Pill
  • Detached bungalow
  • In need of some modernising
  • 3 Bedrooms
  • Lounge/Diner
  • Garage
  • Off Street Parking
  • Rear garden
  • No chain
  • Freehold
  • EPC - E

Detail

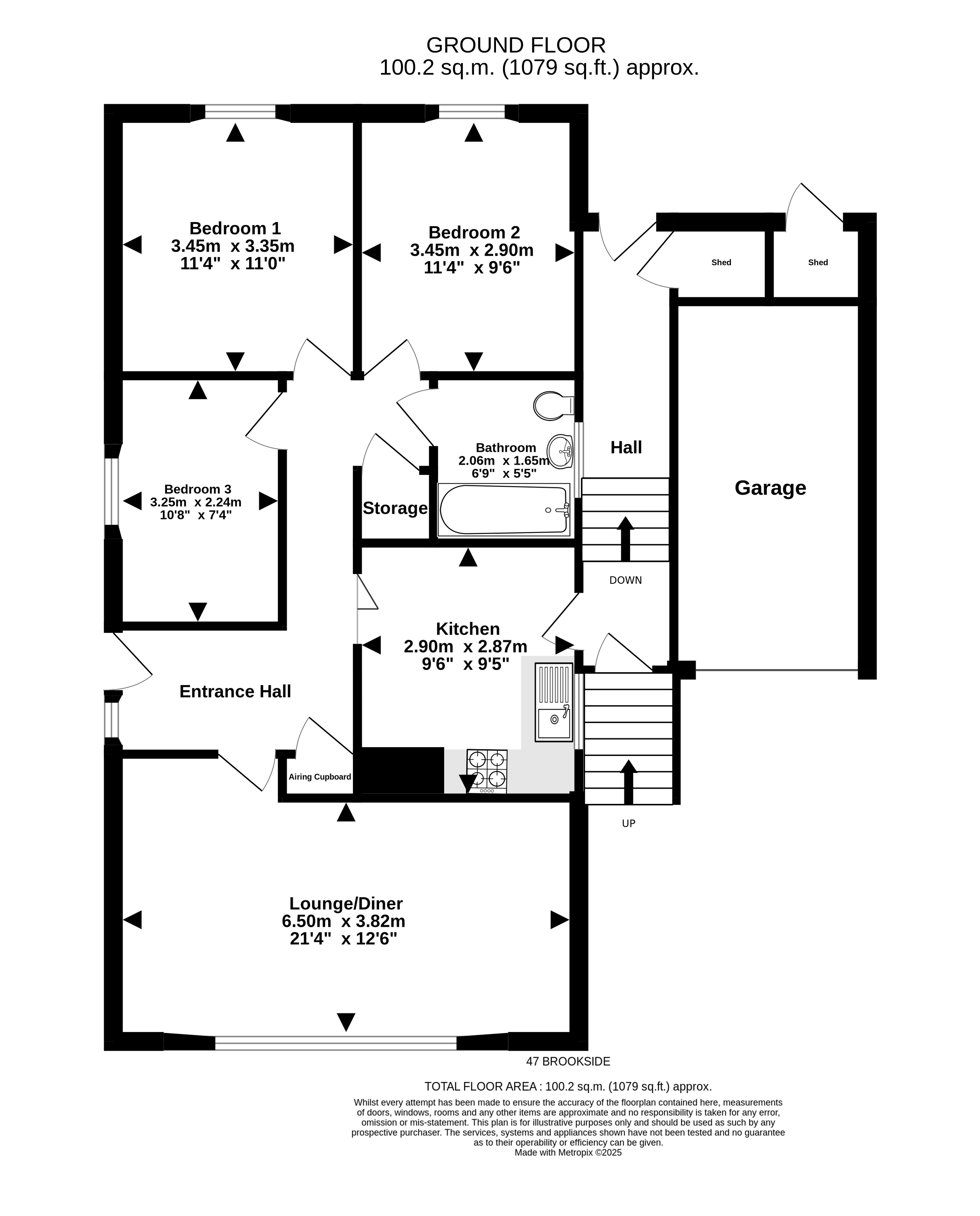
As you step inside the bungalow, you are greeted by a generously sized entrance hall that opens up to a spacious lounge and dining area, offering stunning panoramic views of Pill and the Welsh Hills in the distance. The hall leads to a separate well-equipped kitchen, complete with ample cupboard space and room for appliances. A side door provides access to a passageway that connects the front drive to the rear garden. Towards the back of the bungalow, you will find three bedrooms, two of which are doubles. Additionally, there is a family bathroom and a storage cupboard and airing cupboard located off the hallway.

Similar properties

Portishead Sales
43 High Street, Portishead, BS20 6AA
We’re open...

Sunday

Monday

Tuesday

Wednesday

Thursday

Friday

Saturday

Closed

09:00 - 18.00

09:00 - 18.00

09:00 - 18.00

09:00 - 18.00

09:00 - 18.00

09.00 - 16.00