Skip to content
Kings Weston Avenue
Shirehampton, Bristol, BS11

£350,000

3 bed semi-detached house

Bedrooms

3

Living Rooms

1

Bathrooms

1

A 3 bedroom semi-detached home that is very well presented throughout on the lower slopes of Shirehampton.

Key features

  • South facing rear garden
  • Lounge with bay window
  • Kitchen/diner
  • Useful utility room
  • Close to local amenities
  • Well-presented throughout
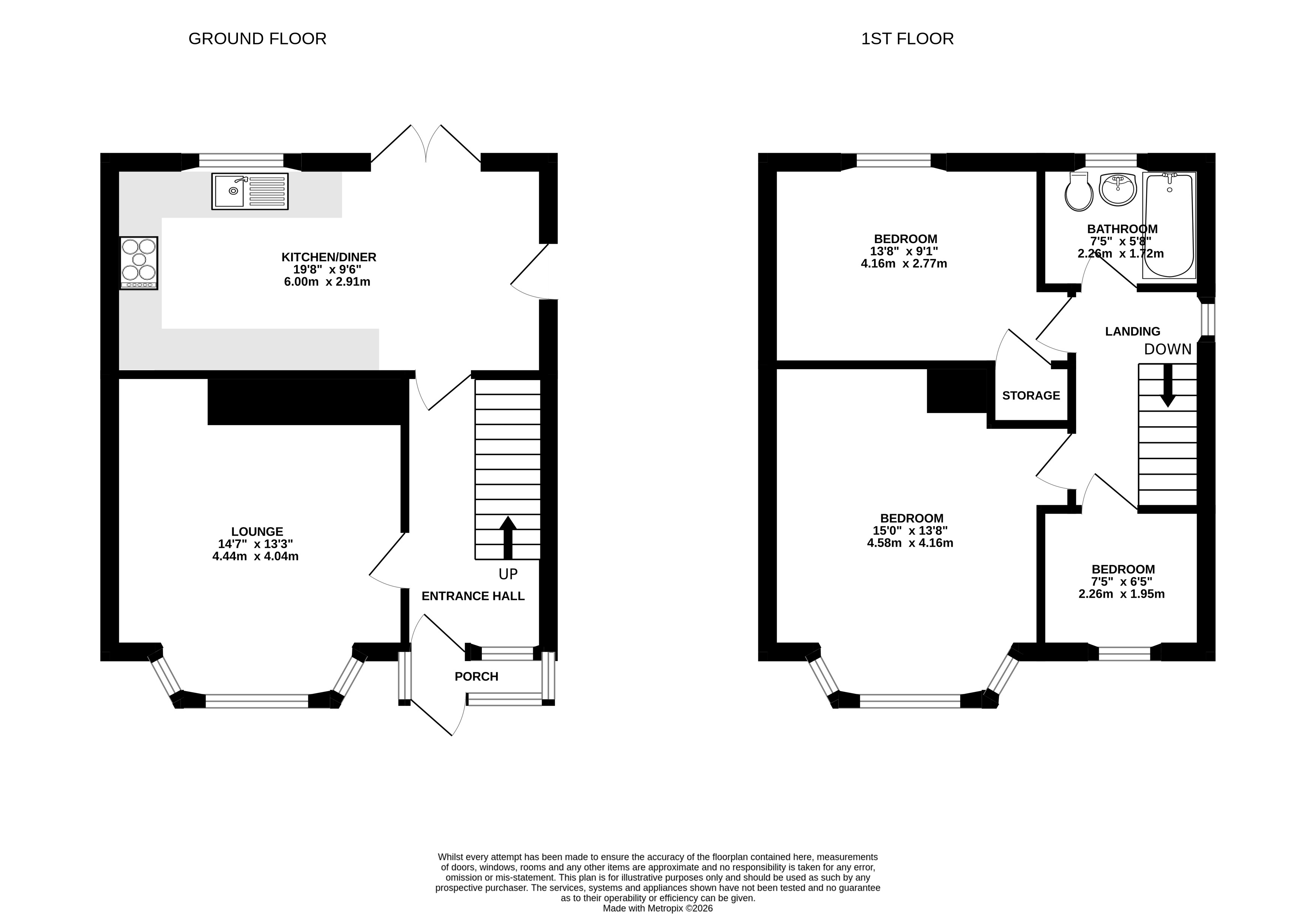
  • 83 sqm - taken from EPC

Detail

You enter this house via the porch into the spacious hallway. There is a useful storage cupboard here and stairs ascend to the first floor. At the front is the lounge, it boasts a large bay window which really adds to the feeling of space in this room. Spanning the width of the house at the rear is the kitchen/diner. The kitchen has plenty of cupboards & workto...

Similar properties

Shirehampton

Area guide
Shirehampton Sales
14-16 High Street, Shirehampton, Bristol, BS11 0DP
We’re open...

Sunday

Monday

Tuesday

Wednesday

Thursday

Friday

Saturday

Closed

09:00 - 18.00

09:00 - 18.00

09:00 - 18.00

09:00 - 18.00

09:00 - 18.00

09.00 - 16.00