This lovely property is perfect for families who want to be close to the village, and is a short walk to both Westbury Primary and Bristol Free Secondary School.
Its also close to Henleaze High Street, Southmead Hospital and the popular Canford Park.
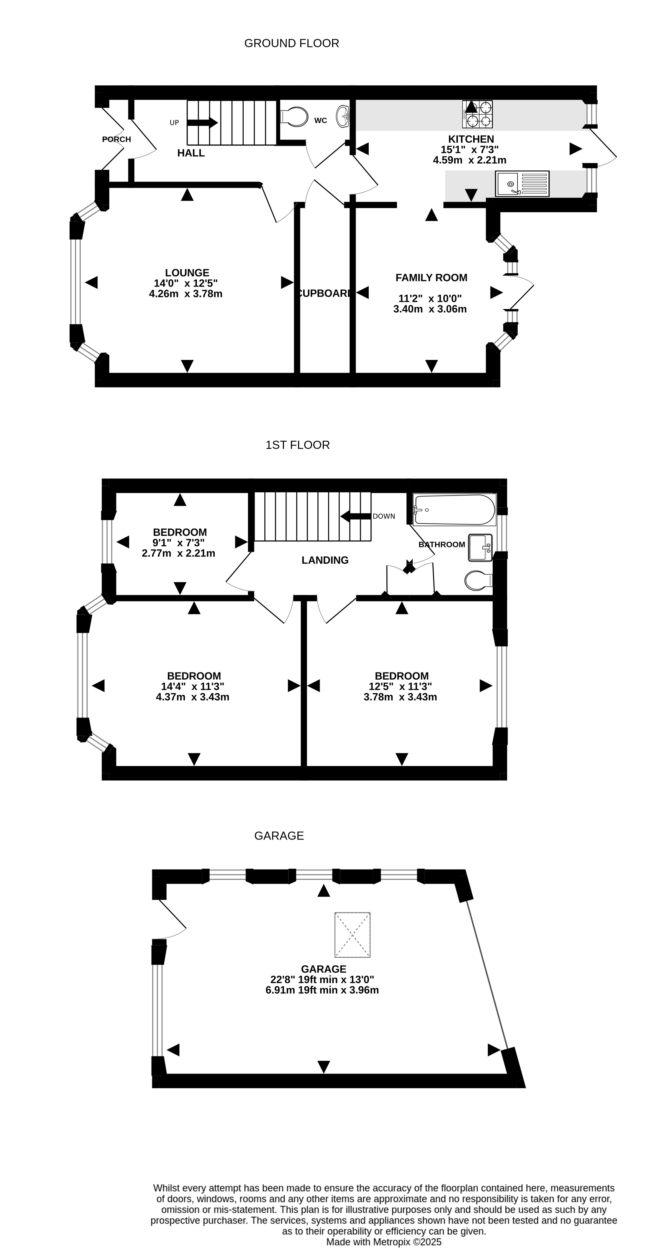
Accessed via a porch which opens to the main hallway, the ground floor has 2 reception rooms - a lounge at the front...
This lovely property is perfect for families who want to be close to the village, and is a short walk to both Westbury Primary and Bristol Free Secondary School.
Its also close to Henleaze High Street, Southmead Hospital and the popular Canford Park.
Accessed via a porch which opens to the main hallway, the ground floor has 2 reception rooms - a lounge at the front with a wide bay window that allows lots of natural light in, and a dining/family room at the rear.
The dining/family room is open to the kitchen so is a sociable space, and also has a door that opens to the garden.
The kitchen has ample cupboard & worktop space and has an integrated induction hob and double oven, and there is plumbing for a washing machine & dishwasher. You can also access the garden from here.
There is a large storage cupboard on this floor, as well as a WC under the stairs.
Upstairs there are 3 bedrooms and the bathroom. 2 of the bedrooms are generous sized doubles, whilst the third room is a great kids room or home office.
The bathroom has a white suite and there is a shower over the bath.
You can access the loft from the landing and there is great potential here to convert this space - subject to obtaining the relevant consents.
The large garage at the rear also has lots of potential as this could easily be converted into a home office/summer room, whilst still retaining lots of storage.
The house has gas central heating & double glazing.
Outside
The house is slightly elevated from the road and there is a low maintenance garden to the front.
The back garden is accessed from both the kitchen and the family room, and both open to the paved patio. being next to the house, this is perfect for outdoor drinks & dining.
There is a lawned area in the middle, whilst there is another patio beyond this. A pedestrian gate opens to the rear lane.
The detached garage is approx 260 sqft/ 24 sqm, and offers loads of potential thanks to its size. It has an electric roller door, and there are lots of windows plus a skylight that provides lots of natural light into the space.
As previously mentioned, it could easily be utilised as a home office/summer room.
Location
You have so much literally minutes away - The village with its lovely cafes and pubs, Henleaze High Street with its great selection of shops, the ever popular Canford Park and there are plenty of bus stops that provide access either into or out of the city.
Footpaths provide easy access to Westbury Primary School, whilst Bristol Free Secondary School is also nearby.
Other local schools include Redmaids, St Ursula's and Badminton.
Southmead Hospital is 1.2 miles away, whilst Cribbs Causeway with its shops & leisure outlets is approx 2.5 miles away.
We think...
Families will value the great location thanks to its proximity to the village and the local schools. The fact it can be easily extended is appealing, as is the large garage as this provides plenty of options.