Skip to content
Underwood Road
Portishead, Bristol, BS20

Sold STC

£308,000

1 bed bungalow

Bedrooms

1

Bathrooms

1

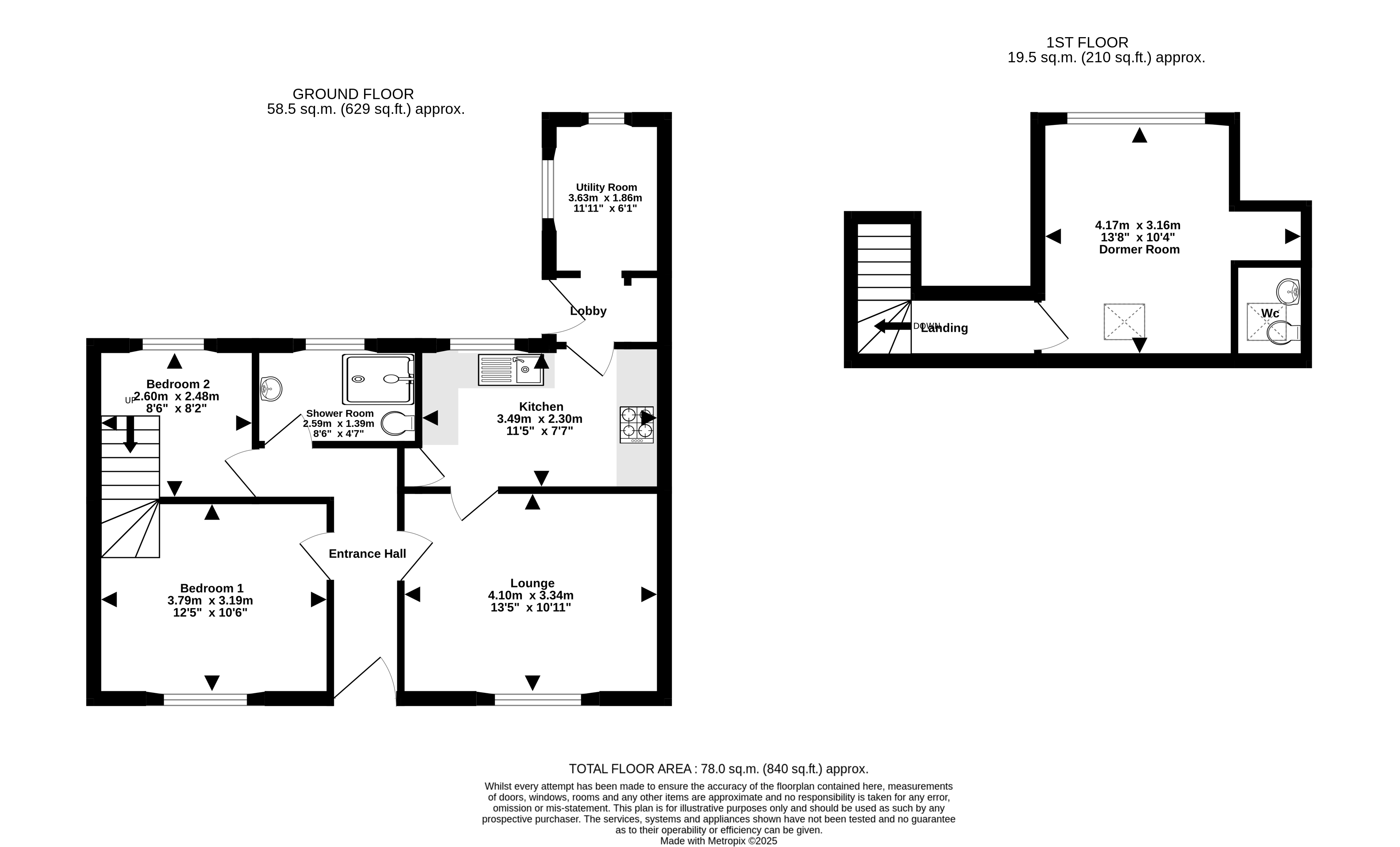
Introducing this expansive two-bedroom Dormer bungalow located on Underwood Road. Enjoy breath-taking views of the surrounding fields from this property, which is conveniently situated just a short distance from the bustling High Street.

Key features

  • Underwood Road
  • Portishead
  • 2 bedrooms
  • Dormer Bungalow
  • Driveway
  • Utility room
  • Freehold
  • EPC - TBC

Detail

Upon entering through the front door, you will find a spacious hallway that leads into a bright and open lounge diner, seamlessly connecting to a large, well-equipped kitchen with ample storage space, built-in oven, and hob. Additionally, there is a convenient utility area attached to the kitchen. The bungalow boasts two bedrooms and a dormer room with its own toilet and basin. The bungalow provides ample living space for a comfortable lifestyle.

Similar properties

Portishead

Area guide
Portishead Sales
43 High Street, Portishead, BS20 6AA
We’re open...

Sunday

Monday

Tuesday

Wednesday

Thursday

Friday

Saturday

Closed

09:00 - 18.00

09:00 - 18.00

09:00 - 18.00

09:00 - 18.00

09:00 - 18.00

09.00 - 16.00