Clarence Grove Road
Weston-super-Mare, BS23
Sold STC
£375,000
2 bed
2
2
2
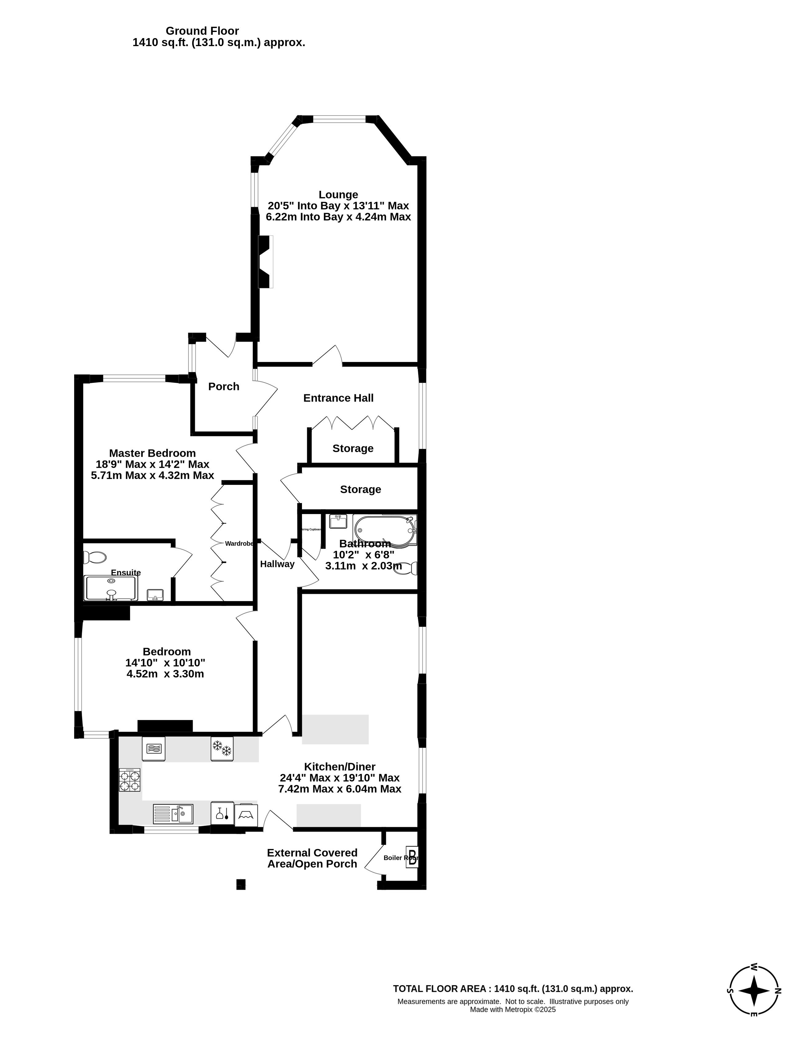
Set within an elegant and imposing Victorian building, this stunning two bedroom garden apartment spans the entire ground floor and features both front and rear gardens, as well as off street parking.
Key features
- Clarence Grove Road
- Majestic garden apartment
- Two double bedrooms
- Impressive kitchen/diner
- Front and rear gardens
- Off street parking
- Beautiful location
- Superb period building
- Lounge with bay window
- Ensuite and main bathroom
Detail
This exceptional garden apartment is truly unrivalled in space, style, and location. Originally a three bedroom layout, it has been thoughtfully renovated and reconfigured by the current owner to create a flowing, elegant home that blends modern finishes with period charm. The light-filled accommodation begins with an entrance porch featuring encaustic tiles, leading...
What's yours worth?
A closer look...










Weston-Super-Mare
Area guideWeston Sales
Suite 57, Pure offices, Pastures Ave, St Georges, Weston-super-Mare, BS22 7SB
We’re open...
Sunday
Monday
Tuesday
Wednesday
Thursday
Friday
Saturday
Closed
09:00 - 18.00
09:00 - 18.00
09:00 - 18.00
09:00 - 18.00
09:00 - 18.00
09.00 - 16.00