Skip to content
1 Argus Road
Bedminster, Bristol, BS3

Sold STC

£450,000

3 bed end terraced house

Bedrooms

3

Living Rooms

2

Bathrooms

1

End of terraced 3-bed property in Bedminster with courtyard garden – perfect for starting a new chapter in a friendly community.

Key features

  • Argus Road, Bedminster
  • 3-Bedrooms
  • End Of Terraced
  • Lounge
  • Dining Room
  • Kitchen/Breakfast Room
  • Courtyard Garden
  • Side Access
  • 3 Piece Suite Bathroom

Detail

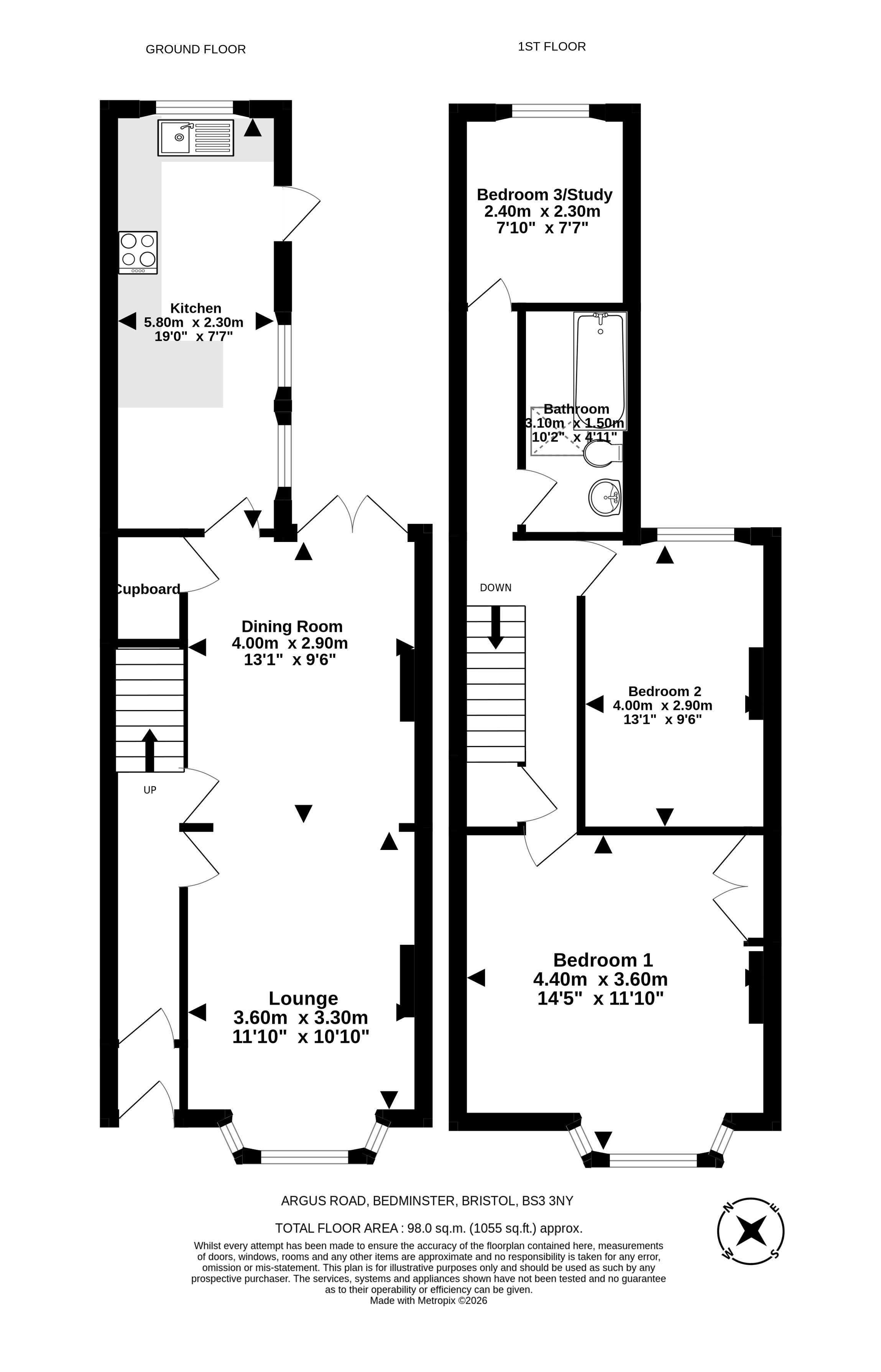
Situated on Argus Road, this charming three-bedroom end-of-terrace home is full of character and warmth throughout. The welcoming lounge features a log burner, shutters and stripped wooden floors, creating a cosy yet stylish living space. To the rear is a dining room with a built-in cupboard, stripped floors and a generous understairs storage cupboard, ideal for keeping...

Similar properties

Bedminster

Area guide
Southville Sales
The Plaza, 275 North Street, Southville, Bristol, BS3 1JN
We’re open...

Sunday

Monday

Tuesday

Wednesday

Thursday

Friday

Saturday

Closed

09:00 - 18.00

09:00 - 18.00

09:00 - 18.00

09:00 - 18.00

09:00 - 18.00

09.00 - 16.00