Skip to content
Old Barrow Hill
Shirehampton, Bristol, BS11

Sold STC

£380,000

3 bed town house

Bedrooms

3

Living Rooms

2

Bathrooms

2

A sizeable modern townhouse residing itself over 3 floors that has been beautifully finished and offers ample living space for families.

Key features

  • Townhouse
  • 3 Storey Home
  • 4 Bedrooms
  • Open Plan Lounge/Kitchen
  • Double Glazing
  • Gas Central Heating
  • Garage
  • Parking
  • Gardens

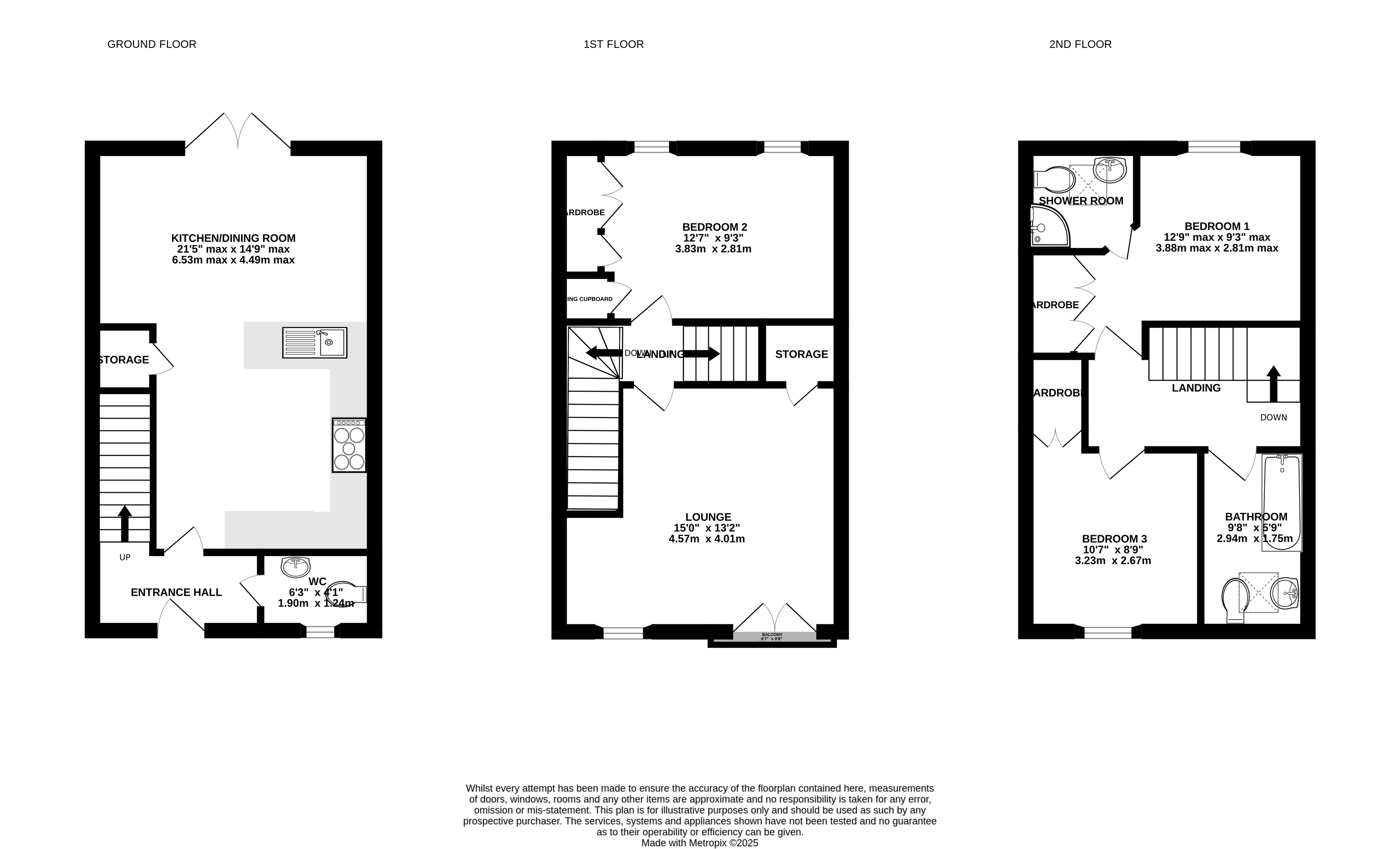
Detail

The house is over three floors and offers versatile living arrangements. The ground floor has an open plan kitchen/dining/family room, with doors that open to the garden. The kitchen has plenty of cupboard and worktop space, and fitted appliances include oven, hob, fridge, freezer and dishwasher. There is also a WC and a large storage cupboard on this floor. On th...

Similar properties

Shirehampton

Area guide
Shirehampton Sales
14-16 High Street, Shirehampton, Bristol, BS11 0DP
We’re open...

Sunday

Monday

Tuesday

Wednesday

Thursday

Friday

Saturday

Closed

09:00 - 18.00

09:00 - 18.00

09:00 - 18.00

09:00 - 18.00

09:00 - 18.00

09.00 - 16.00