Skip to content
Atwood Drive
Lawrence Weston, Bristol, BS11

£325,000

3 bed semi-detached house

Bedrooms

3

Living Rooms

2

Bathrooms

1

An extended 3 bedroom home nestled on a quiet residential street in Lawrence Weston, within walking distance to Blaise Castle.

Key features

  • Extended at the rear
  • Close to Blaise Castle and other amenities
  • Large kitchen/diner/lounge
  • Off street parking
  • South facing garden
  • Recently fitted bathroom

Detail

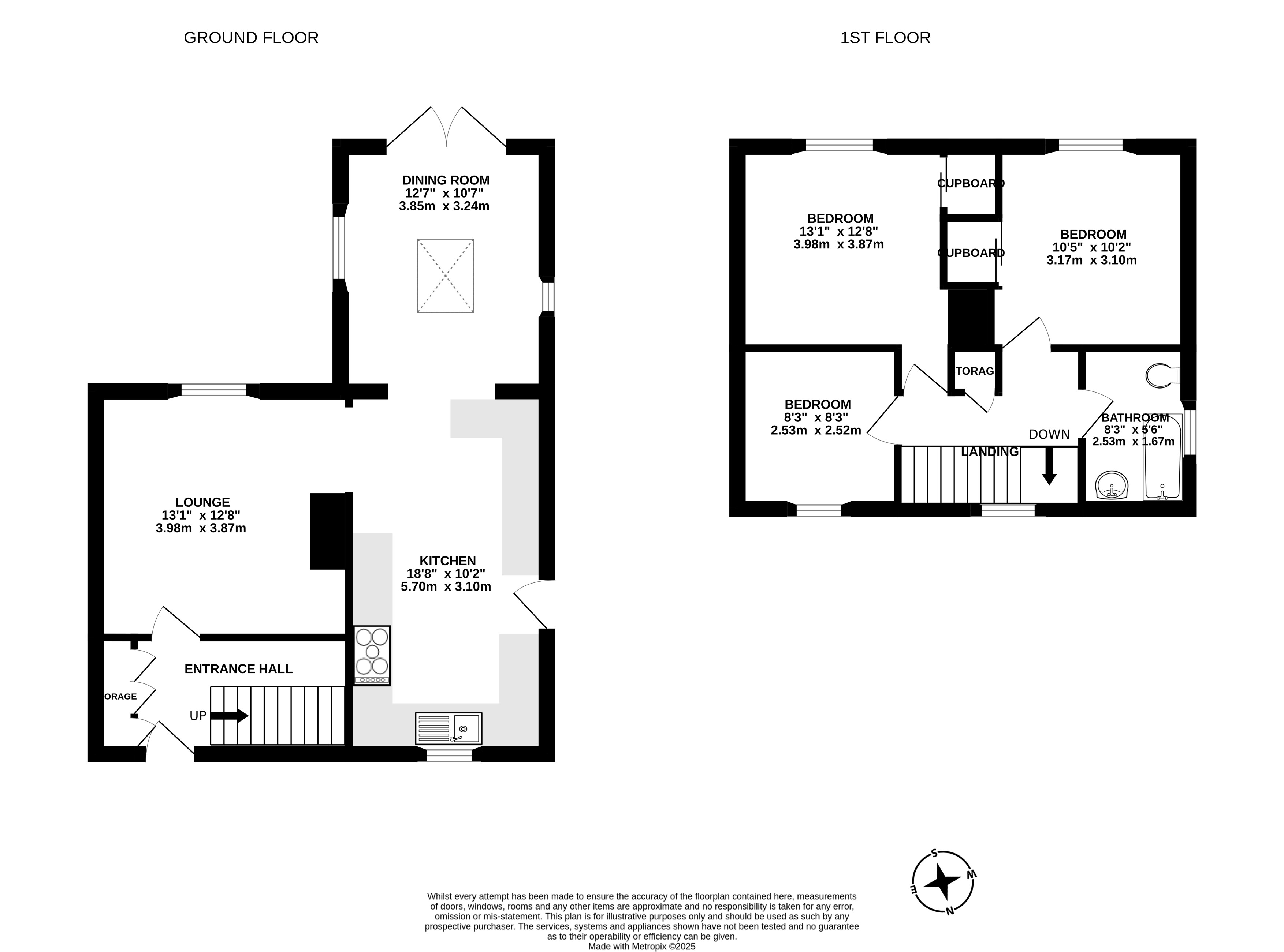
As you step into the spacious hallway, stairs ascend to the first floor, and you have access into the lounge. Sitting at the back of this home, the lounge offers pleasant views of the rear garden. An opening from the lounge leads into the kitchen/diner, this really is the heart of this home. The sellers have extended to create additional living space, the two windows, French doors and Velux windows allow plenty of light to flood into this room. The bespoke wooden kitchen has been thoughtfully designed with ample storage and worktop space with space for a range cooker. Upstairs you will find 3 bedrooms, all of which accommodate a double bed. The family bathroom is a generous size and has also been recently updated.

Similar properties

Lawrence Weston

Area guide
Shirehampton Sales
14-16 High Street, Shirehampton, Bristol, BS11 0DP
We’re open...

Sunday

Monday

Tuesday

Wednesday

Thursday

Friday

Saturday

Closed

09:00 - 18.00

09:00 - 18.00

09:00 - 18.00

09:00 - 18.00

09:00 - 18.00

09.00 - 16.00