Skip to content
Maple Road
Horfield, Bristol, BS7

Guide price

£300,000

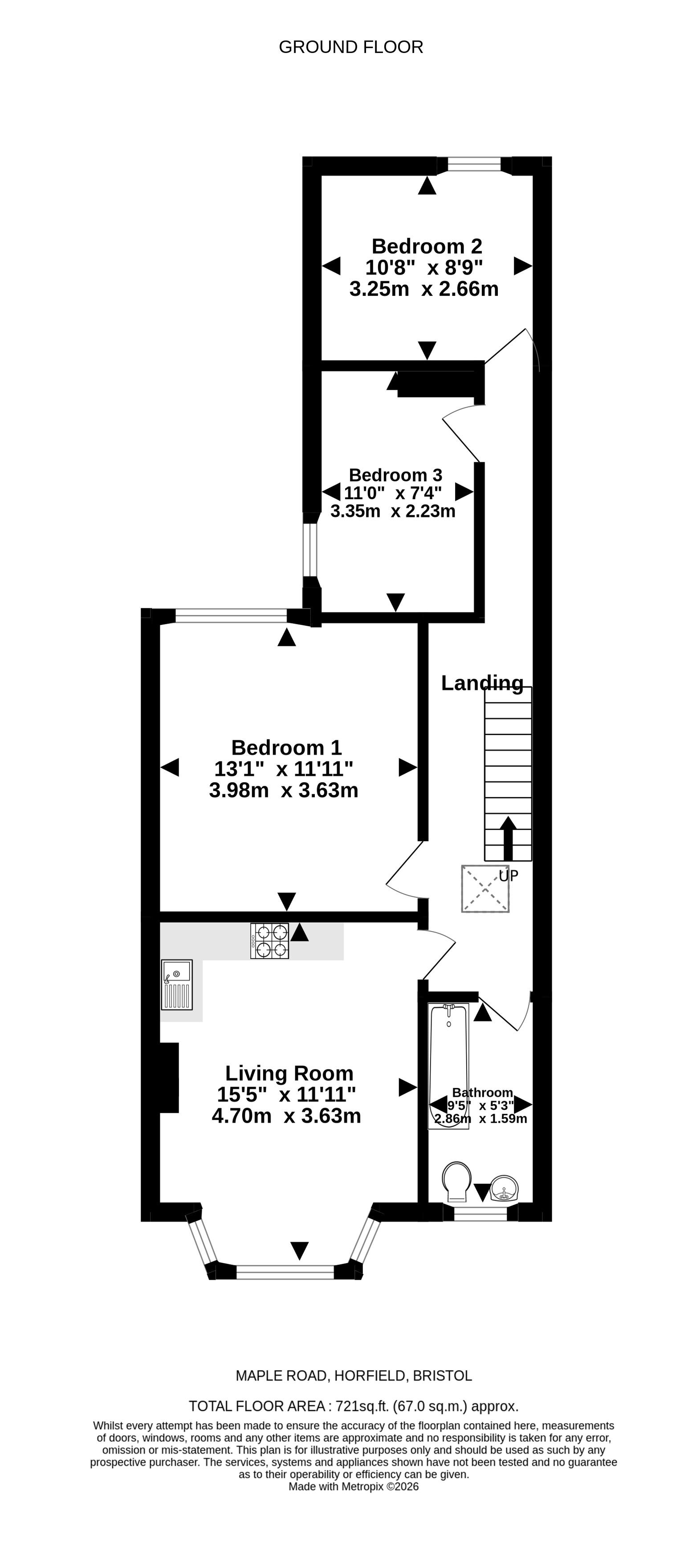
3 bed apartment / flat

Bedrooms

3

Living Rooms

1

Bathrooms

1

A well-presented three-bedroom first-floor flat located on Maple Road in Horfield.

Key features

  • Three-bedroom first-floor flat
  • Close proximity to Horfield Common and Gloucester Road
  • No onward chain
  • Current energy efficiency rating - C

Detail

The home is well presented throughout, offering a modern and fresh feel from the moment you step inside. A well-maintained communal entrance leads into the property’s welcoming hallway, with stairs rising to the first floor where the accommodation is located. At the front of the property is the bright and spacious living room/kitchen, creating a comfortable and practical living space. The bathroom is conveniently located adjacent to this area. The property also benefits from three well-proportioned bedrooms, each offering ample storage space.

Similar properties

Horfield

Area guide
Bishopston Sales
201 Gloucester Rd, Bishopston, Bristol, BS7 8BG
We’re open...

Sunday

Monday

Tuesday

Wednesday

Thursday

Friday

Saturday

Closed

09:00 - 18.00

09:00 - 18.00

09:00 - 18.00

09:00 - 18.00

09:00 - 18.00

09.00 - 16.00