Skip to content
Portbury Walk
Shirehampton, BS11

Let agreed

£1,600 pcm

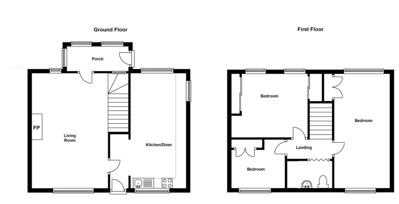
3 bed house

Bedrooms

3

Living Rooms

2

Bathrooms

1

WOW! A stunning family home that has seen a great deal of refurbishment. With three good bedrooms and a super location this really should not be missed! Call NOW to book your viewing

Key features

  • Superb refurbished house
  • Three good bedrooms
  • Sought after location

Detail

New to the market is this refurbished family home set in a really popular and convenient location being set in a cul de sac. The deceptive accomodation comprises of a formal living room, a refitted dining kitchen, three good bedrooms and a wet room. Outside is a lovey private garden, great for sitting out in sunnier times! Also close to hand are many public transpoert o...

Similar properties

Shirehampton

Area guide
Portishead Lettings
43 High Street, Portishead, BS20 6AA
We’re open...

Sunday

Monday

Tuesday

Wednesday

Thursday

Friday

Saturday

Closed

09:00 - 18.00

09:00 - 18.00

09:00 - 18.00

09:00 - 18.00

09:00 - 18.00

09.00 - 16.00