Skip to content
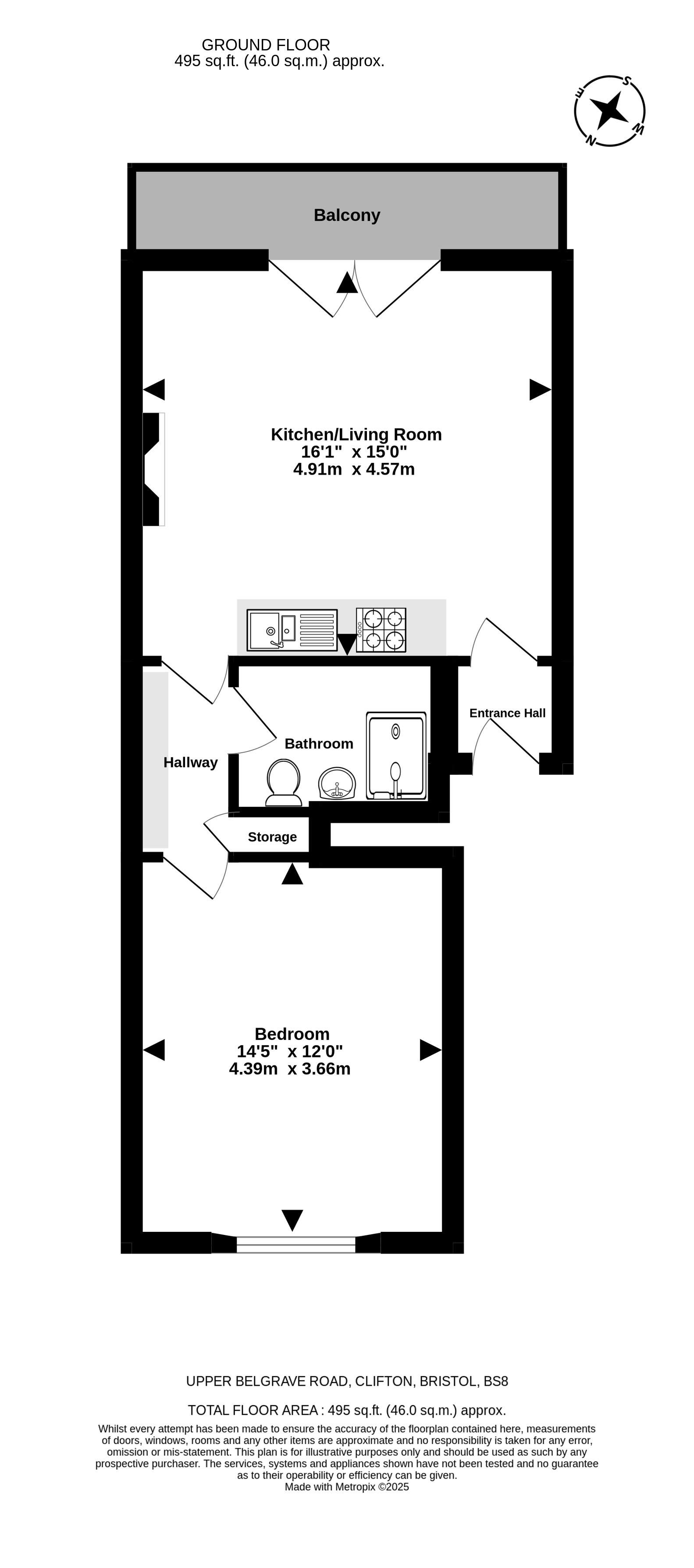
Upper Belgrave Road
Clifton, Bristol, BS8

Guide price

£325,000

1 bed apartment / flat

Bedrooms

1

Living Rooms

1

Bathrooms

1

An immaculate one bedroom, hall floor apartment immediately adjacent to the Durdham Downs, with balcony and breath-taking southerly views over the city. Renovated to an exceptional standard, the property offers a rare opportunity to enjoy elegant proportions and timeless character alongside high-spec, contemporary living.

Key features

  • Stunning 1 double bedroom apartment
  • Renovated to an exceptional standard
  • Breath taking southerly views
  • Immediately opposite Durdham Downs
  • Close to Whiteladies Road
  • Floor area 46 square metres

Detail

Set within a handsome period building on one of Bristol’s most desirable roads, this beautifully presented hall floor flat has both striking period features and breath taking southerly views over the city. Renovated to an exceptional standard, the property offers a rare opportunity to enjoy elegant proportions and timeless character alongside high-spec, contemporary...

Similar properties

Clifton

Area guide
Clifton Sales
187-189 Whiteladies Road, Redland, Bristol, BS8 2RY
We’re open...

Sunday

Monday

Tuesday

Wednesday

Thursday

Friday

Saturday

Closed

09:00 - 18.00

09:00 - 18.00

09:00 - 18.00

09:00 - 18.00

09:00 - 18.00

09.00 - 16.00