Skip to content
459 Newfoundland Way
Portishead, Bristol, BS20

£209,000

1 bed apartment / flat

Bedrooms

1

Living Rooms

1

Bathrooms

1

Situated in the stunning Portishead Marina is this well-presented 1-bedroom apartment sold with no onward chain.

Key features

  • Newfoundland Way
  • Portishead
  • 1 bedroom
  • Lift Access to All floors
  • Allocated Parking
  • Balcony
  • No Onward Chain
  • Leasehold
  • EPC - B

Detail

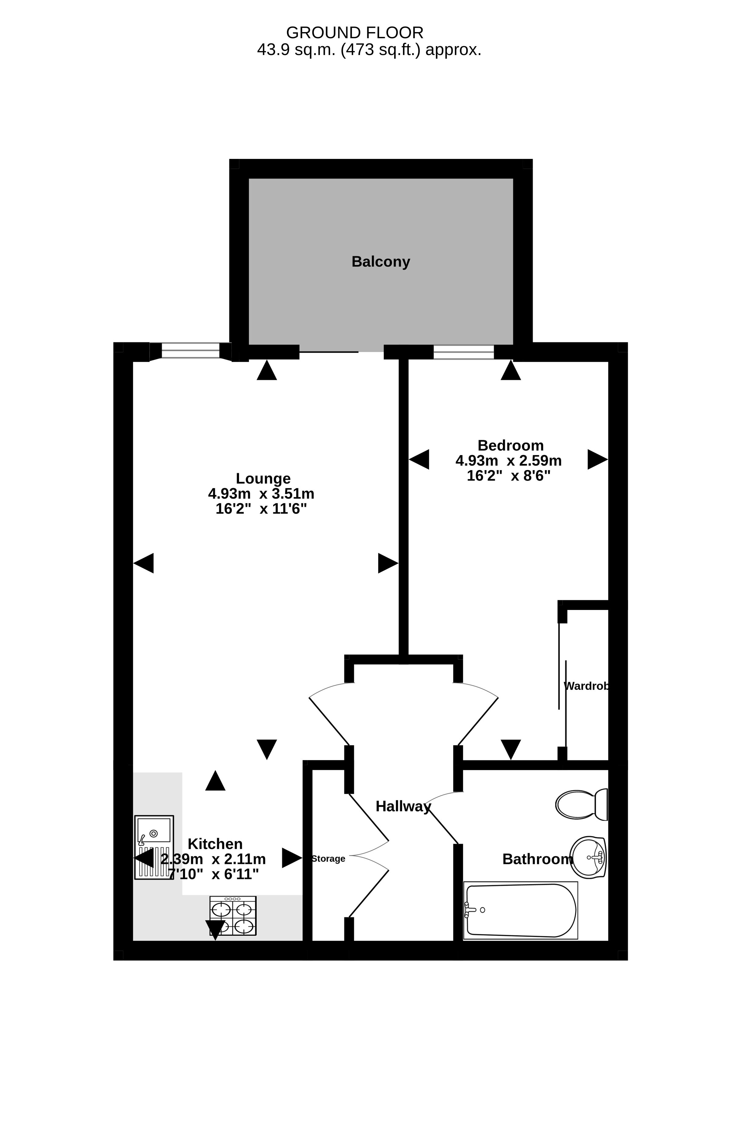
Welcome to this charming 1-bedroom flat in the heart of Portishead, offering a comfortable and convenient lifestyle. As you enter the apartment you are greeted by an open-plan light-filled lounge and kitchen. The lounge benefits from having sliding doors leading to the balcony. Whilst the kitchen is well equipped with appliances and storage space. The bedroom has ample built-in storage, and there is also a good-sized bathroom. The building that this property is located in is currently undergoing cladding works.

Similar properties

Portishead

Area guide
Portishead Sales
43 High Street, Portishead, BS20 6AA
We’re open...

Sunday

Monday

Tuesday

Wednesday

Thursday

Friday

Saturday

Closed

09:00 - 18.00

09:00 - 18.00

09:00 - 18.00

09:00 - 18.00

09:00 - 18.00

09.00 - 16.00