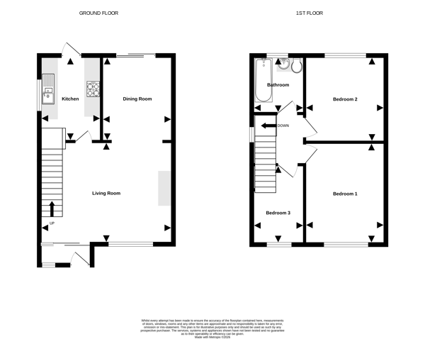
This well-presented 3-bedroom semi-detached home is new to the market and would make an ideal purchase for first time buyers or any growing family.
Upon entering through the entrance porch, you are welcomed into a spacious open-plan living and dining area, which offers a bright and airy feel and provides direct access to a well-maintained rear garden. The ground floor is further complemented by a newly fitted modern kitchen.
Upstairs, the property comprises of 2 generously sized double bedrooms, a comfortable single bedroom, and a contemporary family bathroom, completing the accommodation.
This well-presented 3-bedroom semi-detached home is new to the market and would make an ideal purchase for first time buyers or any growing family.
Upon entering through the entrance porch, you are welcomed into a spacious open-plan living and dining area, which offers a bright and airy feel and provides direct access to a well-maintained rear garden. The ground floor is further complemented by a newly fitted modern kitchen.
Upstairs, the property comprises of 2 generously sized double bedrooms, a comfortable single bedroom, and a contemporary family bathroom, completing the accommodation.
Outside
Externally, the property benefits from a well-maintained front garden, predominantly laid to lawn, creating an attractive and welcoming approach to the home. There is also convenient side access, allowing easy movement between the front and rear of the property.
To the rear, the garden continues in a similar style, being mainly laid to lawn with a small patio area, offering a pleasant outdoor space suitable for a variety of uses, such as relaxing, entertaining, or family activities.
In addition, the property benefits from rear access, adding further practicality, along with a single garage, providing secure parking or useful additional storage space.
Location
This desirable location offers an abundance of amenities, including shops, leisure facilities, and large employers. Major transportation links are nearby, including a MetroBus stop, Patchway Train Station, the A38 leading to the M4/M5 interchange, and access to the City of Bristol. There is also easy access at the end of the road to one of the many Bradley Stoke nature reserves, which link together to form a network of lovely walks and cycle paths.
Material information (provided by owner)
Tenure - Freehold
Council tax band - C