Skip to content
Felix Road
Easton, Bristol, BS5

Guide price

£435,000

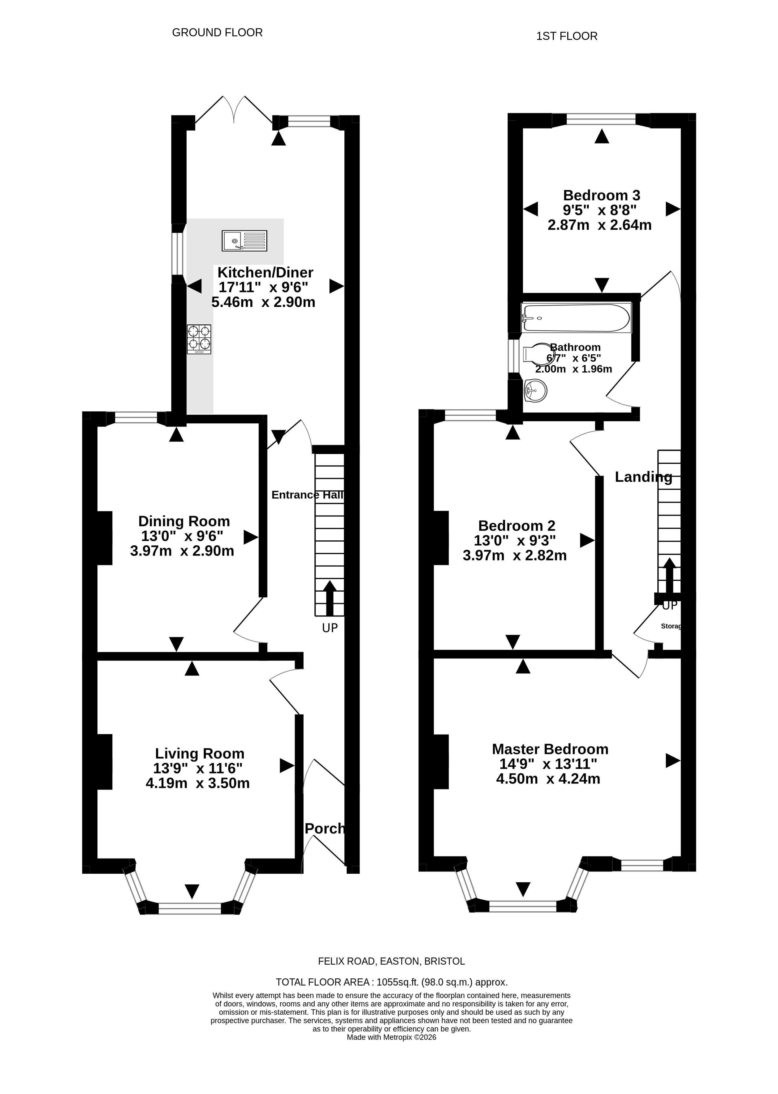
3 bed terraced house

Bedrooms

3

Living Rooms

2

Bathrooms

1

Occupying an enviable position on a quiet residential road in Easton, this expansive three-bedroom Victorian terrace home combines a mixture of original Victorian features and seamless contemporary decor throughout for a truly stunning finish.

Key features

  • Victorian terrace, beautifully styled throughout
  • Three well-proportioned bedrooms
  • In the popular area of Easton close to local shops, cafes and restaurants
  • Private and enclosed south-east facing rear garden
  • Freehold
  • Current energy efficiency rating - D

Detail

Entry is through a traditional hallway, where hardwood flooring runs underfoot and sets the tone from the outset. The eye-catching living room sits at the front of the home, styled with confidence and personality. A striking feature wall anchors the space, complemented by an open fireplace, ceiling coving and sleek alcove shelving that add depth and character without ov...

Similar properties

Easton & Eastville

Area guide
Bishopston Sales
201 Gloucester Rd, Bishopston, Bristol, BS7 8BG
We’re open...

Sunday

Monday

Tuesday

Wednesday

Thursday

Friday

Saturday

Closed

09:00 - 18.00

09:00 - 18.00

09:00 - 18.00

09:00 - 18.00

09:00 - 18.00

09.00 - 16.00