Skip to content
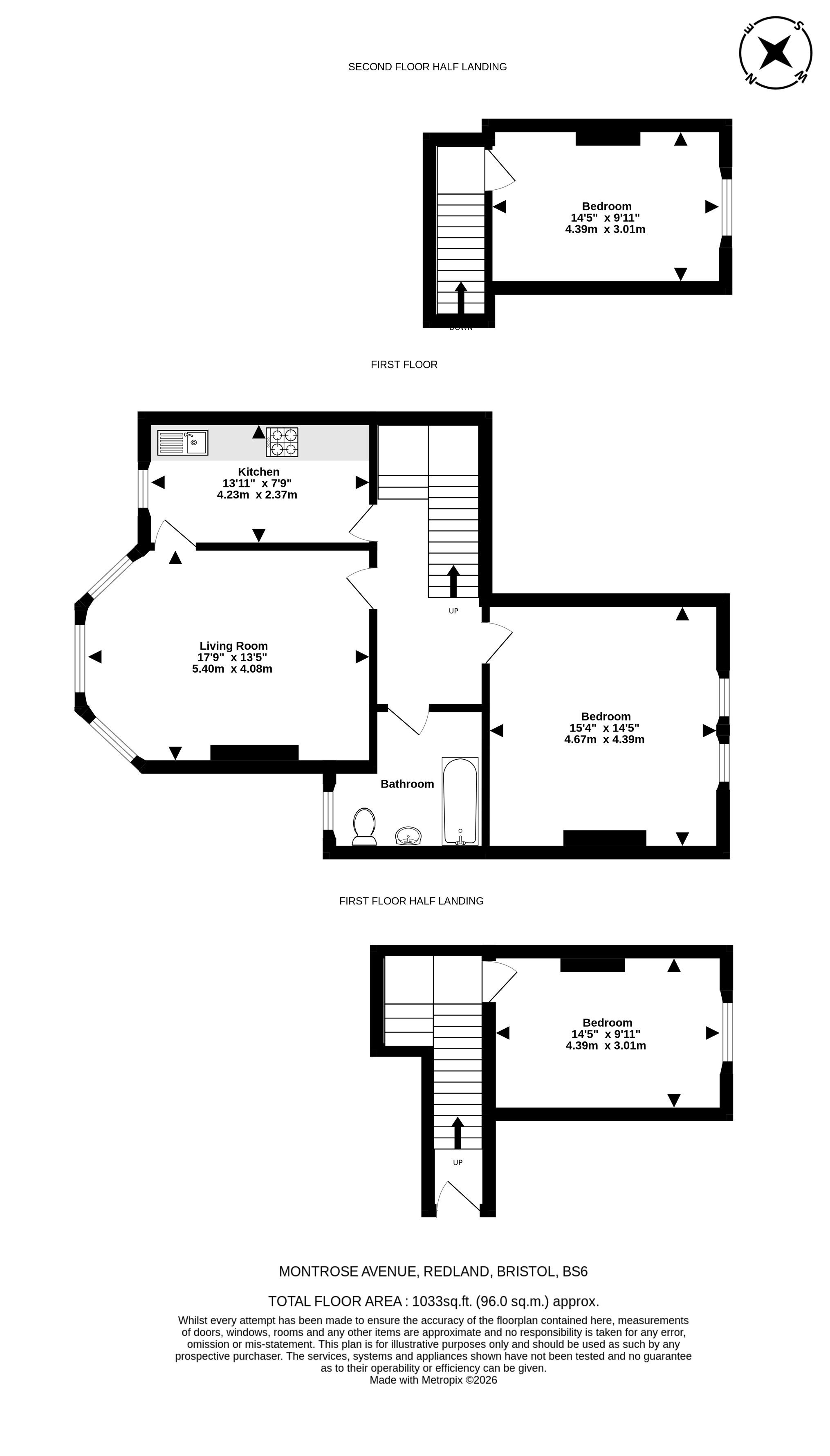
Montrose Avenue
Redland, Bristol, BS6

Guide price

£485,000

3 bed apartment / flat

Bedrooms

3

Living Rooms

1

Bathrooms

1

Step onto the ladder: Spacious three-bed maisonette with no onward chain.

Key features

  • Three double bedrooms
  • Modern design and in good condition throughout
  • Bright living room with large bay window
  • Separate, well-equipped kitchen
  • Space for home working
  • No onward chain

Detail

This stunning three double bedroom maisonette is a perfect home for professional couples or a young family looking for a spacious and well-maintained property. Arranged over three floors, the property is in very good condition with a modern design throughout. The first floor has a spacious living room with a large bay window, allowing for plenty of natural light to...

Similar properties

Redland

Area guide
Clifton Sales
187-189 Whiteladies Road, Redland, Bristol, BS8 2RY
We’re open...

Sunday

Monday

Tuesday

Wednesday

Thursday

Friday

Saturday

Closed

09:00 - 18.00

09:00 - 18.00

09:00 - 18.00

09:00 - 18.00

09:00 - 18.00

09.00 - 16.00