Skip to content
Garrett Drive
Bradley Stoke, Bristol, BS32

Guide price

£415,000

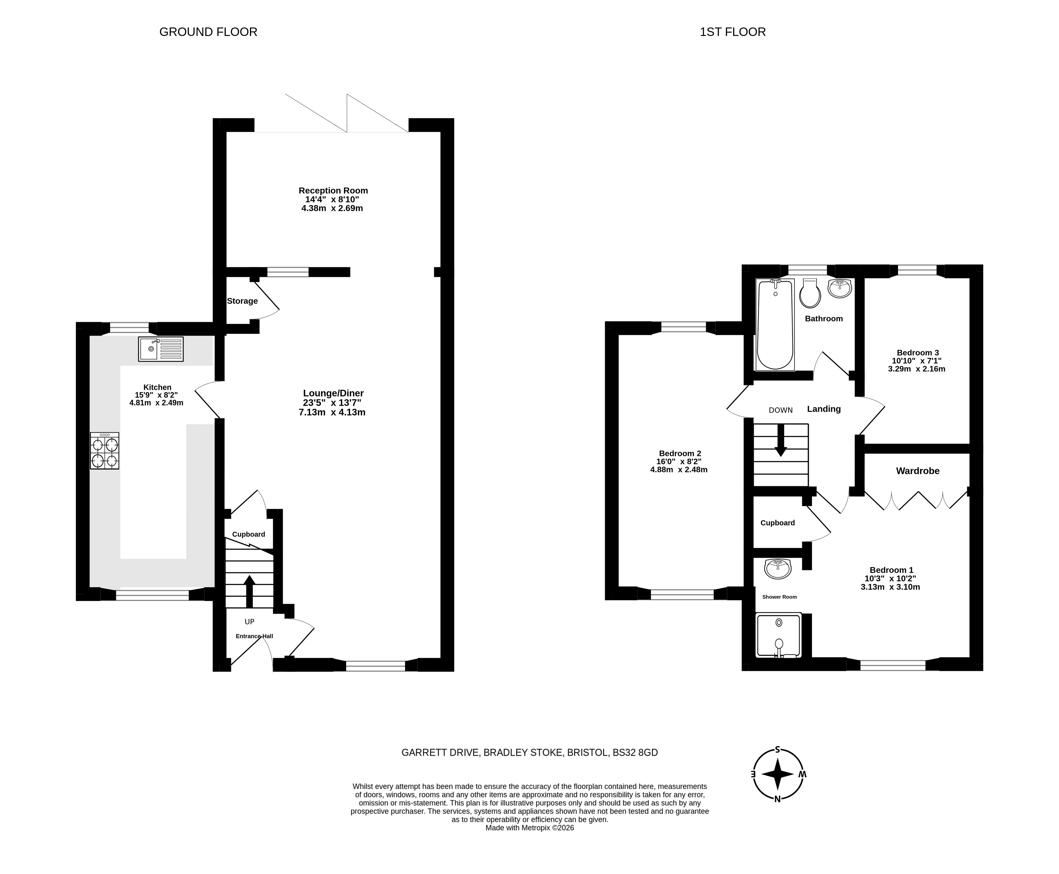
3 bed semi-detached house

Bedrooms

3

Living Rooms

2

Bathrooms

2

A beautifully presented and extended three double bedroom family home in the heart of Bradley Stoke, featuring a private south facing garden, modern open plan layout and bi-folding doors to the rear garden.

Key features

  • Garrett Drive
  • Vaulted ceiling rear extension
  • Three double bedrooms
  • Garage conversion to kitchen
  • Open plan aspect
  • South facing rear garden
  • Extensive off street parking
  • Modern kitchen and bathroom fittings
  • Solid oak floor to the lounge/diner

Detail

This stunning three-bedroom, two-bathroom semi-detached house on Garrett Drive is the perfect family home. With a vaulted ceiling rear extension, garage conversion to kitchen, and solid oak floor, this property offers a modern yet cozy feel. The open plan aspect and south facing rear garden create a bright and inviting space for relaxed living and entertaining. Extensive off-street parking and modern kitchen and bathroom fittings add to the appeal, making this home an ideal choice for those looking for a comfortable and stylish place to call their own.

Similar properties

Bradley Stoke

Area guide
Bradley Stoke Sales
Unit 7, Willowbrook Centre, Savages Wood Road, Bradley Stoke, Bristol, BS32 8BS
We’re open...

Sunday

Monday

Tuesday

Wednesday

Thursday

Friday

Saturday

Closed

09:00 - 18.00

09:00 - 18.00

09:00 - 18.00

09:00 - 18.00

09:00 - 18.00

09.00 - 16.00