Skip to content
Boston Road
Horfield, Bristol, BS7

Guide price

£485,000

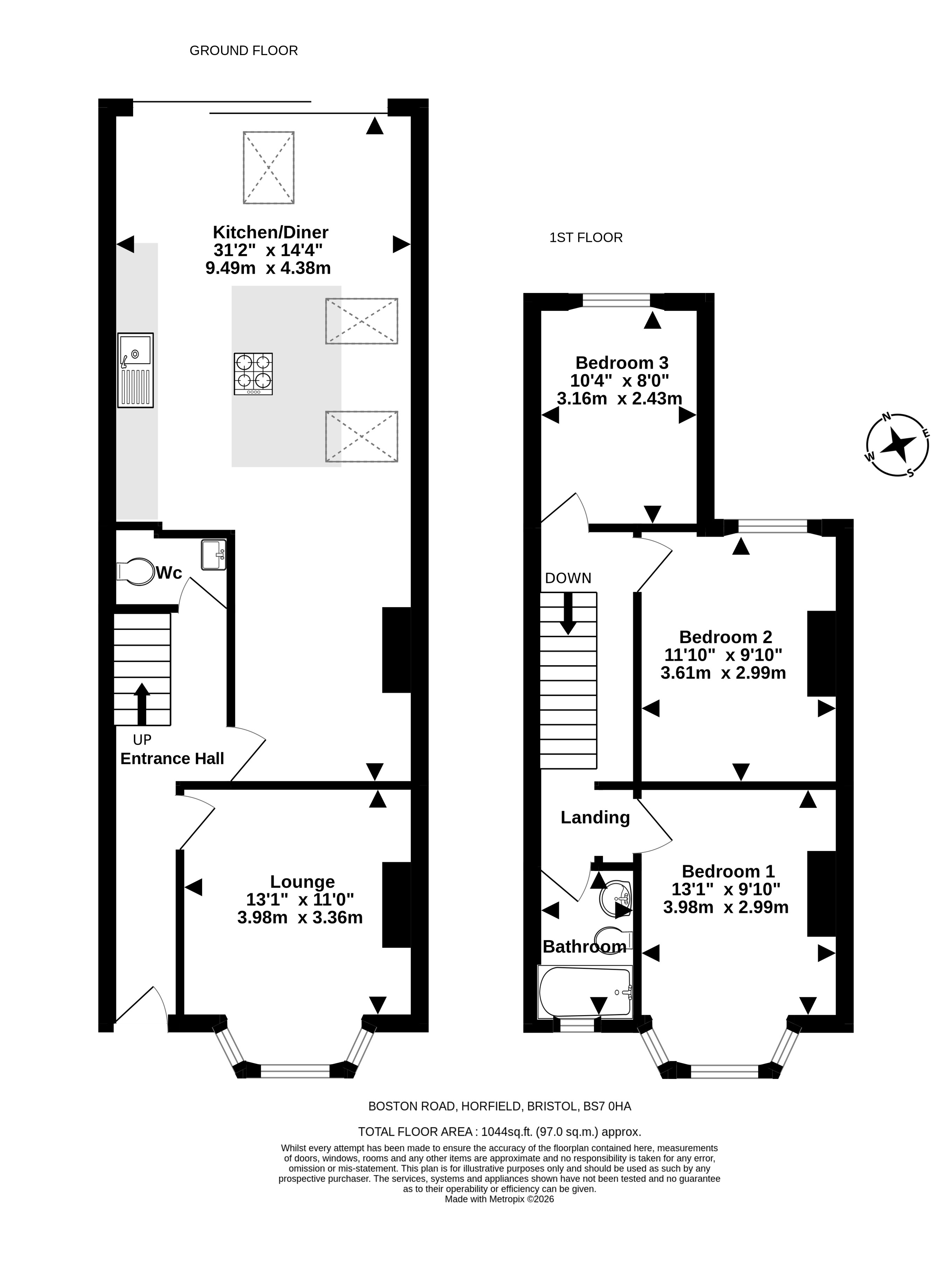
3 bed house

Bedrooms

3

Living Rooms

2

Bathrooms

2

Packed with colour and thoughtful design, this extended three-bedroom Victorian terrace in Horfield juxtaposes old and new with confidence and style.

Key features

  • Boston Road
  • Three double bedrooms
  • Victorian terrace on the highly sought after Boston Road
  • Ground floor rear-extension
  • Enclosed private rear garden
  • Lane with rear access
  • In the popular area of Horfield close to local shops, cafes and restaurants with Gloucester Road right on the doorstep
  • Downstairs W/C
  • EPC - D

Detail

The front room boasts a striking navy feature wall, centred around a generous bay window with attractive French shutters that fill the room with natural light. The impressively extended kitchen/diner occupies the rear elevation. At the front of this beautifully designed space is a welcoming seating nook, complete with a characterful log burner. Flowing seamlessly be...

Similar properties

Horfield

Area guide
Filton Sales Office
8 Gloucester Road North, Filton, Bristol, BS7 0SF
We’re open...

Sunday

Monday

Tuesday

Wednesday

Thursday

Friday

Saturday

Closed

09:00 - 18.00

09:00 - 18.00

09:00 - 18.00

09:00 - 18.00

09:00 - 18.00

09.00 - 16.00