Skip to content
Repton Hall
Royal Victoria Park, Bristol, BS10

Guide price

£450,000

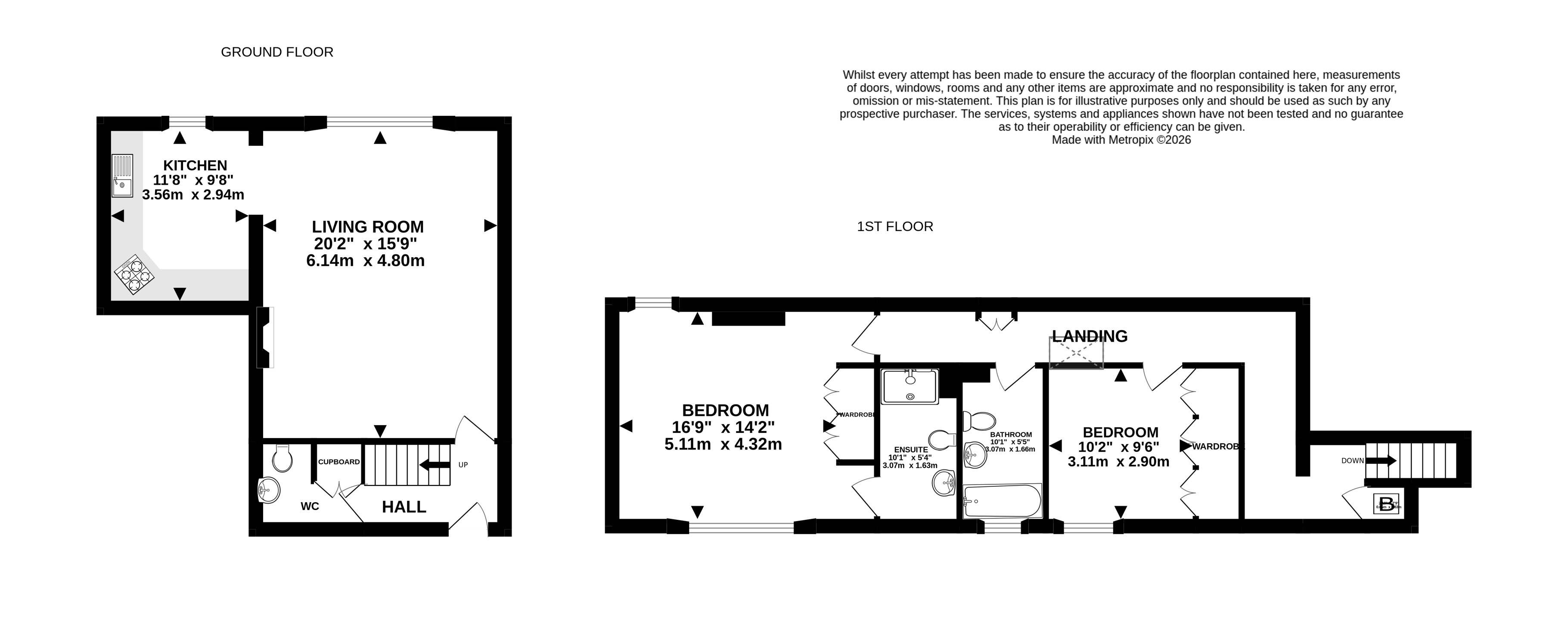
2 bed maisonette

Bedrooms

2

Living Rooms

2

Bathrooms

2

A stunning 98 sqm maisonette within this beautiful Grade 2 listed building, set within acres of parkland and being sold with no chain.

Key features

  • A stunning grade 2 listed building dated back to 1802
  • Located within acres of park & woodland
  • Spacious accommodation of 98 sqm set over 2 floors
  • South facing living room with large window allowing lots of natural light
  • 2 double bedrooms - both with fitted wardrobes
  • Bathroom, en-suite & ground floor WC
  • Allocated parking plus exceptional communal gardens
  • No onward chain

Detail

Converted into luxury homes in 2003, this individual home has a spacious feel, retains lots of character and is set within acres of woodland & parkland. The electric private gates lead to a winding path through the tree lined grounds, eventually leading to the first glimpse of the stunning Grade 2 listed Repton Hall. The apartment is accessed from the original mai...

Similar properties

Westbury-on-Trym Sales
73 Westbury Hill, Westbury-on-Trym, Bristol, BS9 3AD
We’re open...

Sunday

Monday

Tuesday

Wednesday

Thursday

Friday

Saturday

Closed

09:00 - 18.00

09:00 - 18.00

09:00 - 18.00

09:00 - 18.00

09:00 - 18.00

09.00 - 16.00