Skip to content
North Street
Ashton, Bristol, BS3

Sold STC

£250,000

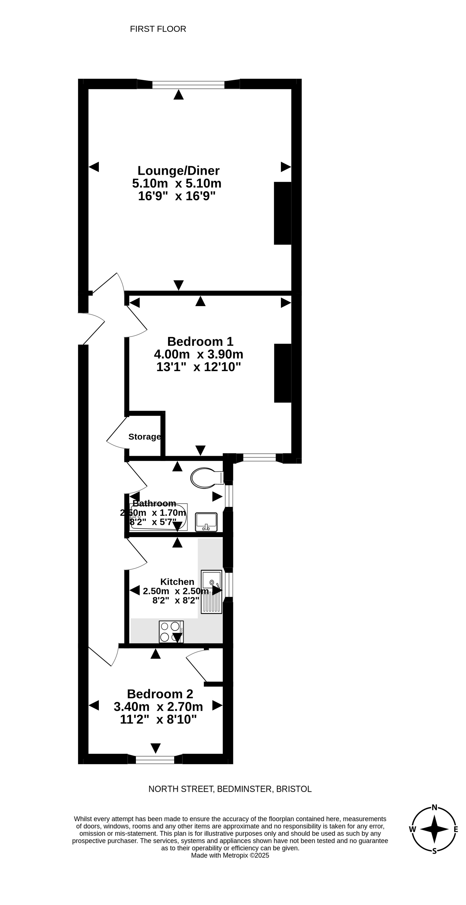
2 bed apartment / flat

Bedrooms

2

Living Rooms

1

Bathrooms

1

Charming 2-bed flat in Southville with a newly fitted kitchen and no chain. Perfect for first-time buyers or investors looking for a cozy home.

Key features

  • North Street, Southville
  • First Floor Flat
  • 2-Bedrooms
  • Living Room
  • Newly Fitted Kitchen
  • 3-Piece Suite Bathroom
  • Storage
  • No Chain

Detail

This first-floor flat offers two well-proportioned bedrooms, a bright and spacious living room, and a newly fitted kitchen with modern finishes. The property also includes a three-piece bathroom suite and convenient hallway storage. With no onward chain, this flat is ready for a new owner to move in and make it their own — ideal for first-time buyers or investors looking for a straightforward purchase.

Similar properties

Southville Sales
The Plaza, 275 North Street, Southville, Bristol, BS3 1JN
We’re open...

Sunday

Monday

Tuesday

Wednesday

Thursday

Friday

Saturday

Closed

09:00 - 18.00

09:00 - 18.00

09:00 - 18.00

09:00 - 18.00

09:00 - 18.00

09.00 - 16.00