This thoughtfully modernised, two-bedroom semi-detached home on Hall Street offers the perfect balance of comfort, practicality, and style. Extended to the rear, the property effortlessly combines open-plan modern living with the charm of an established neighbourhood. Ideal for first-time buyers, professionals, or homeowners seeking something truly special.
Upon ente...
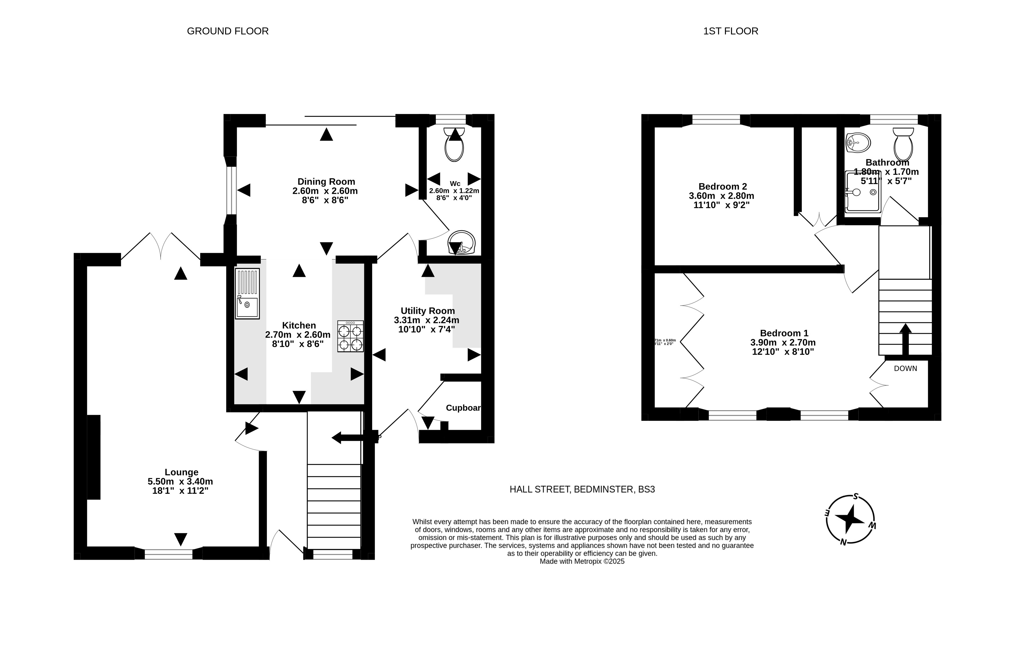
This thoughtfully modernised, two-bedroom semi-detached home on Hall Street offers the perfect balance of comfort, practicality, and style. Extended to the rear, the property effortlessly combines open-plan modern living with the charm of an established neighbourhood. Ideal for first-time buyers, professionals, or homeowners seeking something truly special.
Upon entering, you’re greeted by a welcoming hallway with the staircase rising to the first floor. To your left, the spacious lounge enjoys generous proportions and direct access to the rear garden, creating a peaceful retreat for relaxation or entertaining guests.
At the heart of the home lies the open-plan kitchen and dining space, cleverly extended to the rear to create a light-filled and sociable environment. Elegant bi-folding doors open seamlessly onto the garden, allowing for indoor-outdoor living and making this an exceptional space for hosting family and friends. The utility room, with its own external door and partnered convenient downstairs WC, adds practicality to everyday life.
Upstairs, you’ll find two well-proportioned bedrooms, each offering comfortable accommodation, along with a recently updated shower room finished to a contemporary standard.
While much of the hard work has been done, the property still presents a wonderful opportunity for its next owner to apply some final cosmetic touches, tailoring the décor to suit their own style and taste.
Externally, the private rear garden provides an inviting outdoor space for relaxation or summer entertaining.
Location
Hall Street enjoys an enviable position in Bedminster, one of Bristol’s most vibrant and in-demand areas. Just moments away lies the bustling North Street, famous for its independent cafés, artisan bakeries, and boutique shops, as well as popular eateries such as The Spotted Cow, Souk Kitchen and North Street Standard. The area is also home to the Tobacco Factory Theatre, a local cultural landmark that hosts everything from theatre and comedy to street food markets and community events.
Green spaces are plentiful, with Greville Smyth Park and Victoria Park both nearby—offering ideal spots for weekend walks, picnics or morning runs. For commuters, the property’s location couldn’t be more convenient: Parson Street Train Station is just a short walk away, providing direct connections to Bristol Temple Meads, while several bus routes make travel across the city effortless. Cyclists benefit from excellent access to Bristol’s dedicated cycle networks, and the city centre can be reached in around 20 minutes on foot.
Families are also well served, with a choice of highly rated primary and secondary schools in the vicinity, and a strong sense of community that makes Bedminster a particularly welcoming place to call home.
We think...
This property is ideal for professionals, couples, or small families looking for a stylish home in a thriving Bristol area, who can put their stamp on a property with potential.
Material information (provided by owner)
SQM - 70m2 (from epc)
EPC - D
Council Tax B