Skip to content
Ashcombe Gardens
Ashcombe, Weston-Super-Mare, BS23

£548,500

4 bed detached house

Bedrooms

4

Living Rooms

4

Bathrooms

1

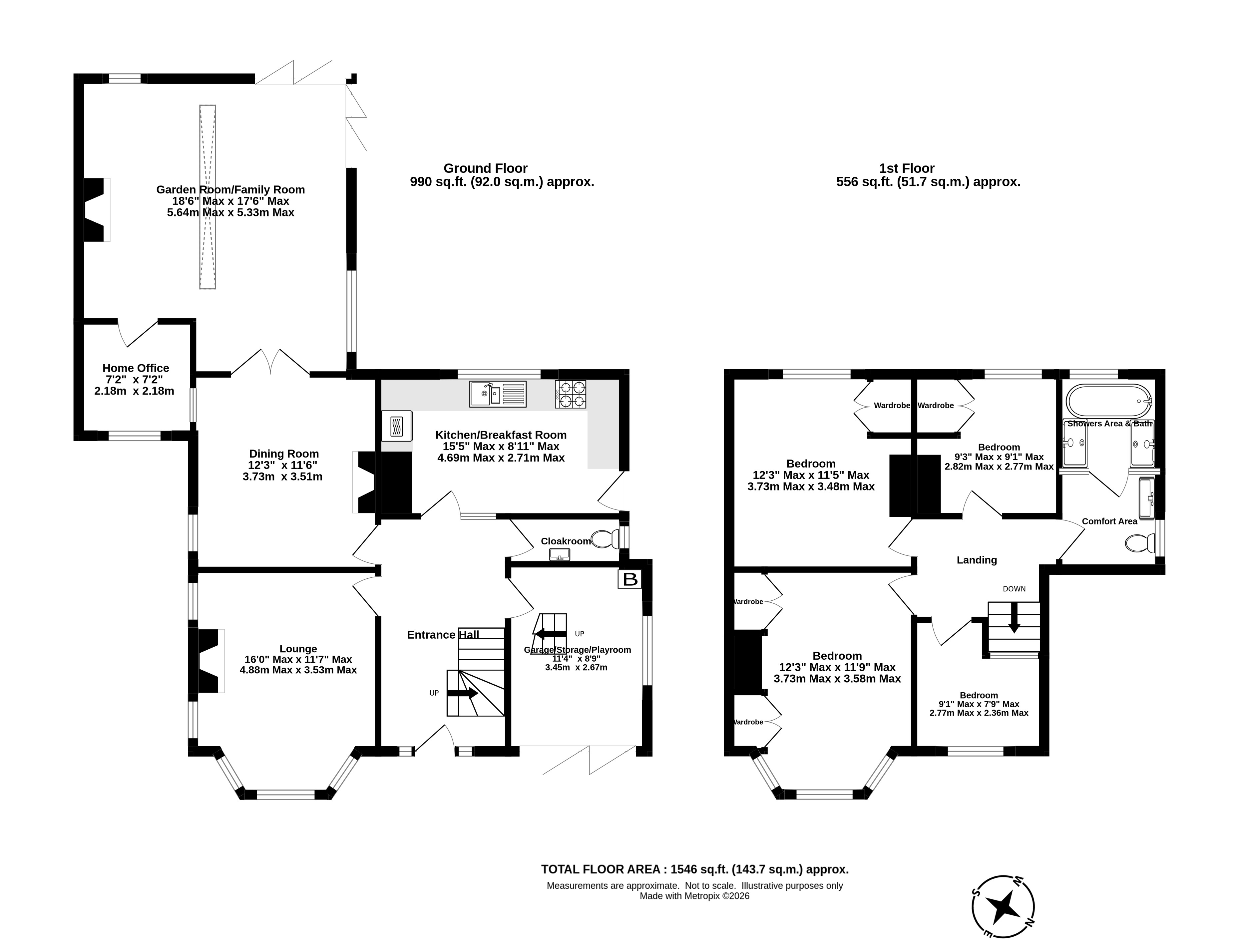
A unique 1930s four-bedroom detached home with three reception rooms, architecturally enhanced and extended by the current owners. This truly stylish masterpiece boasts an impressive and spacious south-westerly facing garden, a garage that doubles as a playroom, and off-street parking.

Key features

  • Ashcombe Gardens
  • Detached 1930s house
  • Stunning architect-designed extension
  • Off-street parking and garage
  • Flexible accommodation
  • Four bedrooms
  • Garden/Family room
  • Lounge
  • Dining room
  • Separate kitchen
  • Unusually styled bathroom with two showers and slipper bath
  • Garage/playroom incorporates spacious storage area
  • Substantial south-westerly facing rear garden

Detail

Beautifully finished throughout to exacting standards, this stunning home offers tasteful and timeless living accommodation with a contemporary feel. It is a true credit to the owners, who have seamlessly integrated modern touches to transform this 1930s detached house. The accommodation presents an entrance hall, lounge, dining room, garden/family room, separate kitch...

Similar properties

Milton, Ashcombe and Hillside

Area guide
Weston Sales
Suite 57, Pure offices, Pastures Ave, St Georges, Weston-super-Mare, BS22 7SB
We’re open...

Sunday

Monday

Tuesday

Wednesday

Thursday

Friday

Saturday

Closed

09:00 - 18.00

09:00 - 18.00

09:00 - 18.00

09:00 - 18.00

09:00 - 18.00

09.00 - 16.00