Skip to content
Oxbarton
Stoke Gifford, Bristol, BS34

Guide price

£525,000

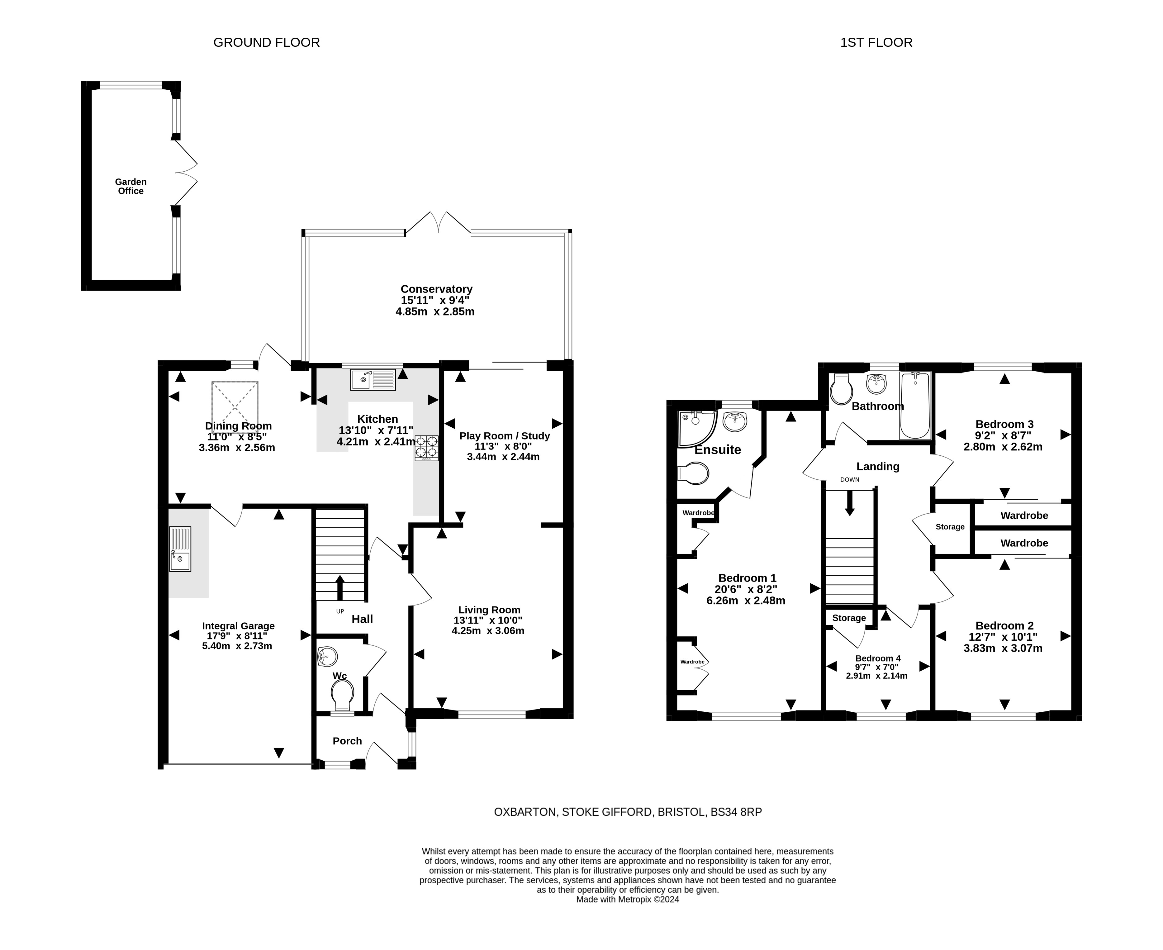
4 bed detached house

Bedrooms

4

Living Rooms

3

Bathrooms

3

A beautifully presented and spacious 4 bedroom detached home with integral garage and fully powered garden office, in a sought after road within Stoke Gifford Village.

Key features

  • Oxbarton
  • Detached
  • 4 Bedrooms
  • Garden office
  • Conservatory
  • Open-plan kitchen/diner
  • Cloakroom
  • Ensuite
  • Built-in wardrobes
  • Traditional hallway
  • Driveway
  • Spacious accommodation
  • Excellent location

Detail

The home offers an entrance porch which leads to a traditional hallway, w/c, sitting room which is open to the playroom. The playroom has sliding doors through to the conservatory with fitted blinds and French patio doors to the garden. You will also find a spacious and modern kitchen/diner with a skylight, internal access to the integral garage and another door leading...

Similar properties

Stoke Gifford

Area guide
Bradley Stoke Sales
Unit 7, Willowbrook Centre, Savages Wood Road, Bradley Stoke, Bristol, BS32 8BS
We’re open...

Sunday

Monday

Tuesday

Wednesday

Thursday

Friday

Saturday

Closed

09:00 - 18.00

09:00 - 18.00

09:00 - 18.00

09:00 - 18.00

09:00 - 18.00

09.00 - 16.00