This newly refurbished three-bedroom semi-detached house is available to let on Glyn Vale in Knowle, offering access to local amenities, green spaces and public transport links.
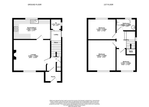
The property features one separate reception room with large windows, providing good natural light and a defined living area. There is a modern kitchen with appliances with an additional down...
This newly refurbished three-bedroom semi-detached house is available to let on Glyn Vale in Knowle, offering access to local amenities, green spaces and public transport links.
The property features one separate reception room with large windows, providing good natural light and a defined living area. There is a modern kitchen with appliances with an additional downstairs WC. Upstairs is a newly fitted bathroom, Sleeping accommodation comprising of a master bedroom with built-in wardrobe, a further double bedroom and a single bedroom.
To the rear, there is a newly landscaped garden with a south-facing aspect with both a patio and a deck, offering outdoor space suitable for everyday use and seasonal enjoyment.
The house is situated in the Knowle/Bedminster border area of south Bristol, within reach of local shops, cafés and everyday amenities on nearby high streets such as Bedminster Parade and North Street. Several green spaces are accessible in the wider area, including local parks and playing fields suitable for walking and recreation.
Public transport options are available via nearby bus routes connecting into Bristol city centre and surrounding districts. Road access towards the A37 and A38 gives routes out of the city and towards major motorway links.
Overall, this to let semi-detached three-bedroom house offers residential accommodation in a Bristol location with access to amenities, transport connections and green spaces offered in an immaculate condition.
Material facts (Parts A + B) information correct as of DATE: 24/3/26
– Council tax band – B
– Energy rating – C
– Holding deposit – £369
– Damage deposit – £1846
– What floor is the property situated? - n/a
– Parking – Driveway and street
– Headlease – n/a
– Utilities – Gas / Electric / Water
– Utility restrictions – n/a
– Heating source – Gas
– Indoor Phone coverage (source Ofcom) graded Likely, Limited or None – EE limited , Three limited , O2 likely , Vodafone likely
– Broadband download speed and supply type (source Ofcom) – Basic up to 25 mbps and Ultrafast up to 1800 mbps
– Building Material type – Brick
– Lift access – no
Material facts (Part C)
– Building Safety – Known issues/details of any works? n/a
– Restrictions and Rights – not known at this time. Please ask agent
– Rights and Easements - not known at this time. Please ask agent
– Flood and Erosion in last 5 years - not known at this time. Please ask agent
– Planning Permissions - not known at this time. Please ask agent
– Property accessibility/adaptations - not known at this time. Please ask agent
– Coalfield or Mining – not known at this time. Please ask agent