Skip to content
Redcross Street
Old Market, Bristol, BS2

Let agreed

£1,000 pcm

1 bed flat

Bedrooms

1

Living Rooms

1

Bathrooms

1

A lovely one bedroom flat that is offered furnished, located in the heart of Old Market.

Key features

  • Excellent Central Location
  • Short walk to Cabot Circus and Temple Meads
  • Gated entrance
  • Parking available for an extra charge

Detail

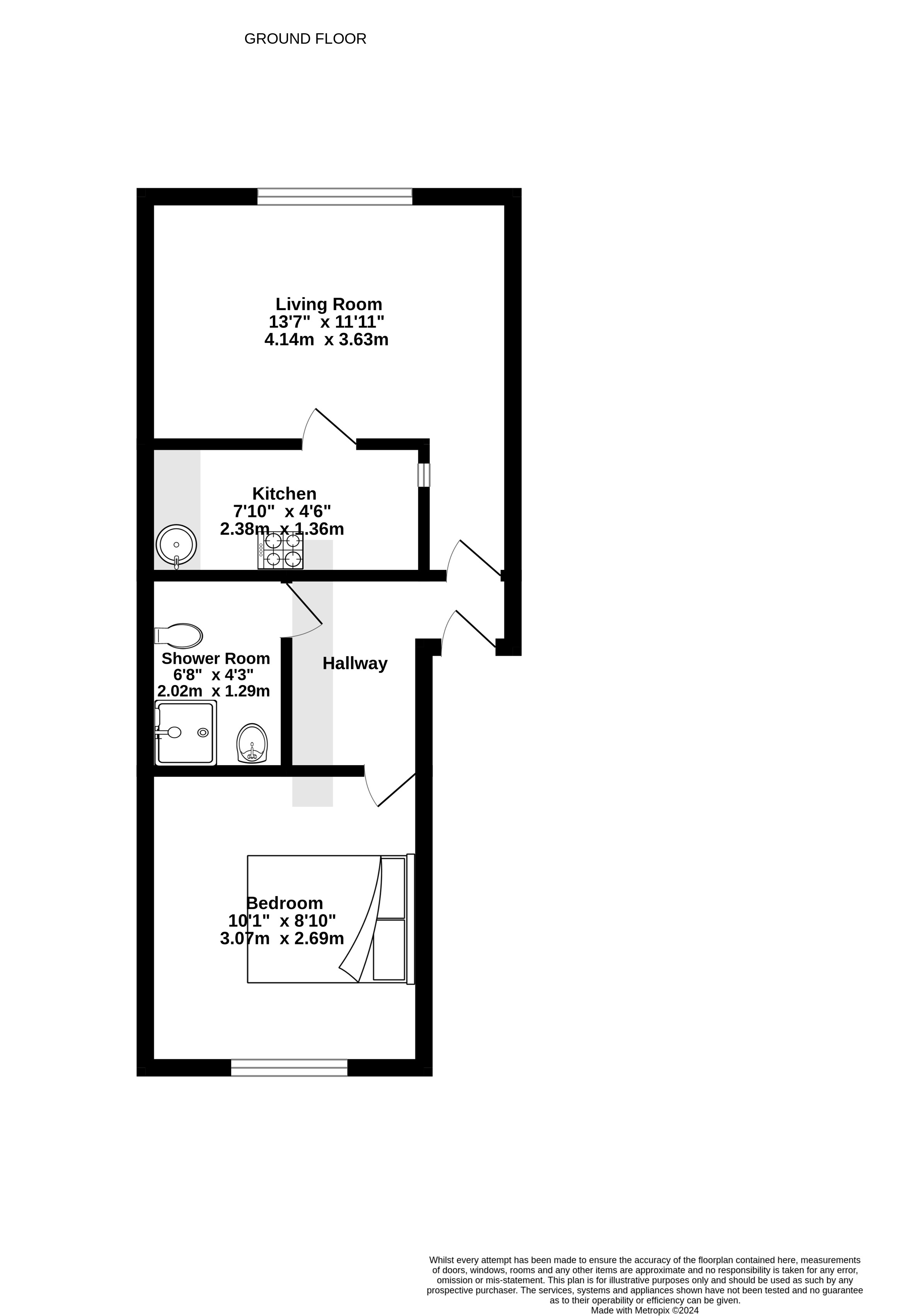
Ocean Letting and Management are pleased to present this one bedroom furnished property that is located in the heart of Old Market. Within walking distance to popular areas such as Cabot Circus, Broadmead, Temple Meads and easy access to the M4/M5 motorway links. Accommodation comprises of a living rooms with sash windows over looking old market street, a separate k...

Similar properties

Old Market

Area guide
Clifton Lettings
187-189 Whiteladies Road, Redland, Bristol, BS8 2RY
We’re open...

Sunday

Monday

Tuesday

Wednesday

Thursday

Friday

Saturday

Closed

09:00 - 18.00

09:00 - 18.00

09:00 - 18.00

09:00 - 18.00

09:00 - 18.00

09.00 - 16.00