Skip to content
Slade Baker Way
Stoke Gifford, Bristol, BS16

Let agreed

£2,800 pcm

4 bed semi-detached

Bedrooms

4

Living Rooms

2

A large four bed STUDENT house, located just a 5 minute walk from the University, in new development, Scholars Chase. Offered on a furnished basis, available in July 2026.

Key features

  • STUDENT HOUSE
  • 5 Minute Walk from UWE
  • Driveway Parking
  • BILLS EXCLUDED

Detail

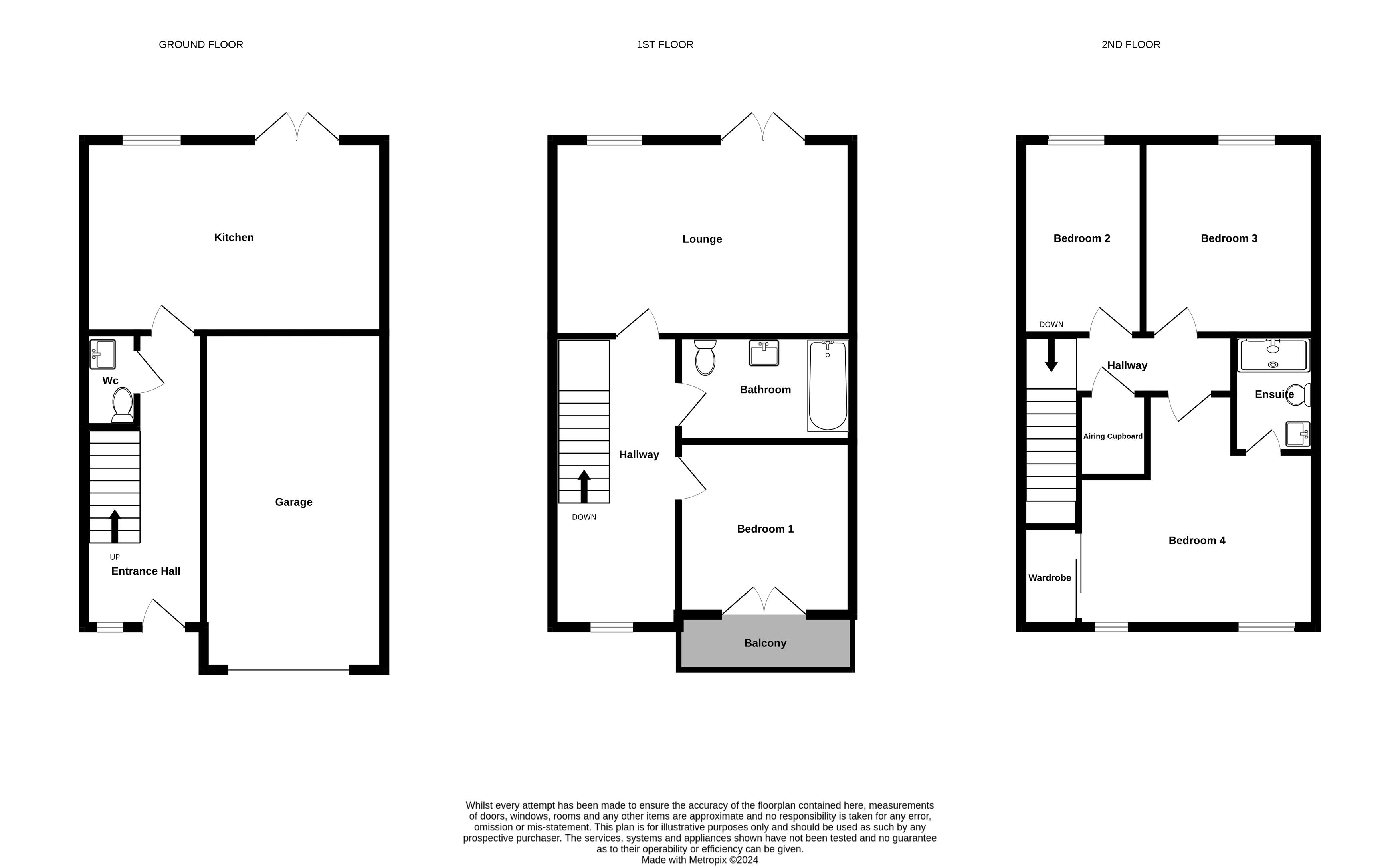
One of the biggest four bed STUDENT properties available just a 5 minute walk from the University. A new semi-detached house in Scholars Chase. The house comprises of integral garage, kitchen diner and WC downstairs, living room, communal bathroom and 1 bedroom on the first floor and a further 3 bedrooms (one en-suite) on the top floor. Additional benefits include drive...

Similar properties

Stoke Gifford

Area guide
Bradley Stoke Lettings
Unit 7 Willow Brook Centre, Savages Wood Road, Bradley Stoke, Bristol, BS32 8BS
We’re open...

Sunday

Monday

Tuesday

Wednesday

Thursday

Friday

Saturday

Closed

09:00 - 18.00

09:00 - 18.00

09:00 - 18.00

09:00 - 18.00

09:00 - 18.00

09.00 - 16.00