Skip to content
Coldharbour Road
Westbury Park, Bristol, BS6

£1,600 pcm

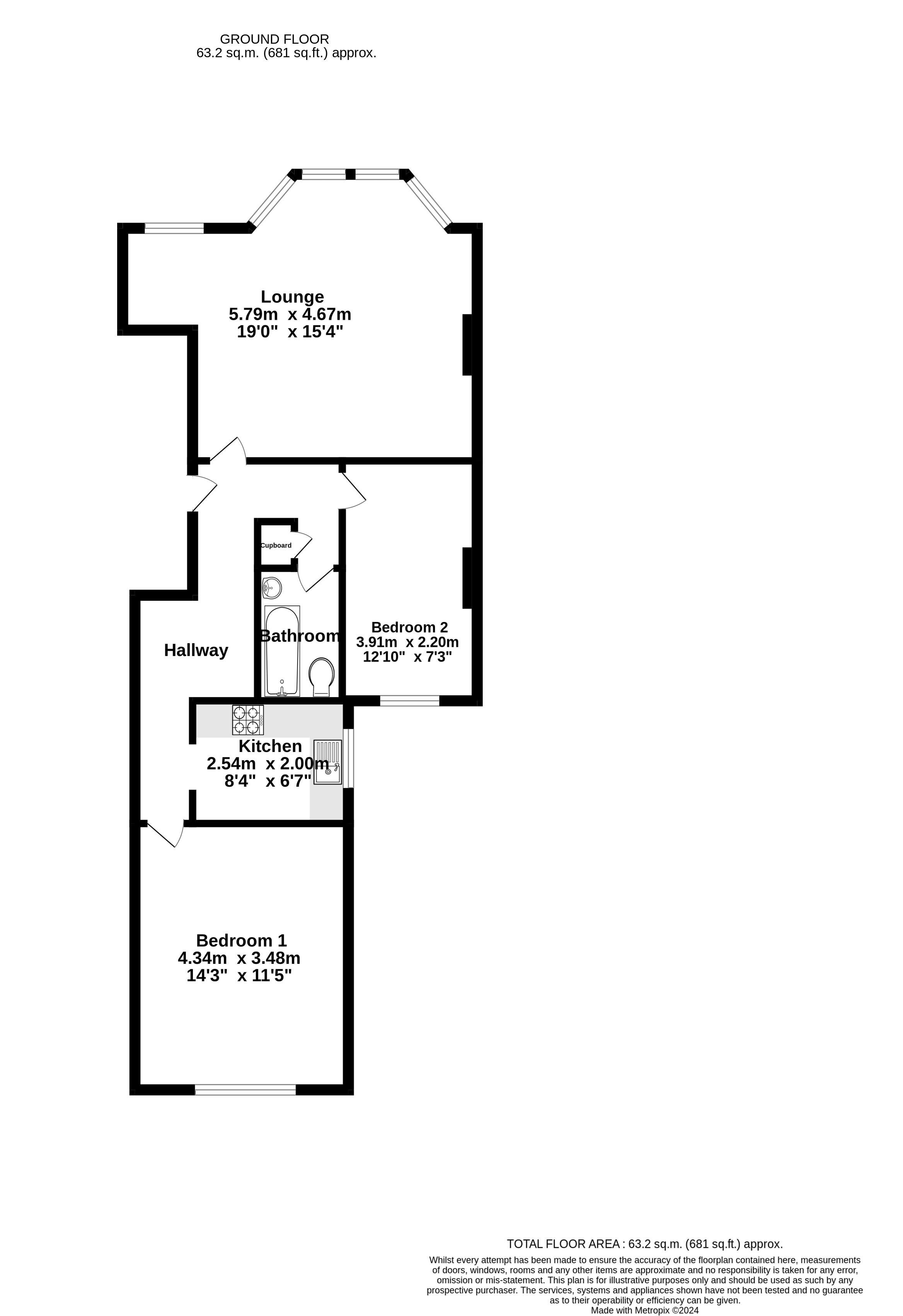
2 bed flat

Bedrooms

2

Living Rooms

1

Bathrooms

1

Two bedroom apartment on Coldharbour Road. Offered unfurnished!

Key features

  • Close to Gloucester Road & Whiteladies Road
  • Separate kitchen
  • Two bedrooms
  • Large light lounge/diner

Detail

Ocean Lettings are delighted present this lovely two-bedroom first floor flat on Coldharbour Road. Offered unfurnished, the property comprises of a large lounge/diner, separate kitchen and main bathroom. There is a spacious principal bedroom and a good size second bedroom. Westbury Park is a leafy area found to the east of The Durdham Downs. It offers a range of local...

Similar properties

Westbury Park

Area guide
Clifton Lettings
187-189 Whiteladies Road, Redland, Bristol, BS8 2RY
We’re open...

Sunday

Monday

Tuesday

Wednesday

Thursday

Friday

Saturday

Closed

09:00 - 18.00

09:00 - 18.00

09:00 - 18.00

09:00 - 18.00

09:00 - 18.00

09.00 - 16.00