Skip to content
Wordsworth Road
Horfield, Bristol, BS7

Let agreed

£2,300 pcm

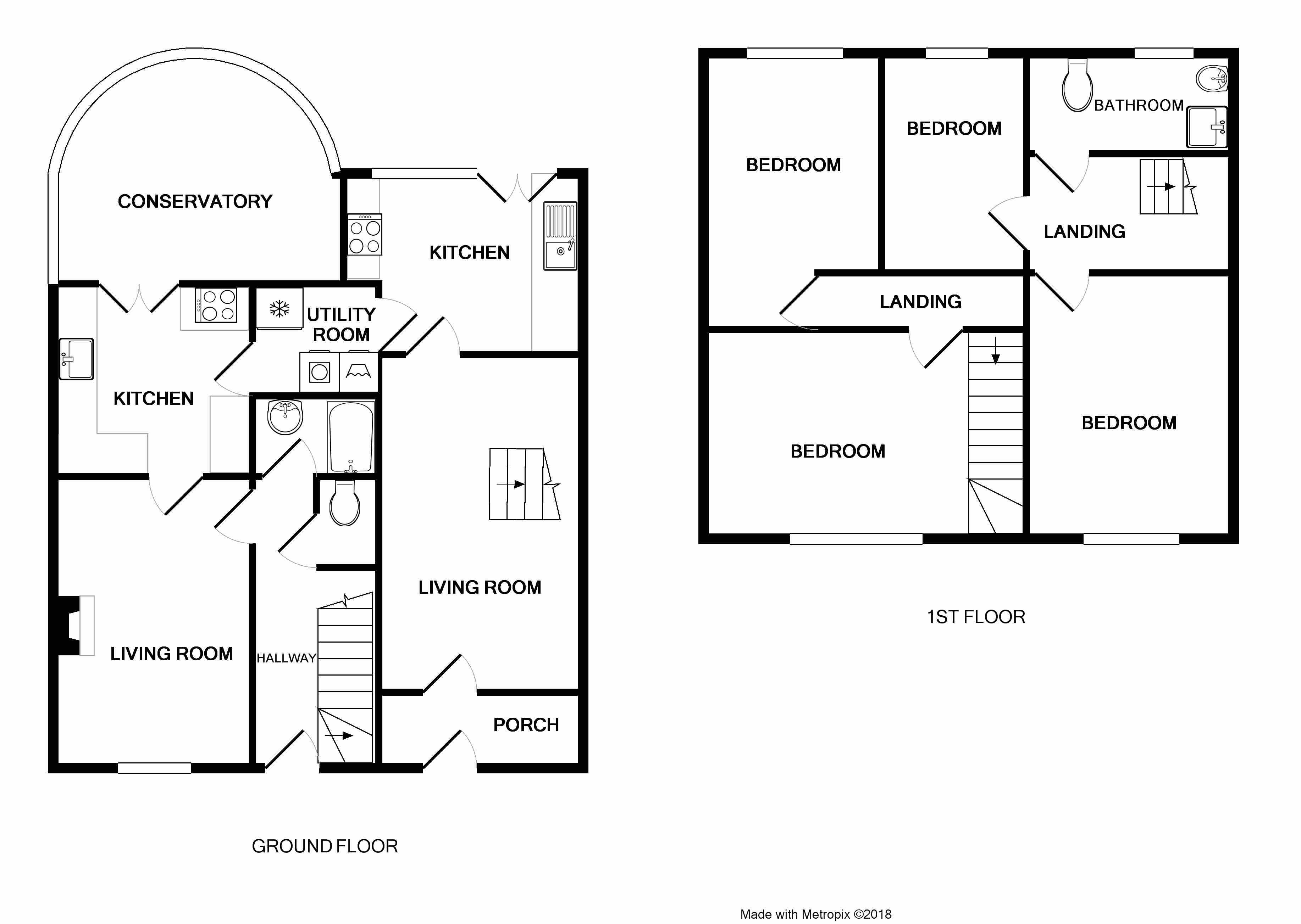
4 bed end of terrace

Bedrooms

4

Living Rooms

3

Bathrooms

2

Furnished four-bedroom house to rent in Horfield, located within easy access to the MOD, Filton Abbey wood. Suitable for sharers!

Key features

  • Four bedrooms
  • Driveway parking
  • Large garden
  • Available to sharers

Detail

A four-bedroom house available to rent in Wordsworth Road Offered on a furnished basis, the property comprises of four double bedrooms, spacious two kitchens, two bathrooms, and two good size living rooms. The property also benefits from a conservatory, and garden to the rear, plus a driveway at the front for 2/3 cars. Horfield surrounds Gloucester Road with the c...

Similar properties

Horfield

Area guide
Bishopston Lettings and Management
201 Gloucester Rd, Bishopston, Bristol, BS7 8BG
We’re open...

Sunday

Monday

Tuesday

Wednesday

Thursday

Friday

Saturday

Closed

09:00 - 18.00

09:00 - 18.00

09:00 - 18.00

09:00 - 18.00

09:00 - 18.00

09.00 - 16.00