Skip to content
Clayton Close
Portishead, Bristol, BS20

Let agreed

£1,500 pcm

3 bed detached

Bedrooms

3

Living Rooms

3

Bathrooms

1

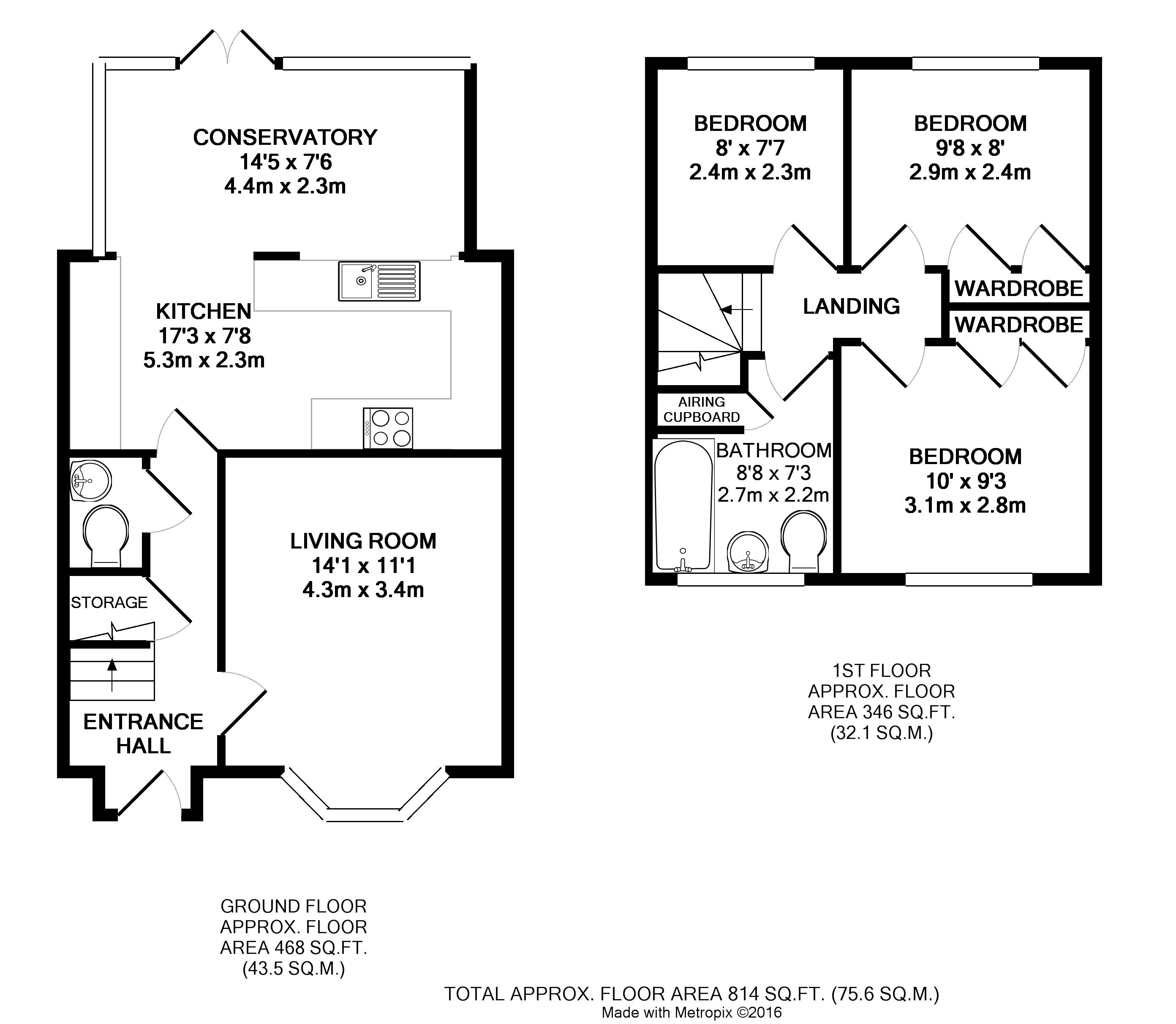
A superb modern detached three bedroom family home on a sought after and quiet residential street. The hub of the home is the large dining kitchen and conservatory area, perfect for entertaining! Available unfurnished and early November. Call NOW to view!

Key features

  • Superb detached family home
  • Three bedrooms
  • Very popular location

Detail

A modern three bedroom family home on a quiet residential street close to local facilities and schooling. The ground floor has a large living room with a bay window, modern open plan dining kitchen and conservatory with double doors on to a private garden. The first floor has three bedrooms and a family bathroom. There is off street parking for two cars. Both the size a...

Similar properties

Portishead

Area guide
Portishead Lettings
43 High Street, Portishead, BS20 6AA
We’re open...

Sunday

Monday

Tuesday

Wednesday

Thursday

Friday

Saturday

Closed

09:00 - 18.00

09:00 - 18.00

09:00 - 18.00

09:00 - 18.00

09:00 - 18.00

09.00 - 16.00