Skip to content
Ellesmere Road
Brislington, Bristol, BS4

£550,000

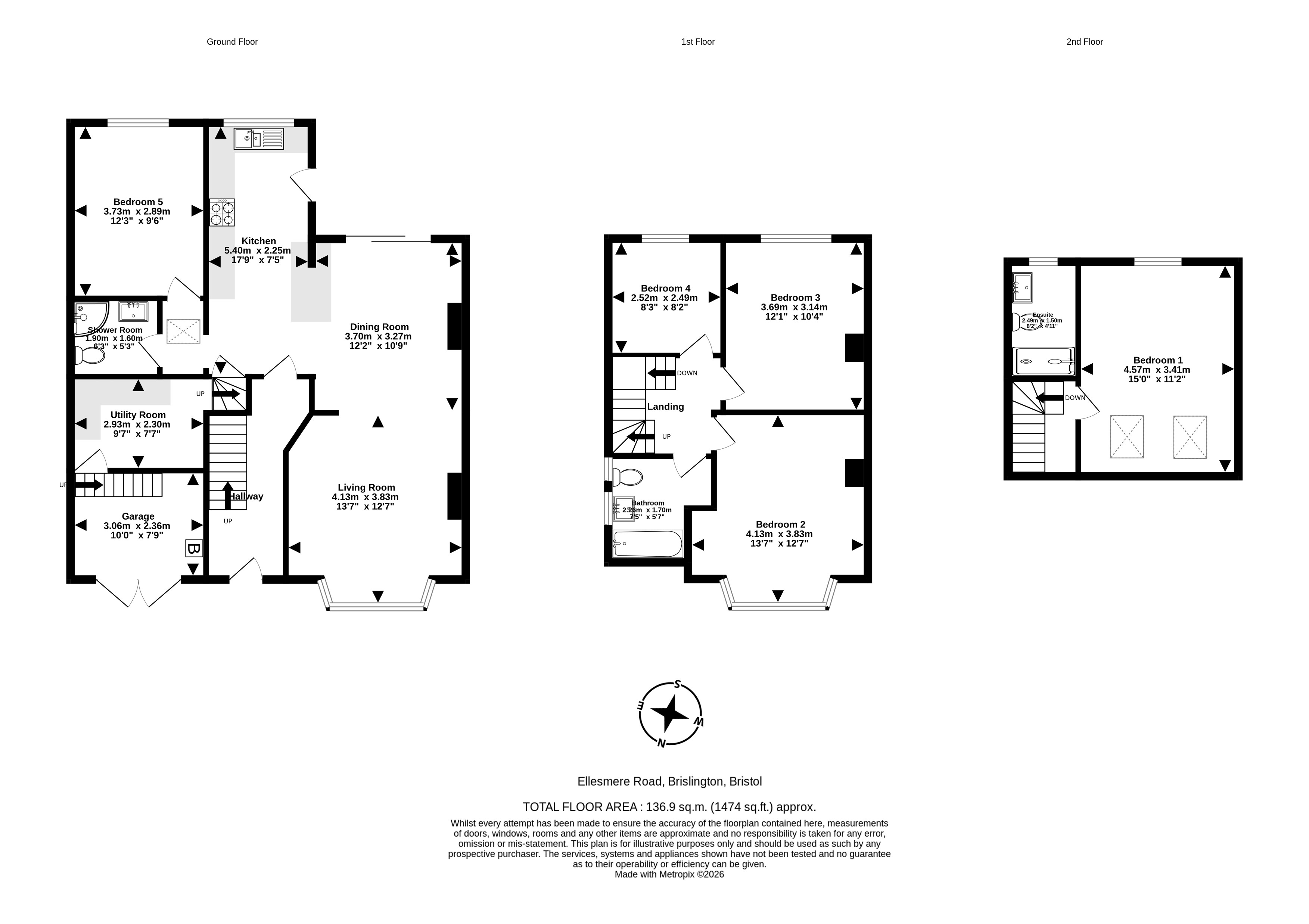
5 bed semi-detached house

Bedrooms

5

Living Rooms

2

Bathrooms

3

Having been extensively renovated by the current owners, this semi-detached home on Ellesmere Road is ready to move into, offering space and quality throughout!

Key features

  • Ellesmere Road
  • Semi-detached
  • Five bedrooms
  • Extended
  • Ample parking
  • Excellent condition throughout
  • Quiet cul-de-sac location
  • Approx. area = 137m2

Detail

Inside off the entrance hallway, the living space is made up of separate yet combined spaces. The living area is at the front and features a bay window that lets in plenty of light while the dining area at the opposite end has ample space for a table and patio door access on to the garden. The kitchen is connected to the reception spaces thanks to the removal of the dov...

Similar properties

Brislington

Area guide
Knowle Sales
321 Wells Road, Knowle, Bristol, BS4 2QB
We’re open...

Sunday

Monday

Tuesday

Wednesday

Thursday

Friday

Saturday

Closed

09:00 - 18.00

09:00 - 18.00

09:00 - 18.00

09:00 - 18.00

09:00 - 18.00

09.00 - 16.00