Properties like this are rarely available. For people looking to downsize to a freehold property that has good sized accommodation, private gardens and parking - this is a perfect property.
Set back from the road, it's in a very convenient location with lots of amenities nearby including shops, bus routes, doctors surgery and Southmead Hospital.
Westbury on Trym is...
Properties like this are rarely available. For people looking to downsize to a freehold property that has good sized accommodation, private gardens and parking - this is a perfect property.
Set back from the road, it's in a very convenient location with lots of amenities nearby including shops, bus routes, doctors surgery and Southmead Hospital.
Westbury on Trym is nearby, whilst all the shops at Cribbs Causeway are easily accessible.
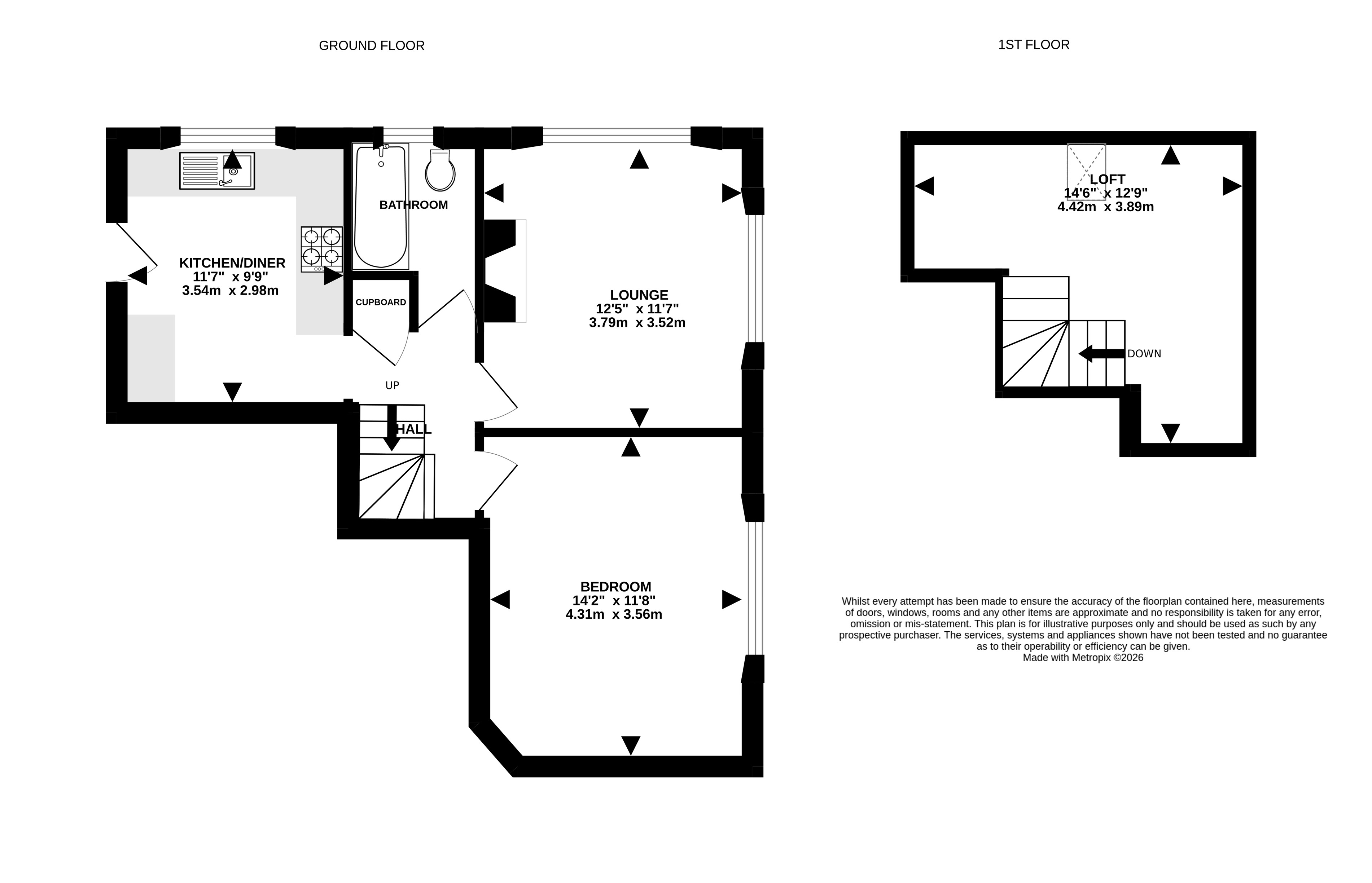
You access the bungalow from the private driveway and the door opens into the kitchen.
This is well appointed with lots of cupboard and worktop space, and there is also room for a table & chairs. There is an integral oven & hob in here.
An opening leads to the central hall, and from here you can access the bedroom, bathroom & storage cupboard, and stairs rise to the loft space.
The lounge is a lovely room - it's full of natural light thanks to its two large windows, and the fireplace is a great focal point in here.
The bedroom is a generous sized double room that has ample space for wardrobes and other furniture.
The bathroom has a 'walk-in' bath and a window gives both light & ventilation.
Stirs rise to the loft which is a fantastic bonus space and could be used for many purposes.
The heating is powered by a gas combination boiler and this was installed in 2022. The doors and windows are double glazed.
Outside
The bungalow is set back from the road and there are gardens to the front and rear, whilst there is off road parking on the driveway for a number of vehicles.
The garden to the front is private as its behind mature hedging and there is a greenhouse here.
The rear garden is accessed straight from the kitchen/diner, and this has been designed to make the most of this space, with a decked area, artificial turf and a very useful storage shed nestled in the corner.
The gardens are a great place to sit and enjoy the sunshine, and because they are level, are easily manageable.
Location
Knole Lane is in a great location to access all the amenities nearby - there are shops in Henbury, Westbury Village & Southmead, all of which are easy to get to.
There are a number of doctors surgeries nearby, whilst Southmead Hospital is less than 2 miles away.
There are bus stops within a short walk that give good access around the city.
There is plenty of outdoor space nearby to enjoy including the Repton Hall Estate and Blaise Castle with its acres of parkland & woodland walks.
Cribbs Causeway wuith all it shops, restaurants, leisure outlets and motorway access is within 2.5 miles.
We think...
Bungalows of this size are rarely available, and because of this it will attract lots of interest.