Skip to content
Bright Street
Kingswood, Bristol, BS15

Offers over

£325,000

3 bed end terraced house

Bedrooms

3

Bathrooms

1

Ocean are pleased to welcome to the market 3 bedroom, end of terrace house in BS15.

Key features

  • End of terrace
  • Detached garage
  • Rear parking
  • Catchment for Beacon Rise
  • Open plan living
  • 3 bedrooms
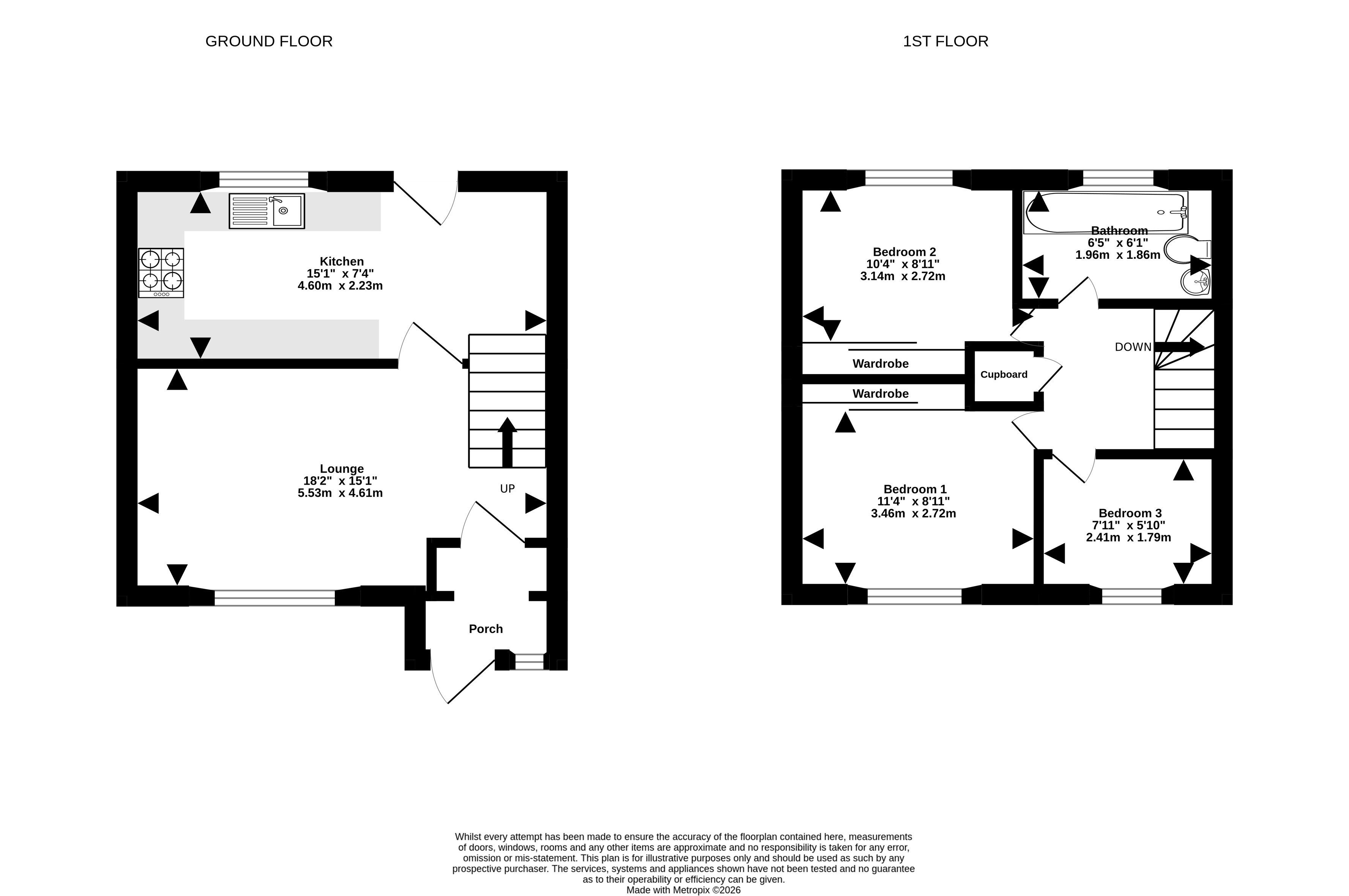
  • Floor space - 77sqm
  • EPC - D

Detail

Located in the heart of BS15, this well-presented three-bedroom end-of-terrace home benefits from off-street parking to the rear and a garage. Upon entering, you are welcomed by a newly added front porch, ideal for storing coats and shoes. This leads directly into a bright and spacious open-plan lounge/dining room, featuring solid oak flooring throughout. Dual-aspect...

Similar properties

Downend Sales
11a Badminton Road, Downend, Bristol, BS16 6BD
We’re open...

Sunday

Monday

Tuesday

Wednesday

Thursday

Friday

Saturday

Closed

09:00 - 18.00

09:00 - 18.00

09:00 - 18.00

09:00 - 18.00

09:00 - 18.00

09.00 - 16.00